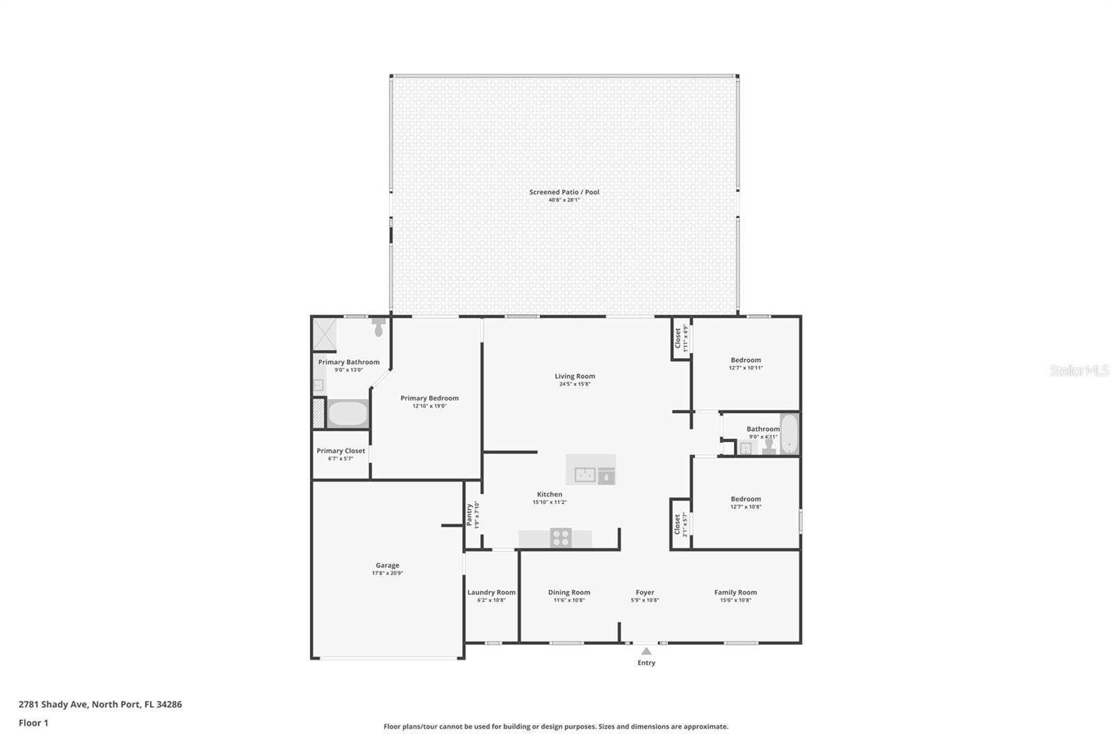
2781 SHADY AVE, NORTH PORT, FL, 34286
$250,000
Residential
Bedrooms
3
Bathrooms
2
Living Area
2,020 Sqft
Lot Size
10,491 Sqft
Short Sale. Short Sale. Multiple Offers Received. Seller Calling Highest and Best by 5:00 p.m. Friday, 1/20/2026. Unique Opportunity to own a pool home on a larger highly elevated corner lot. The roof is original to the home. 3 Bedrooms and 2 Bathrooms, Flex Space and Bonus Room. Master Bedroom open to pool, Kitchen open to living room. 2 Car attached garage. This home has been winterized by the lender. All soft surfaces have been removed. All mechanicals need replacing. The home has been with no services for quite some time and will need new finishes and mechanicals (Hot Water Heater, HVAC, Pool Equipment, Appliances). Pool screens were compromised by storm. There is a small stain at the ceiling that looks like windblown rain as opposed to a leak. The seller makes no disclosures and offers no warranted repairs. Sold AS-IS.
Property Details
Property Features Property Features
MLS ID: MFRA4548899 Year Built: 2005
Appliances: Dishwasher, Microwave, Range Construction Materials: Block
Cooling: Central Air Country: US
County Or Parish: Sarasota Direction Faces: Northeast
Exterior Features: Hurricane Shutters Flooring: Tile
Foundation Details: Slab Heating: Central
Levels: One Listing Agreement: Exclusive Right To Sell
Listing Terms: Cash Occupant Type: Vacant
Pool Features: Fiberglass, In Ground Property Sub Type: Single Family Residence
Property Type: Residential Road Surface Type: Asphalt
Roof: Shingle Sewer: None
Showing Requirements: Go Direct, ShowingTime Special Listing Conditions: Short Sale
Standard Status: Active State Or Province: FL
Utilities: Cable Available, Electricity Available, Water Available Water Source: None
Rooms Rooms
Kitchen: 16x11 ft Family Room: 24x16 ft
Primary Bedroom: 20x13 ft Primary Bathroom: 13x9 ft
Bedroom 1: 12x11 ft Bedroom 2: 11x11 ft
Great Room: 16x11 ft Foyer: 11x12 ft
We love to hear from you