
|
Bedrooms
3
|
Bathrooms
4
|
Living Area
3,407 Sqft
|
Lot Size
11,000 Sqft
|
| Property Features | Property Features | |||
|---|---|---|---|---|
| MLS ID: | MFRA4624314 | Year Built: | 2020 | |
| Appliances: | Cooktop, Dishwasher, Disposal, Dryer, Gas Water Heater, Refrigerator, Tankless Water Heater, Washer | Architectural Style: | Key West | |
| Construction Materials: | Block, Concrete | Cooling: | Central Air | |
| Country: | US | Direction Faces: | South | |
| Exterior Features: | Balcony, French Doors, Hurricane Shutters | Flooring: | Carpet, Luxury Vinyl, Tile | |
| Foundation Details: | Slab | Heating: | Central | |
| Laundry Features: | Laundry Room | Levels: | Three Or More | |
| Listing Agreement: | Exclusive Right To Sell | Listing Terms: | Cash, Conventional | |
| Lot Features: | Cul-De-Sac, Flood Insurance Required, FloodZone, In County, Landscaped | Occupant Type: | Owner | |
| Patio And Porch Features: | Covered, Deck, Front Porch, Patio | Pets Allowed: | Cats OK, Dogs OK | |
| Property Condition: | Completed | Property Sub Type: | Single Family Residence | |
| Property Type: | Residential | Road Responsibility: | Deeded Easement, Private Maintained Road | |
| Road Surface Type: | Asphalt | Roof: | Metal | |
| Sewer: | Septic Tank | Showing Requirements: | Appointment Only, Listing Agent Must Accompany, ShowingTime | |
| Special Listing Conditions: | None | Standard Status: | Active | |
| State Or Province: | FL | Utilities: | Cable Available, Electricity Connected, Other, Water Connected | |
| Vegetation: | Mature Landscaping, Trees/Landscaped | View: | Garden, Trees/Woods | |
| Water Source: | None | Window Features: | Impact Glass/Storm Windows, Shutters | |
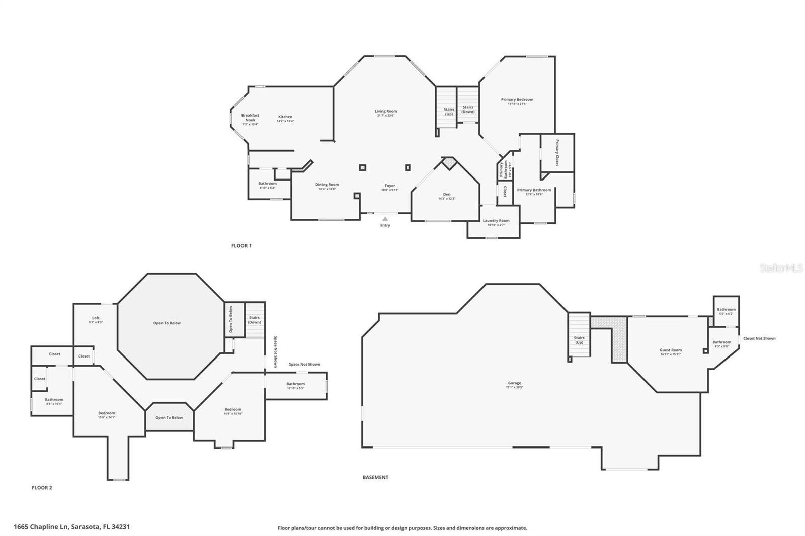
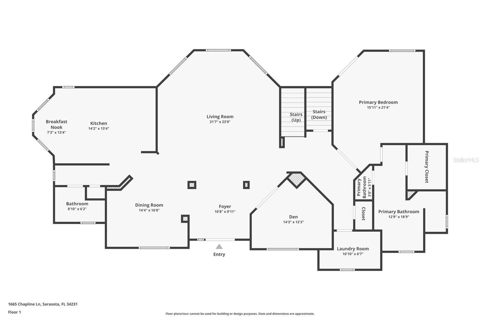
| Rooms | Rooms | |||
|---|---|---|---|---|
| Living Room: | 22x21 ft | Kitchen: | 17.8x12.9 ft | |
| Dining Room: | 13x10 ft | Primary Bedroom: | 19.7x15.7 ft | |
| Primary Bathroom: | 10.11x12.7 ft | Bedroom 1: | 14x13.2 ft | |
| Bedroom 2: | 14.7x14.1 ft | Bonus Room: | 15x15.7 ft | |