
|
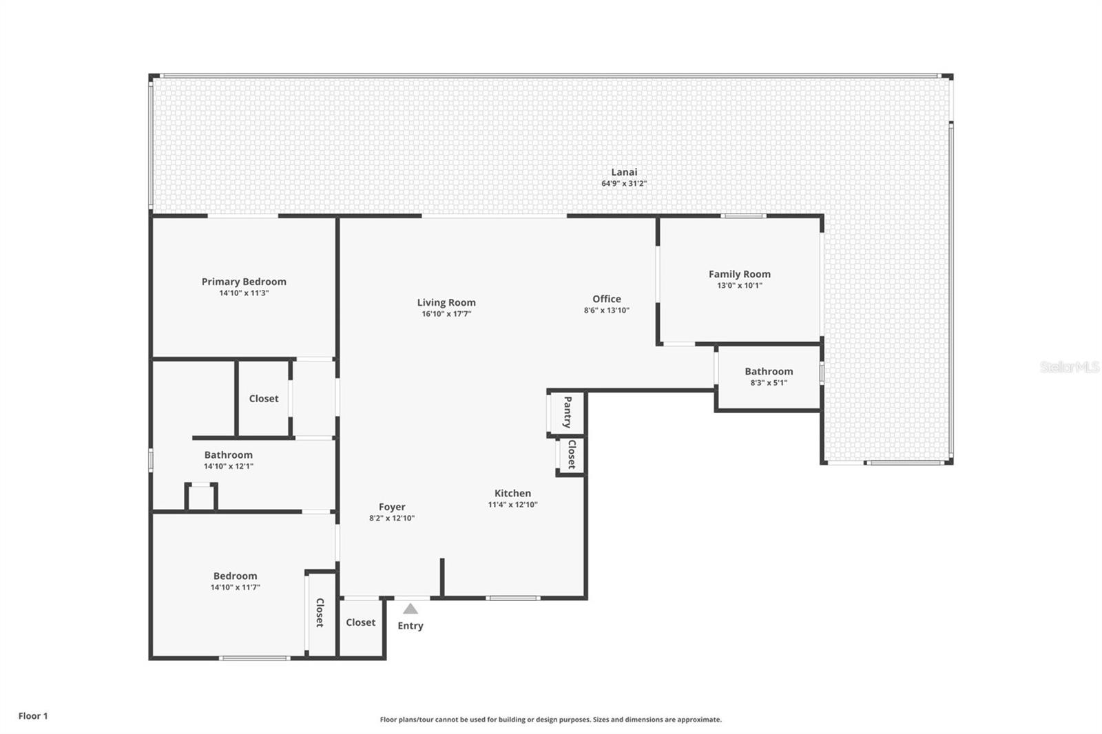
Bedrooms
3
|
Bathrooms
2
|
Living Area
1,483 Sqft
|
Lot Size
6,865 Sqft
|
| Property Features | Property Features | |||
|---|---|---|---|---|
| MLS ID: | MFRA4628361 | Year Built: | 1999 | |
| Appliances: | Cooktop, Dryer, Microwave, Range, Refrigerator, Washer, Water Filtration System | Architectural Style: | Florida | |
| Association Amenities: | Maintenance | Association Fee Includes: | Common Area Taxes, Escrow Reserves Fund, Maintenance Structure, Maintenance Grounds | |
| Community Features: | Deed Restrictions, Sidewalks | Construction Materials: | Stucco | |
| Cooling: | Central Air | Country: | US | |
| Direction Faces: | Southeast | Exterior Features: | French Doors, Private Mailbox, Sidewalk, Sliding Doors | |
| Flooring: | Tile | Foundation Details: | Slab | |
| Heating: | Central | Laundry Features: | In Kitchen, Inside | |
| Levels: | One | Listing Agreement: | Exclusive Right To Sell | |
| Occupant Type: | Owner | Pets Allowed: | Breed Restrictions, Dogs OK, Yes | |
| Property Sub Type: | Single Family Residence | Property Type: | Residential | |
| Road Surface Type: | Asphalt, Paved | Roof: | Tile | |
| Sewer: | Public Sewer | Showing Requirements: | Supra Lock Box, See Remarks, ShowingTime | |
| Special Listing Conditions: | None | Standard Status: | Active | |
| State Or Province: | FL | Utilities: | BB/HS Internet Available, Cable Available, Electricity Available, Public, Sewer Connected | |
| View: | Trees/Woods | Water Source: | Public | |
| Rooms | Rooms | |||
|---|---|---|---|---|
| Kitchen: | Primary Bedroom: | |||
| Great Room: | Living Room: | |||
| Dining Room: | ||||