
|
Bedrooms
3
|
Bathrooms
2
|
Living Area
1,808 Sqft
|
Lot Size
6,935 Sqft
|
| Property Features | Property Features | |||
|---|---|---|---|---|
| MLS ID: | MFRA4637017 | Year Built: | 2023 | |
| Appliances: | Dishwasher, Dryer, Electric Water Heater, Microwave, Range, Washer | Association Amenities: | Basketball Court, Pickleball Court(s), Playground, Pool, Trail(s) | |
| Association Fee Includes: | Pool, Escrow Reserves Fund, Recreational Facilities | Community Features: | Community Mailbox, Deed Restrictions, Golf Carts OK, Playground, Pool, Sidewalks | |
| Construction Materials: | Block, Stucco | Cooling: | Central Air | |
| Country: | US | Direction Faces: | East | |
| Disclosures: | Flood Disclosure, HOA/PUD/Condo Disclosure, Seller Property Disclosure | Exterior Features: | Irrigation System, Sidewalk, Sliding Doors | |
| Flooring: | Carpet, Luxury Vinyl | Foundation Details: | Slab | |
| Furnished: | Partially | Heating: | Electric | |
| Laundry Features: | Inside, Laundry Room | Levels: | One | |
| Listing Agreement: | Exclusive Right To Sell | Listing Terms: | Cash, Conventional, FHA, VA Loan | |
| Lot Features: | Level, Sidewalk | Occupant Type: | Owner | |
| Pets Allowed: | Cats OK, Dogs OK, Number Limit | Possession: | Close of Escrow | |
| Property Sub Type: | Single Family Residence | Property Type: | Residential | |
| Road Responsibility: | Public Maintained Road | Road Surface Type: | Asphalt | |
| Roof: | Shingle | Sewer: | Public Sewer | |
| Showing Requirements: | Appointment Only, Combination Lock Box, Lock Box Coded, ShowingTime | Special Listing Conditions: | None | |
| Standard Status: | Active | State Or Province: | FL | |
| Utilities: | Cable Available, Electricity Connected | Water Source: | Public | |
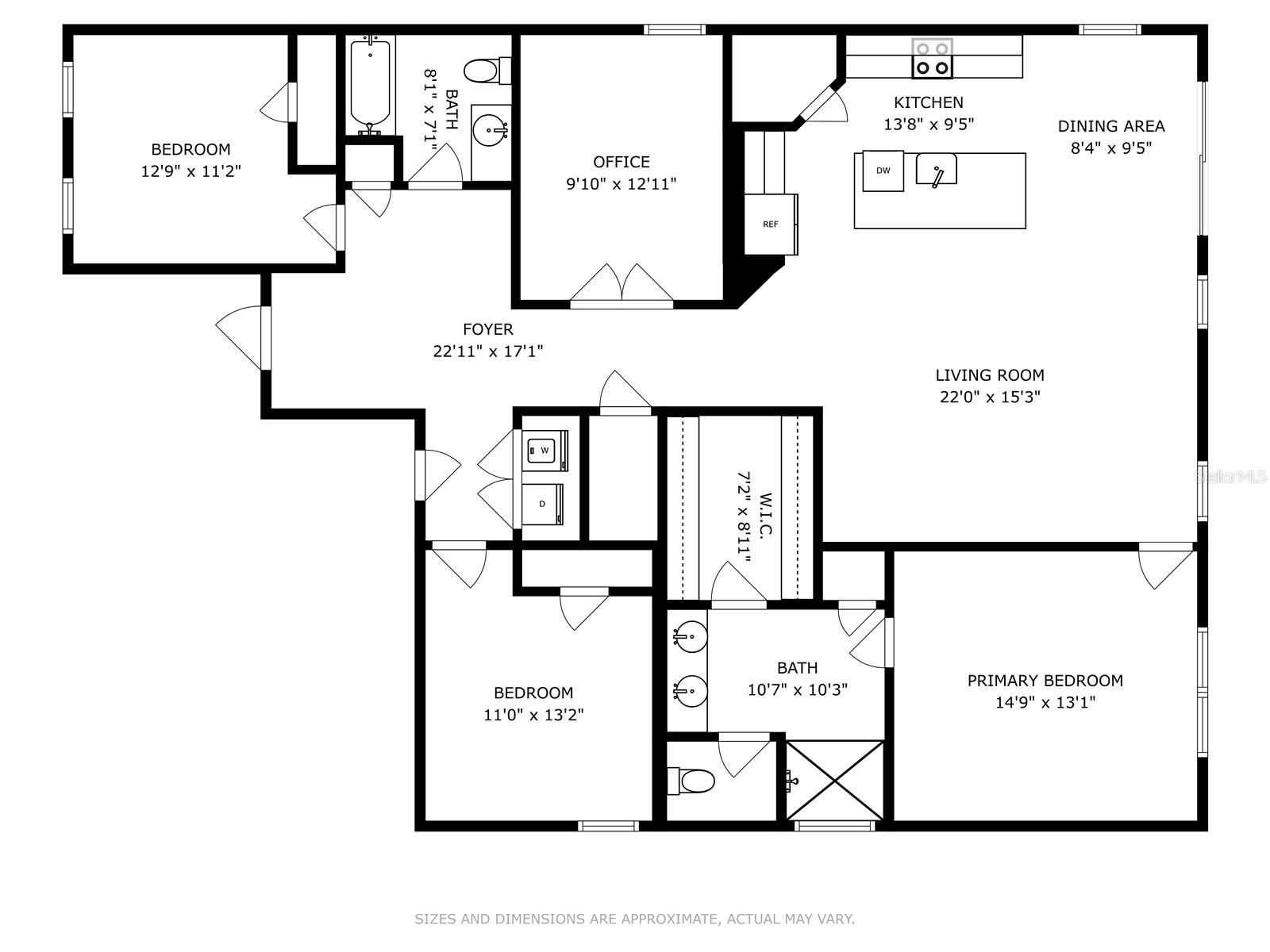
| Rooms | Rooms | |||
|---|---|---|---|---|
| Primary Bedroom: | 13x15 ft | Primary Bathroom: | 10.3x10.7 ft | |
| Bedroom 2: | 11.2x12.9 ft | Bedroom 3: | 11x13 ft | |
| Bathroom 2: | 7x8 ft | Kitchen: | 9.5x13.8 ft | |
| Living Room: | 15x22 ft | Office: | 10x13 ft | |
| Foyer: | 17x23 ft | Dinette: | 8.4x9.5 ft | |