
|
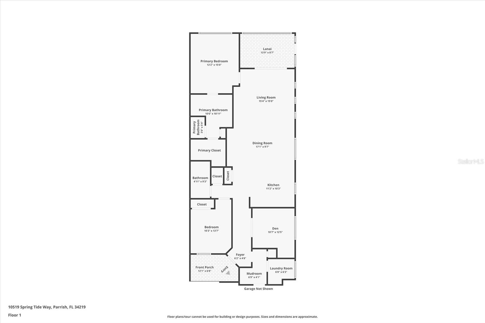
Bedrooms
2
|
Bathrooms
2
|
Living Area
1,563 Sqft
|
Lot Size
5,319 Sqft
|
| Property Features | Property Features | |||
|---|---|---|---|---|
| MLS ID: | MFRA4646407 | Year Built: | 2023 | |
| Appliances: | Dishwasher, Disposal, Dryer, Electric Water Heater, Microwave, Range, Refrigerator, Washer | Architectural Style: | Coastal, Ranch | |
| Association Amenities: | Clubhouse, Fence Restrictions, Fitness Center, Gated, Pickleball Court(s), Pool, Recreation Facilities, Security, Spa/Hot Tub, Tennis Court(s) | Association Fee Includes: | Cable TV, Common Area Taxes, Pool, Internet, Maintenance Structure, Maintenance Grounds, Management, Private Road | |
| Community Features: | Clubhouse, Community Mailbox, Dog Park, Fitness Center, Gated Community - Guard, Golf Carts OK, Irrigation-Reclaimed Water, Pool, Restaurant, Sidewalks, Tennis Court(s) | Construction Materials: | Block, Stucco | |
| Cooling: | Central Air | Country: | US | |
| County Or Parish: | Manatee | Direction Faces: | West | |
| Exterior Features: | Hurricane Shutters, Lighting, Rain Gutters, Sidewalk, Sliding Doors | Flooring: | Luxury Vinyl, Tile | |
| Foundation Details: | Slab | Furnished: | Negotiable | |
| Green Water Conservation: | Irrigation-Reclaimed Water | Heating: | Electric, Heat Pump | |
| Laundry Features: | Laundry Room | Levels: | One | |
| Listing Agreement: | Exclusive Right To Sell | Listing Terms: | Cash, Conventional, FHA, VA Loan | |
| Lot Features: | Conservation Area, Landscaped, Level, Sidewalk | Occupant Type: | Owner | |
| Other Equipment: | Irrigation Equipment | Parking Features: | Driveway, Garage Door Opener, Ground Level | |
| Patio And Porch Features: | Covered, Front Porch, Rear Porch, Screened | Pets Allowed: | Cats OK, Dogs OK, Yes | |
| Possession: | Negotiable | Property Condition: | Completed | |
| Property Sub Type: | Villa | Property Type: | Residential | |
| Road Responsibility: | Private Maintained Road | Road Surface Type: | Asphalt | |
| Roof: | Shingle | Security Features: | Security Gate, Smoke Detector(s) | |
| Sewer: | Public Sewer | Showing Requirements: | Supra Lock Box | |
| Special Listing Conditions: | None | Standard Status: | Active | |
| State Or Province: | FL | Utilities: | Cable Connected, Electricity Connected, Sewer Connected, Sprinkler Recycled, Underground Utilities, Water Connected | |
| Vegetation: | Mature Landscaping, Trees/Landscaped | View: | Garden, Park/Greenbelt, Water | |
| Water Source: | Public | Waterfront Features: | Pond | |
| Window Features: | Drapes, Shades | |||
| Rooms | Rooms | |||
|---|---|---|---|---|
| Living Room: | 17x14 ft | Dining Room: | 17x10 ft | |
| Kitchen: | 17x10 ft | Primary Bedroom: | 12.5x15 ft | |
| Bedroom 2: | 11x11 ft | Den: | 10.5x10 ft | |
| Balcony/Porch/Lanai: | 17x10 ft | |||