
|
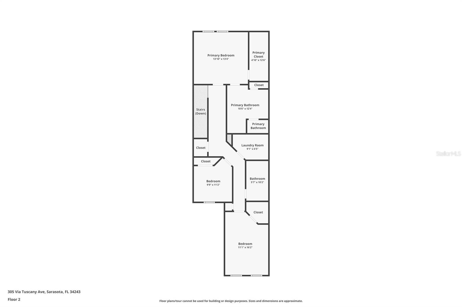
Bedrooms
3
|
Bathrooms
3
|
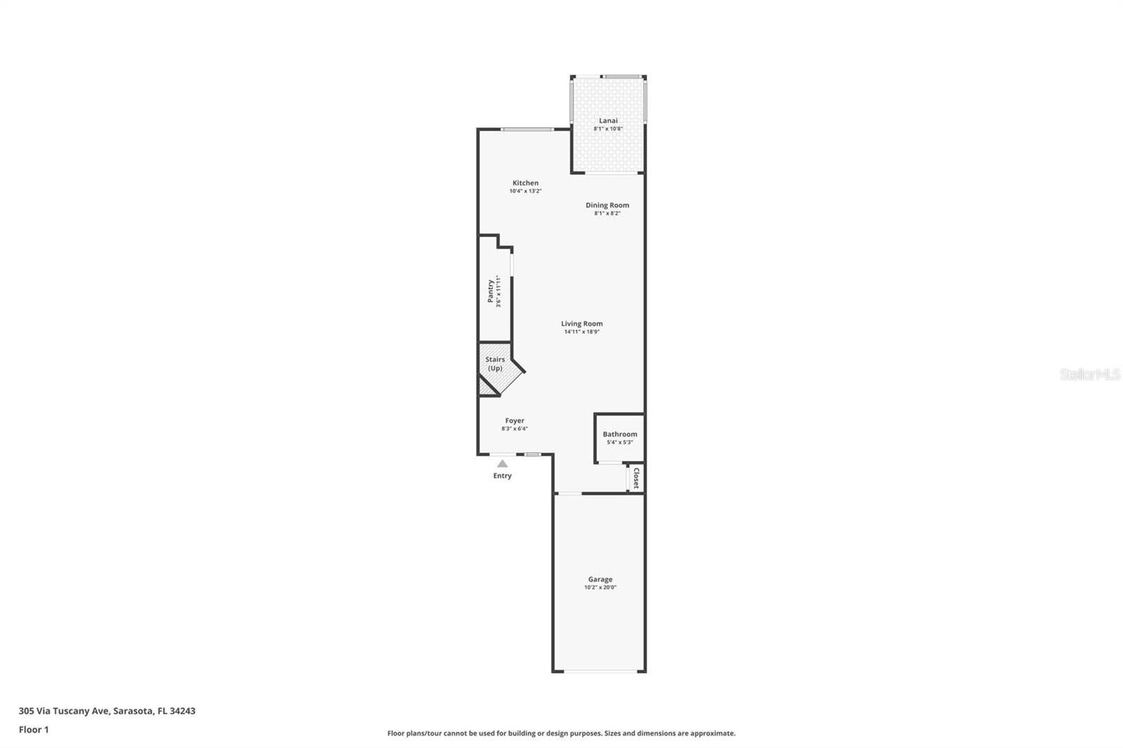
Living Area
1,853 Sqft
|
Lot Size
1,980 Sqft
|
| Property Features | Property Features | |||
|---|---|---|---|---|
| MLS ID: | MFRA4647013 | Year Built: | 2025 | |
| Appliances: | Dishwasher, Disposal, Microwave | Community Features: | Gated Community - No Guard, Pool, Sidewalks | |
| Cooling: | Central Air | Country: | US | |
| County Or Parish: | Sarasota | Direction Faces: | East | |
| Exterior Features: | Sidewalk | Flooring: | Carpet, Tile | |
| Furnished: | Unfurnished | Heating: | Heat Pump | |
| Laundry Features: | Inside, Upper Level | Levels: | Two | |
| Occupant Type: | Vacant | Other Equipment: | Irrigation Equipment | |
| Owner Pays: | Other | Pets Allowed: | Cats OK, Dogs OK | |
| Property Condition: | Completed | Property Sub Type: | Townhouse | |
| Property Type: | Residential Lease | Road Surface Type: | Asphalt | |
| Sewer: | Public Sewer | Showing Requirements: | ShowingTime | |
| Standard Status: | Active | State Or Province: | FL | |
| Tenant Pays: | Cleaning Fee | Utilities: | Cable Available, Electricity Available, Sewer Available, Water Available | |
| Water Source: | Public | |||
| Rooms | Rooms | |||
|---|---|---|---|---|
| Great Room: | 15x19 ft | Primary Bedroom: | 14x13 ft | |
| Bedroom 2: | 10x9 ft | Kitchen: | 10x12 ft | |
| Dining Room: | 8x8 ft | |||