
|
Bedrooms
3
|
Bathrooms
2
|
Living Area
2,841 Sqft
|
Lot Size
435,600 Sqft
|
| Property Features | Property Features | |||
|---|---|---|---|---|
| MLS ID: | MFRA4648416 | Year Built: | 1992 | |
| Appliances: | Dishwasher, Dryer, Gas Water Heater, Microwave, Range, Refrigerator, Tankless Water Heater, Washer | Architectural Style: | Traditional | |
| Construction Materials: | Block, Stucco | Cooling: | Central Air | |
| Country: | US | County Or Parish: | Manatee | |
| Direction Faces: | East | Exterior Features: | Private Mailbox, Storage | |
| Fencing: | Wire | Fireplace Features: | Wood Burning | |
| Flooring: | Carpet, Ceramic Tile, Wood | Foundation Details: | Slab | |
| Heating: | Central, Electric | Laundry Features: | Laundry Room | |
| Levels: | One | Listing Agreement: | Exclusive Right To Sell | |
| Listing Terms: | Cash, Conventional | Lot Features: | Landscaped, Pasture, Private, Zoned for Horses | |
| Occupant Type: | Owner | Other Structures: | Barn(s) | |
| Patio And Porch Features: | Front Porch | Property Sub Type: | Single Family Residence | |
| Property Type: | Residential | Road Responsibility: | Public Maintained Road | |
| Road Surface Type: | Dirt | Roof: | Metal | |
| Sewer: | Septic Tank | Showing Requirements: | Supra Lock Box, Listing Agent Must Accompany, ShowingTime | |
| Special Listing Conditions: | None | Standard Status: | Active | |
| State Or Province: | FL | Utilities: | Electricity Connected, Fiber Optics, Propane, Sewer Connected, Water Connected | |
| Vegetation: | Mature Landscaping, Trees/Landscaped | View: | Trees/Woods | |
| Water Source: | Well | |||
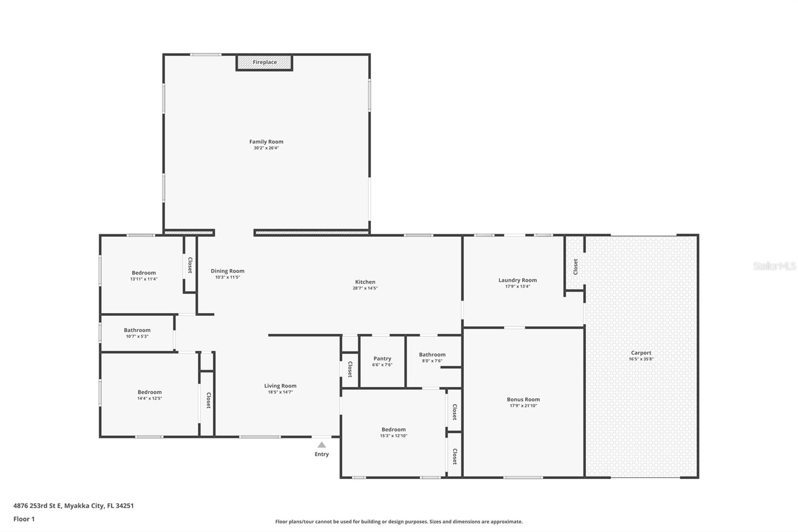
| Rooms | Rooms | |||
|---|---|---|---|---|
| Primary Bedroom: | 17x13 ft | Living Room: | 18x14 ft | |
| Dining Room: | 11x11 ft | Kitchen: | 28x14 ft | |
| Great Room: | 30x25 ft | Bedroom 2: | 14x12 ft | |
| Bedroom 3: | 11x11 ft | Bonus Room: | 21x17 ft | |
| Laundry: | 17x13 ft | |||