
| Bedrooms 2 | Bathrooms 2 | Living Area 1,470 Sqft | Lot Size 185,682 Sqft | 
| Property Features | Property Features | |||
|---|---|---|---|---|
| MLS ID: | MFRA4654664 | Year Built: | 1973 | |
| Appliances: | Dishwasher, Disposal, Dryer, Electric Water Heater, Microwave, Range, Refrigerator, Washer | Association Amenities: | Elevator(s), Fitness Center, Laundry, Lobby Key Required, Maintenance, Pool, Spa/Hot Tub, Storage, Tennis Court(s), Vehicle Restrictions | |
| Association Fee Includes: | Cable TV, Pool, Escrow Reserves Fund, Maintenance Structure, Maintenance Grounds, Management, Pest Control, Recreational Facilities, Security, Sewer, Trash, Water | Community Features: | Association Recreation - Owned, Buyer Approval Required, Community Mailbox, Deed Restrictions, Fitness Center, Irrigation-Reclaimed Water, No Truck/RV/Motorcycle Parking, Pool, Special Community Restrictions, Tennis Court(s) | |
| Construction Materials: | Concrete | Cooling: | Central Air | |
| Country: | US | County Or Parish: | Sarasota | |
| Direction Faces: | East | Exterior Features: | Balcony, Outdoor Shower, Sliding Doors, Tennis Court(s) | |
| Fireplace Features: | Decorative, Electric, Living Room | Flooring: | Travertine | |
| Foundation Details: | Stilt/On Piling | Furnished: | Furnished | |
| Heating: | Central, Electric | Laundry Features: | Electric Dryer Hookup, In Kitchen, Inside, Washer Hookup | |
| Levels: | One | Listing Agreement: | Exclusive Right To Sell | |
| Listing Terms: | Cash, Conventional | Lot Features: | CoastalConstruction Control Line, Flood Insurance Required, FloodZone, Near Golf Course | |
| Occupant Type: | Vacant | Other Equipment: | Irrigation Equipment | |
| Pets Allowed: | No | Pool Features: | Chlorine Free, Deck, Gunite, Heated, In Ground, Lap, Lighting, Outside Bath Access, Salt Water, Tile | |
| Property Condition: | Completed | Property Sub Type: | Condominium | |
| Property Type: | Residential | Road Surface Type: | Asphalt | |
| Roof: | Built-Up | Sewer: | Public Sewer | |
| Showing Requirements: | Appointment Only, Call Listing Agent, Listing Agent Must Accompany | Spa Features: | Heated, In Ground | |
| Special Listing Conditions: | None | Standard Status: | Active | |
| State Or Province: | FL | Utilities: | BB/HS Internet Available, Cable Connected, Electricity Connected, Sewer Connected, Water Connected | |
| View: | Pool, Water | Water Source: | Public | |
| Waterfront Features: | Beach Front, Gulf/Ocean | |||
| Rooms | Rooms | |||
|---|---|---|---|---|
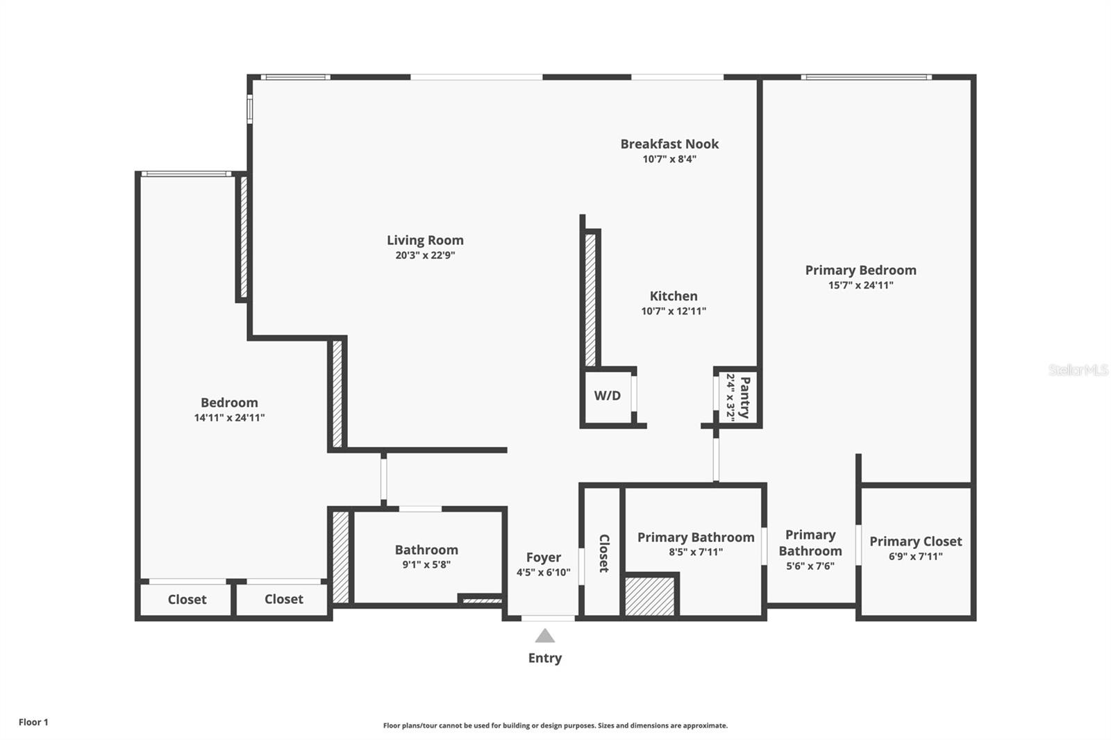
| Primary Bedroom: | 24x12 ft | Kitchen: | 11x9 ft | |
| Dining Room: | 14x7 ft | Balcony/Porch/Lanai: | 24x7 ft | |
| Living Room: | 19x15 ft | |||