
|
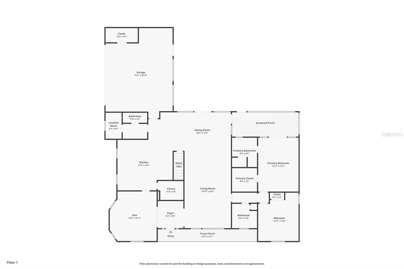
Bedrooms
3
|
Bathrooms
4
|
Living Area
2,764 Sqft
|
Lot Size
16,433 Sqft
|
| Property Features | Property Features | |||
|---|---|---|---|---|
| MLS ID: | MFRA4666035 | Year Built: | 1964 | |
| Appliances: | Bar Fridge, Dishwasher, Disposal, Dryer, Microwave, Range, Refrigerator, Tankless Water Heater, Touchless Faucet, Washer | Architectural Style: | Cape Cod, Coastal, Cottage, Traditional | |
| Construction Materials: | Wood Siding | Cooling: | Central Air | |
| Country: | US | County Or Parish: | Sarasota | |
| Direction Faces: | South | Exterior Features: | French Doors | |
| Flooring: | Tile, Wood | Foundation Details: | Block, Crawlspace, Stem Wall | |
| Furnished: | Negotiable | Heating: | Electric | |
| Laundry Features: | Inside, Laundry Room | Levels: | Two | |
| Listing Agreement: | Exclusive Right To Sell | Lot Features: | Corner Lot, City Limits, Landscaped, Level, Sidewalk, Paved | |
| Occupant Type: | Owner | Other Equipment: | Irrigation Equipment | |
| Patio And Porch Features: | Covered, Deck, Front Porch, Rear Porch, Screened | Pets Allowed: | Cats OK, Dogs OK, Yes | |
| Property Condition: | Completed | Property Sub Type: | Single Family Residence | |
| Property Type: | Residential | Road Responsibility: | Public Maintained Road | |
| Road Surface Type: | Asphalt | Roof: | Shingle | |
| Sewer: | Public Sewer | Showing Requirements: | 24 Hour Notice, Appointment Only, ShowingTime | |
| Special Listing Conditions: | None | Standard Status: | Active | |
| State Or Province: | FL | Utilities: | Cable Connected, Electricity Connected, Natural Gas Connected, Sewer Connected, Water Connected | |
| Vegetation: | Mature Landscaping, Oak Trees, Trees/Landscaped | View: | Trees/Woods | |
| Water Source: | Public | |||
| Rooms | Rooms | |||
|---|---|---|---|---|
| Living Room: | Dining Room: | |||
| Family Room: | Kitchen: | |||
| Primary Bedroom: | Bedroom 2: | |||
| Bedroom 3: | ||||