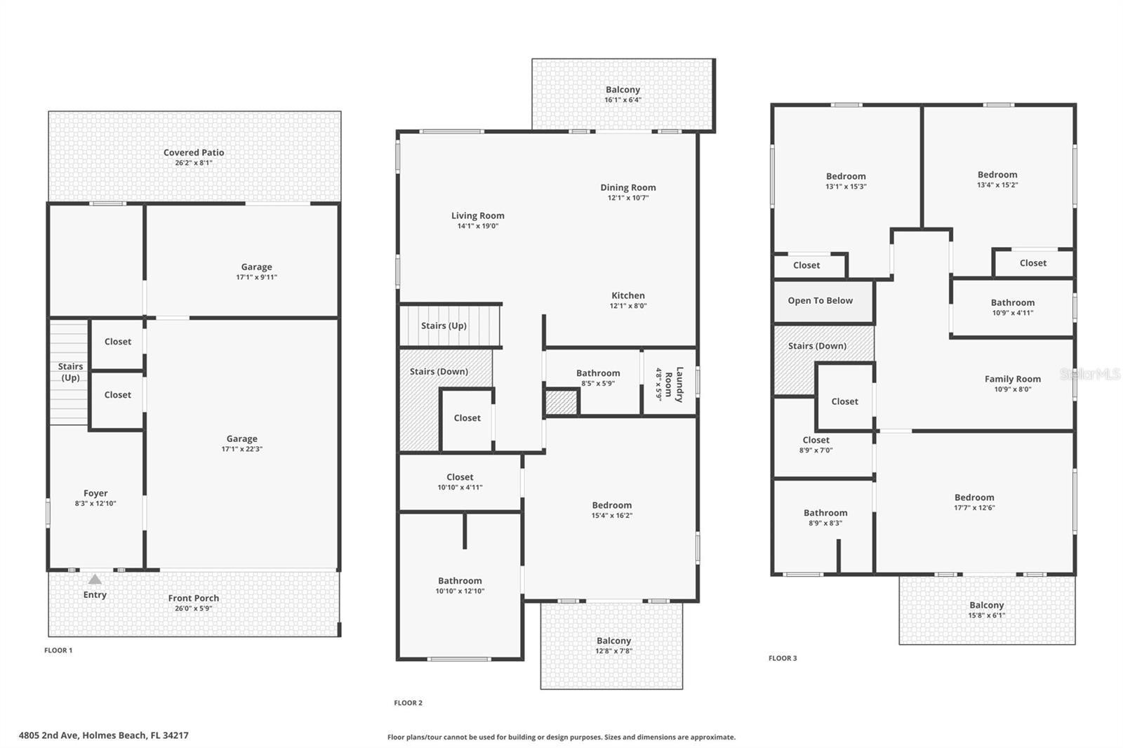
Anna Maria Island Coastal retreat, located west of Gulf Drive and only two blocks to the beach, offers the perfect blend of luxury, comfort, and investment potential. Featuring four bedrooms and three and half bathrooms and a bonus living area, this home has potential as a primary residence, vacation getaway, or income-producing property. The open concept interior showcases high ceilings, tile floors throughout, and a kitchen complete with granite counters, solid wood cabinetry, stainless steel appliances, and a large granite island ideal for entertaining. The spacious bedrooms offer large walk-in closets, while the bathrooms feature large tile showers, and the primary suite includes a relaxing jacuzzi tub. Three decks provide space for entertaining or sunset viewing. Outdoor living shines with a private tropically landscaped yard, heated pool and a fun tiki bar complete with TV, creating a true island oasis. The lower level features a two car garage with epoxy floors, storage area for beach equipment and a bonus game room. An elevator shaft offers the potential of future elevator installation. Close to world class beaches, dining, and shopping, this home has it all, capturing the ultimate Anna Maria Island lifestyle.
Property Details
Property Features Property Features
MLS ID: MFRA4679778 Year Built: 2009
Appliances: Dishwasher, Dryer, Microwave, Range, Refrigerator, Washer Architectural Style: Elevated, Key West
Construction Materials: Block, Vinyl Siding, Frame Cooling: Central Air
Country: US County Or Parish: Manatee
Direction Faces: West Exterior Features: Balcony, French Doors, Lighting
Fencing: Fenced Flooring: Tile
Foundation Details: Stem Wall Furnished: Turnkey
Heating: Central Laundry Features: Inside, Laundry Room
Levels: Two Listing Agreement: Exclusive Right To Sell
Listing Terms: Cash, Conventional Lot Features: Landscaped
Occupant Type: Vacant Parking Features: Driveway
Patio And Porch Features: Covered, Rear Porch Pets Allowed: Yes
Pool Features: Heated, In Ground Possession: Close Of Escrow
Property Condition: Completed Property Sub Type: Single Family Residence
Property Type: Residential Road Surface Type: Asphalt
Roof: Metal Sewer: Public Sewer
Showing Requirements: 24 Hour Notice, Call Listing Agent Special Listing Conditions: None
Standard Status: Active State Or Province: FL
Utilities: Cable Connected, Electricity Connected, Sewer Connected, Water Connected Vegetation: Mature Landscaping
View: Pool Water Source: Public
Window Features: Insulated Windows, Storm Window(s), Window Treatments
Rooms Rooms
Kitchen: 12x13 ft Living Room: 15x20 ft
Primary Bedroom: 16x16 ft Bedroom 2:
Bedroom 3: Bedroom 4:
We love to hear from you