
|
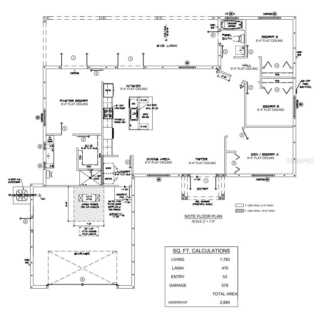
Bedrooms
4
|
Bathrooms
2
|
Living Area
1,783 Sqft
|
Lot Size
108,900 Sqft
|
| Property Features | Property Features | |||
|---|---|---|---|---|
| MLS ID: | MFRA4690987 | Year Built: | 2026 | |
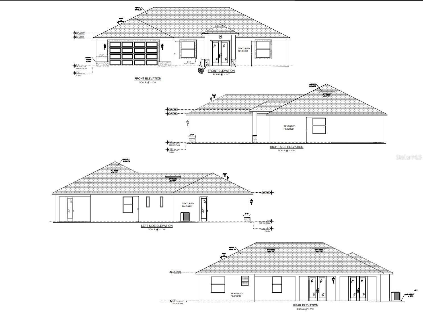
| Appliances: | Dishwasher, Microwave, Range, Refrigerator | Construction Materials: | Block, Stucco | |
| Cooling: | Central Air | Country: | US | |
| County Or Parish: | DeSoto | Direction Faces: | West | |
| Exterior Features: | French Doors, Lighting | Flooring: | Tile | |
| Foundation Details: | Slab | Furnished: | Unfurnished | |
| Green Energy Efficient: | Appliances, Construction, HVAC, Lighting, Windows | Heating: | Central | |
| Laundry Features: | Laundry Room | Levels: | One | |
| Listing Agreement: | Exclusive Right To Sell | Listing Terms: | Cash, Conventional, FHA, USDA Loan, VA Loan | |
| Occupant Type: | Vacant | Possession: | Close Of Escrow | |
| Property Condition: | Under Construction | Property Sub Type: | Single Family Residence | |
| Property Type: | Residential | Road Surface Type: | Paved | |
| Roof: | Shingle | Sewer: | Septic Needed | |
| Showing Requirements: | Call Listing Agent | Special Listing Conditions: | None | |
| Standard Status: | Active | State Or Province: | FL | |
| Utilities: | Electricity Connected | Water Source: | Well | |
| Rooms | Rooms | |||
|---|---|---|---|---|
| Primary Bedroom: | Primary Bathroom: | |||
| Bedroom 2: | Bedroom 3: | |||
| Bedroom 4: | Bathroom 2: | |||
| Living Room: | Dining Room: | |||
| Kitchen: | Laundry: | |||