
|
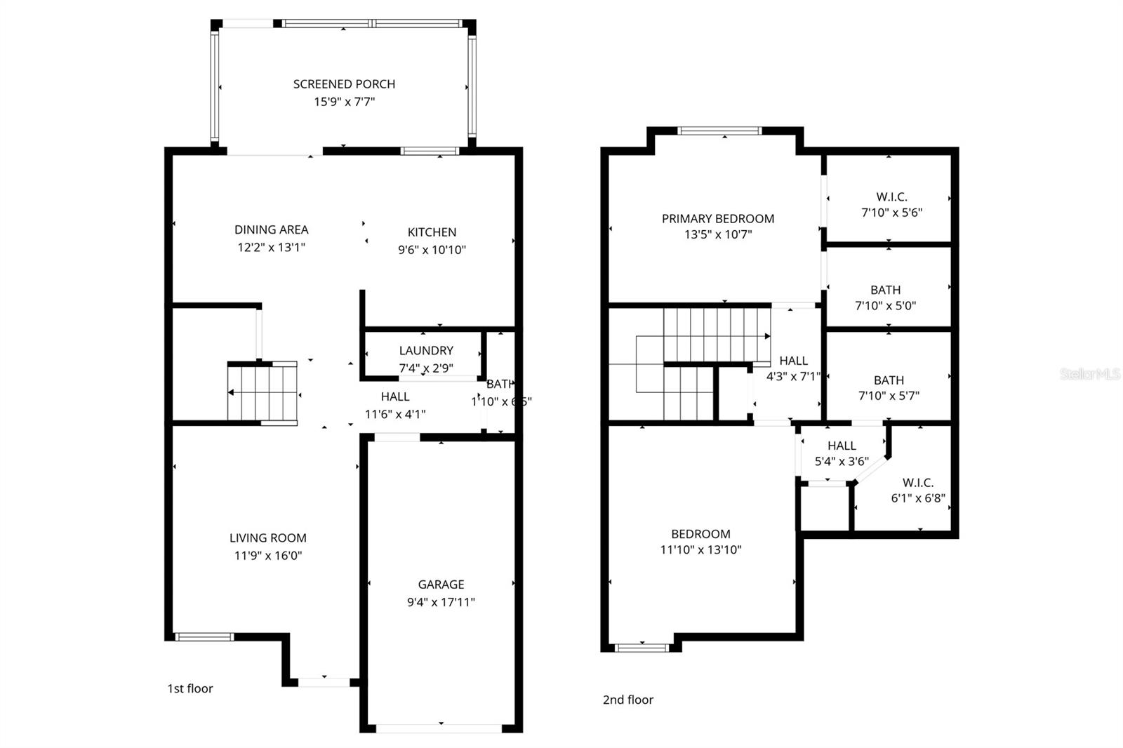
Bedrooms
2
|
Bathrooms
3
|
Living Area
1,156 Sqft
|
Lot Size
135,106 Sqft
|
| Property Features | Property Features | |||
|---|---|---|---|---|
| MLS ID: | MFRA4691025 | Year Built: | 2003 | |
| Appliances: | Dishwasher, Disposal, Dryer, Electric Water Heater, Microwave, Range, Refrigerator, Washer | Association Fee Includes: | Common Area Taxes, Pool, Escrow Reserves Fund, Insurance, Maintenance Structure, Maintenance Grounds, Management, Pest Control | |
| Community Features: | Buyer Approval Required, Clubhouse, Community Mailbox, Deed Restrictions, Fitness Center, Gated Community - No Guard, Playground, Pool | Construction Materials: | Stucco | |
| Cooling: | Central Air | Country: | US | |
| County Or Parish: | Manatee | Direction Faces: | North | |
| Exterior Features: | Sidewalk, Sliding Doors | Flooring: | Carpet, Tile | |
| Foundation Details: | Slab | Furnished: | Unfurnished | |
| Heating: | Electric | Laundry Features: | Laundry Closet | |
| Levels: | Two | Listing Agreement: | Exclusive Right To Sell | |
| Listing Terms: | Cash, Conventional, VA Loan | Occupant Type: | Vacant | |
| Parking Features: | Assigned | Pets Allowed: | Breed Restrictions, Cats OK, Dogs OK | |
| Possession: | Close Of Escrow | Property Sub Type: | Townhouse | |
| Property Type: | Residential | Road Surface Type: | Asphalt | |
| Roof: | Shingle | Sewer: | Public Sewer | |
| Showing Requirements: | Supra Lock Box, Appointment Only, Gate Code Required | Special Listing Conditions: | None | |
| Standard Status: | Active | State Or Province: | FL | |
| Utilities: | Electricity Connected, Public, Sewer Connected | View: | Water | |
| Water Source: | Public | |||
| Rooms | Rooms | |||
|---|---|---|---|---|
| Living Room: | 11x16 ft | Kitchen: | 9x10 ft | |
| Dining Room: | 12x13 ft | Primary Bedroom: | 13x10 ft | |
| Bedroom 2: | 11x13 ft | |||