
|
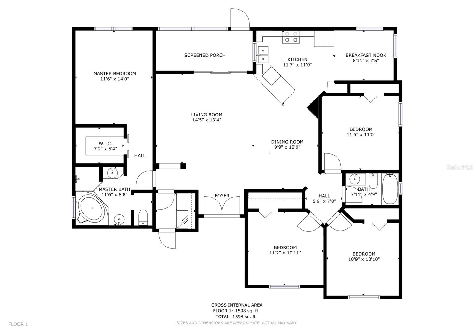
Bedrooms
4
|
Bathrooms
2
|
Living Area
1,699 Sqft
|
Lot Size
7,475 Sqft
|
| Property Features | Property Features | |||
|---|---|---|---|---|
| MLS ID: | MFRB4902246 | Year Built: | 2004 | |
| Appliances: | Dishwasher, Disposal, Dryer, Electric Water Heater, Microwave, Range, Range Hood, Refrigerator, Tankless Water Heater, Washer, Water Softener | Community Features: | Gated, Street Lights | |
| Cooling: | Central Air | Country: | US | |
| County Or Parish: | Polk | Direction Faces: | Southwest | |
| Exterior Features: | Lighting, Sidewalk, Sliding Doors | Flooring: | Carpet, Ceramic Tile | |
| Furnished: | Unfurnished | Green Energy Efficient: | Energy Monitoring System | |
| Green Energy Generation: | Solar | Heating: | Central, Electric, Heat Pump | |
| Laundry Features: | Laundry Room | Lease Term: | Twelve Months | |
| Levels: | One | Listing Agreement: | Exclusive Right To Lease | |
| Occupant Type: | Vacant | Other Equipment: | Irrigation Equipment | |
| Owner Pays: | Grounds Care | Patio And Porch Features: | Covered, Enclosed | |
| Pets Allowed: | Cats OK, Dogs OK | Possession: | Rental Agreement | |
| Property Condition: | Completed | Property Sub Type: | Single Family Residence | |
| Property Type: | Residential Lease | Road Responsibility: | Public Maintained Road | |
| Road Surface Type: | Asphalt | Security Features: | Gated Community, Smoke Detector(s) | |
| Sewer: | Public Sewer | Showing Requirements: | Appointment Only, Combination Lock Box | |
| Standard Status: | Active | State Or Province: | FL | |
| Utilities: | BB/HS Internet Available, Cable Available, Cable Connected, Electricity Connected, Public, Underground Utilities, Water Connected | Water Source: | None | |
| Window Features: | Blinds | |||
| Rooms | Rooms | |||
|---|---|---|---|---|
| Bedroom 2: | 12x12 ft | Bedroom 3: | 12x13 ft | |
| Bedroom 4: | 12x12 ft | Dining Room: | 9x12 ft | |
| Family Room: | 12x16 ft | Kitchen: | 11x13 ft | |
| Living Room: | 9x10 ft | Primary Bedroom: | 14x16 ft | |