
|
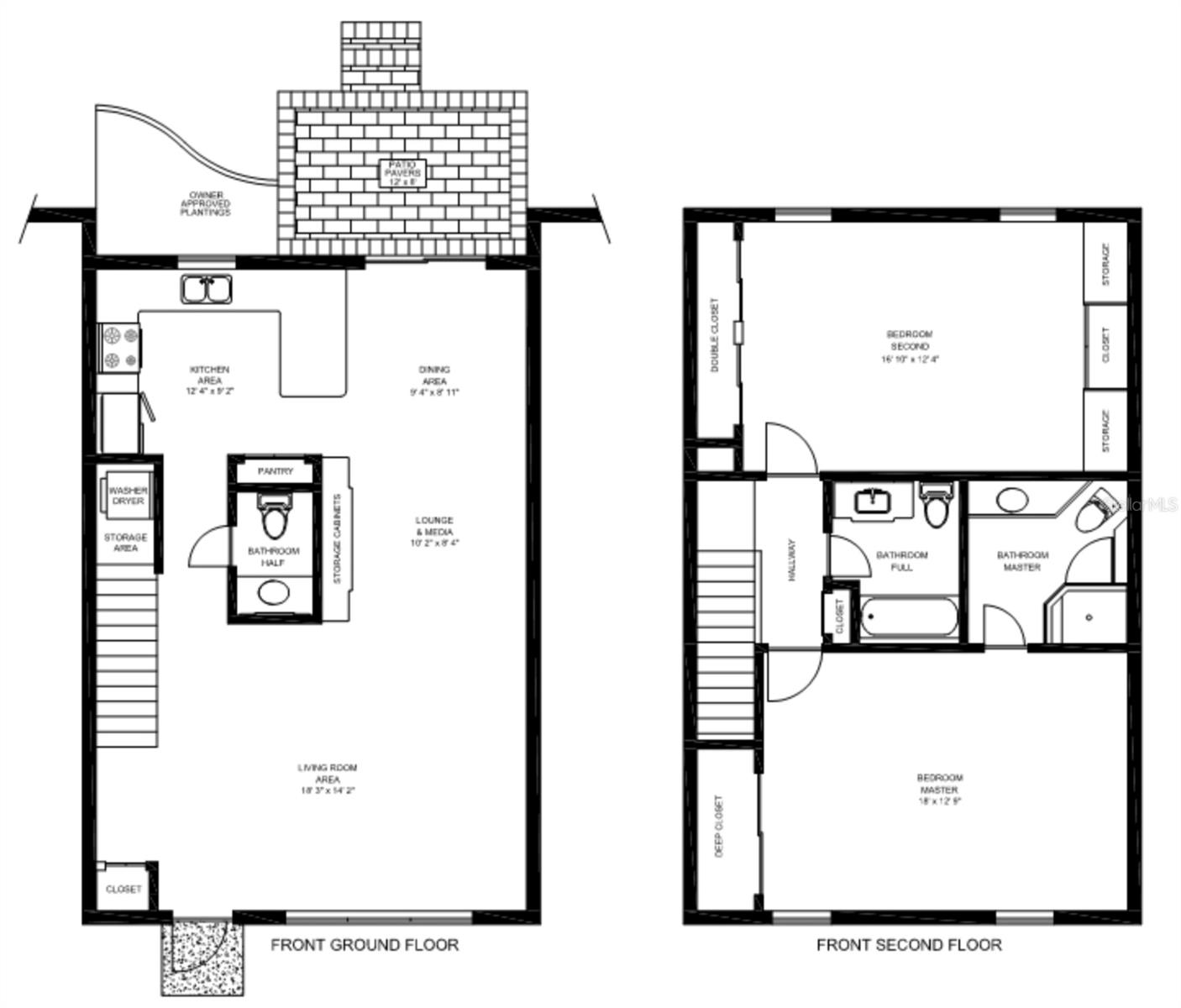
Bedrooms
2
|
Bathrooms
3
|
Living Area
1,515 Sqft
|
Lot Size
736 Sqft
|
| Property Features | Property Features | |||
|---|---|---|---|---|
| MLS ID: | MFRC7504007 | Year Built: | 1981 | |
| Appliances: | Dishwasher, Disposal, Dryer, Electric Water Heater, Microwave, Range, Refrigerator, Washer | Architectural Style: | Florida | |
| Association Fee Includes: | Common Area Taxes, Pool, Escrow Reserves Fund, Fidelity Bond, Insurance, Maintenance Grounds, Management, Pest Control | Community Features: | Deed Restrictions, Pool | |
| Construction Materials: | Block, Stucco | Cooling: | Central Air | |
| Country: | US | County Or Parish: | Charlotte | |
| Direction Faces: | East | Exterior Features: | Courtyard, Sliding Doors | |
| Flooring: | Tile, Vinyl | Foundation Details: | Slab | |
| Furnished: | Furnished | Heating: | Central | |
| Laundry Features: | Inside | Levels: | Two | |
| Listing Agreement: | Exclusive Right To Sell | Listing Terms: | Cash, Conventional, Owner Financing | |
| Lot Features: | Flood Insurance Required, City Limits, Near Golf Course, Street Dead-End, Paved | Occupant Type: | Owner | |
| Other Equipment: | Irrigation Equipment | Patio And Porch Features: | Patio | |
| Pets Allowed: | Number Limit, Yes | Property Sub Type: | Townhouse | |
| Property Type: | Residential | Road Surface Type: | Paved | |
| Roof: | Shingle | Sewer: | Public Sewer | |
| Showing Requirements: | Appointment Only, Lock Box Electronic, ShowingTime | Special Listing Conditions: | None | |
| Standard Status: | Active | State Or Province: | FL | |
| Utilities: | BB/HS Internet Available, Cable Available, Electricity Connected, Sewer Connected, Water Connected | Vegetation: | Mature Landscaping | |
| View: | Pool, Water | Water Source: | Public | |
| Waterfront Features: | Canal - Saltwater | Window Features: | Shades | |
| Rooms | Rooms | |||
|---|---|---|---|---|
| Living Room: | 18x14 ft | Dinette: | 9x9 ft | |
| Kitchen: | 12x10 ft | Family Room: | 10x10 ft | |
| Primary Bedroom: | 18x13 ft | Primary Bathroom: | 8x8 ft | |
| Bedroom 2: | 12x17 ft | Bathroom 2: | 8x6 ft | |
| Laundry: | 5x3 ft | |||