
|
Bedrooms
4
|
Bathrooms
4
|
Living Area
2,032 Sqft
|
Lot Size
9,600 Sqft
|
| Property Features | Property Features | |||
|---|---|---|---|---|
| MLS ID: | MFRC7504325 | Year Built: | 1982 | |
| Appliances: | Dishwasher, Dryer, Electric Water Heater, Kitchen Reverse Osmosis System, Microwave, Range, Refrigerator, Washer, Water Softener | Architectural Style: | Florida | |
| Community Features: | Sidewalks, Special Community Restrictions | Construction Materials: | Block, Stucco | |
| Cooling: | Central Air | Country: | US | |
| Direction Faces: | South | Disclosures: | Seller Property Disclosure | |
| Exterior Features: | Hurricane Shutters, Irrigation System, Sidewalk, Sliding Doors | Flooring: | Luxury Vinyl, Tile | |
| Foundation Details: | Slab | Heating: | Central, Electric | |
| Laundry Features: | Laundry Room, Outside | Levels: | One | |
| Listing Agreement: | Exclusive Right To Sell | Listing Terms: | Cash, Conventional, FHA, VA Loan | |
| Lot Features: | FloodZone, City Limits, Near Golf Course, Sidewalk, Paved | Occupant Type: | Owner | |
| Parking Features: | Driveway | Patio And Porch Features: | Patio, Screened | |
| Pets Allowed: | No | Pool Features: | Gunite, Heated, In Ground, Screen Enclosure | |
| Possession: | Close of Escrow | Property Sub Type: | Single Family Residence | |
| Property Type: | Residential | Road Responsibility: | Public Maintained Road | |
| Road Surface Type: | Paved | Roof: | Metal | |
| Security Features: | Smoke Detector(s) | Sewer: | Public Sewer | |
| Showing Requirements: | Supra Lock Box, Appointment Only, ShowingTime | Special Listing Conditions: | None | |
| Standard Status: | Active | State Or Province: | FL | |
| Utilities: | BB/HS Internet Available, Cable Connected, Electricity Connected, Phone Available, Sewer Connected, Water Connected | Vegetation: | Trees/Landscaped | |
| View: | Water | Water Source: | Public | |
| Waterfront Features: | Canal - Saltwater | Window Features: | Blinds | |
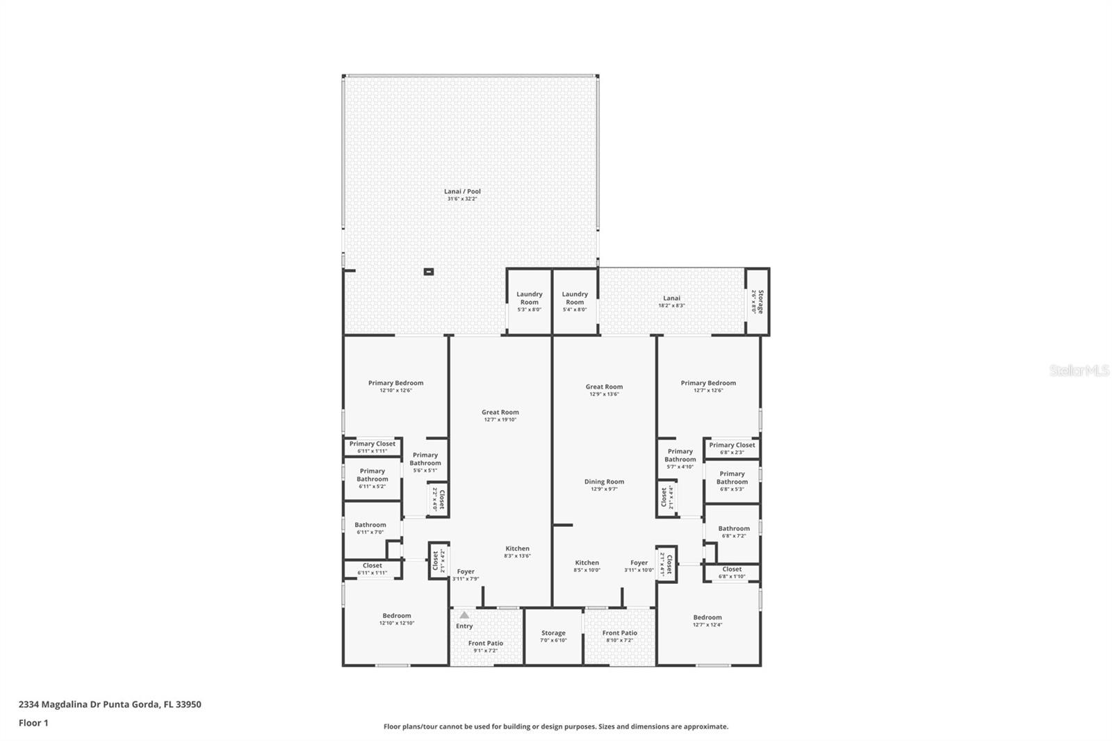
| Rooms | Rooms | |||
|---|---|---|---|---|
| Great Room: | 18x12 ft | Kitchen: | 12x15 ft | |
| Primary Bedroom: | 12x12 ft | Primary Bathroom: | 6x5 ft | |
| Bedroom 2: | 11x12 ft | Bathroom 2: | 6x7 ft | |
| Laundry: | 5x7 ft | Balcony/Porch/Lanai: | 20x8 ft | |