
|
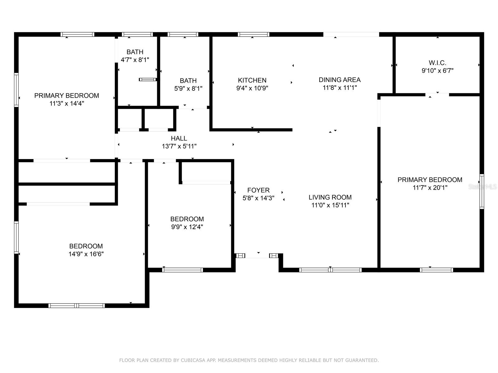
Bedrooms
3
|
Bathrooms
2
|
Living Area
1,624 Sqft
|
Lot Size
14,749 Sqft
|
| Property Features | Property Features | |||
|---|---|---|---|---|
| MLS ID: | MFRC7505723 | Year Built: | 1977 | |
| Appliances: | None | Construction Materials: | Brick, Stucco | |
| Cooling: | Central Air, None | Country: | US | |
| Direction Faces: | North | Exterior Features: | Other | |
| Flooring: | Other, Tile | Foundation Details: | Slab | |
| Heating: | Central, None | Laundry Features: | Inside | |
| Levels: | One | Listing Agreement: | Exclusive Agency | |
| Occupant Type: | Vacant | Property Sub Type: | Single Family Residence | |
| Property Type: | Residential | Road Surface Type: | Asphalt | |
| Roof: | Shingle | Sewer: | Other | |
| Showing Requirements: | Call Listing Agent 2, Lock Box No Call, ShowingTime | Special Listing Conditions: | None | |
| Standard Status: | Active | State Or Province: | FL | |
| Utilities: | Cable Available, Electricity Available, Sewer Available, Water Available | Water Source: | See Remarks | |
| Rooms | Rooms | |||
|---|---|---|---|---|
| Kitchen: | Living Room: | |||
| Primary Bedroom: | ||||