
|
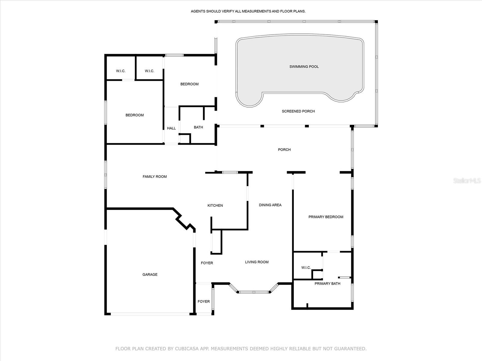
Bedrooms
3
|
Bathrooms
2
|
Living Area
1,708 Sqft
|
Lot Size
11,250 Sqft
|
| Property Features | Property Features | |||
|---|---|---|---|---|
| MLS ID: | MFRC7507507 | Year Built: | 1987 | |
| Appliances: | Dryer, Electric Water Heater, Refrigerator, Washer | Architectural Style: | Florida, Ranch, Traditional | |
| Construction Materials: | Block, Stucco | Cooling: | Central Air | |
| Country: | US | County Or Parish: | Charlotte | |
| Direction Faces: | East | Exterior Features: | Hurricane Shutters, Private Mailbox, Rain Gutters, Sliding Doors, Storage | |
| Flooring: | Carpet, Tile, Wood | Foundation Details: | Slab | |
| Heating: | Central | Laundry Features: | In Garage | |
| Levels: | One | Listing Agreement: | Exclusive Right To Sell | |
| Listing Terms: | Cash, Conventional, FHA, VA Loan | Lot Features: | Landscaped, Paved | |
| Occupant Type: | Owner | Other Structures: | Shed(s), Storage | |
| Parking Features: | Driveway, Off Street | Patio And Porch Features: | Covered, Deck, Patio, Rear Porch, Screened | |
| Pool Features: | Gunite, In Ground, Screen Enclosure | Possession: | Close Of Escrow, Negotiable | |
| Property Condition: | Completed | Property Sub Type: | Single Family Residence | |
| Property Type: | Residential | Road Surface Type: | Asphalt | |
| Roof: | Shingle | Sewer: | Public Sewer | |
| Showing Requirements: | Supra Lock Box, Appointment Only, See Remarks, ShowingTime | Special Listing Conditions: | None | |
| Standard Status: | Active | State Or Province: | FL | |
| Utilities: | Electricity Connected, Public, Sewer Connected, Water Connected | Vegetation: | Mature Landscaping, Trees/Landscaped | |
| View: | Pool, Trees/Woods, Water | Water Source: | Public | |
| Waterfront Features: | Brackish Water, Canal - Brackish, Canal - Saltwater, Canal Front | Window Features: | Shutters | |
| Rooms | Rooms | |||
|---|---|---|---|---|
| Primary Bedroom: | 12x17 ft | Bedroom 2: | 11x13.6 ft | |
| Bedroom 3: | 10.5x11 ft | Family Room: | 13x13 ft | |
| Kitchen: | 12.6x11.3 ft | Dining Room: | 10x12 ft | |
| Living Room: | 15x11 ft | Primary Bathroom: | 17.4x11.5 ft | |
| Bathroom 2: | 7.4x7.9 ft | |||