
|
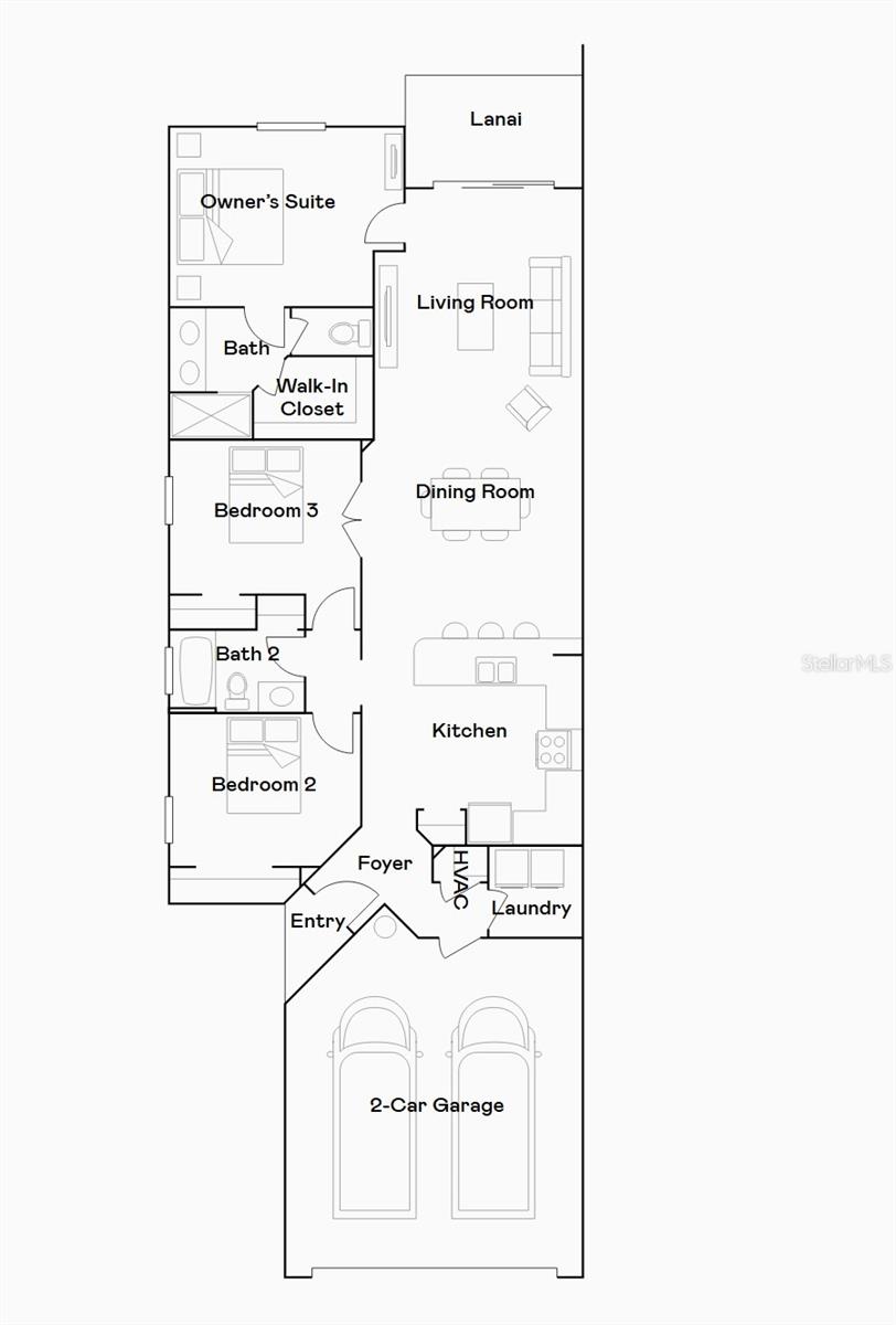
Bedrooms
3
|
Bathrooms
2
|
Living Area
1,417 Sqft
|
Lot Size
4,799 Sqft
|
| Property Features | Property Features | |||
|---|---|---|---|---|
| MLS ID: | MFRC7507970 | Year Built: | 2024 | |
| Appliances: | Dishwasher, Disposal, Dryer, Electric Water Heater, Exhaust Fan, Freezer, Ice Maker, Microwave, Range, Refrigerator, Washer | Association Amenities: | Clubhouse, Fitness Center, Gated, Maintenance, Park, Pickleball Court(s), Playground, Pool | |
| Association Fee Includes: | Pool, Internet, Maintenance Grounds | Construction Materials: | Block, Stucco | |
| Cooling: | Central Air | Country: | US | |
| Direction Faces: | Southwest | Exterior Features: | Irrigation System, Lighting, Other, Sidewalk, Sliding Doors | |
| Flooring: | Tile | Foundation Details: | Slab | |
| Heating: | Central, Electric | Laundry Features: | Electric Dryer Hookup, Laundry Room, Washer Hookup | |
| Levels: | One | Listing Agreement: | Exclusive Agency | |
| Occupant Type: | Vacant | Pets Allowed: | Cats OK, Dogs OK | |
| Property Condition: | Completed | Property Sub Type: | Single Family Residence | |
| Property Type: | Residential | Road Surface Type: | Asphalt, Paved | |
| Roof: | Shingle | Sewer: | Public Sewer | |
| Showing Requirements: | Call Before Showing, Call Listing Agent | Special Listing Conditions: | None | |
| Standard Status: | Active | State Or Province: | FL | |
| Utilities: | Cable Available, Cable Connected, Electricity Available, Electricity Connected, Phone Available, Public, Sewer Connected, Sprinkler Recycled, Underground Utilities, Water Connected | Water Source: | Public | |
| Rooms | Rooms | |||
|---|---|---|---|---|
| Kitchen: | 10x13 ft | Dining Room: | 10x13 ft | |
| Living Room: | 13x16 ft | Balcony/Porch/Lanai: | 7x11 ft | |
| Primary Bedroom: | 11x15 ft | Bedroom 2: | 10x12 ft | |
| Bedroom 3: | 10x13 ft | |||