2560 BAYBREEZE ST, ST JAMES CITY, FL, 33956
$419,000
Land
Lot Size
10,106 Sqft
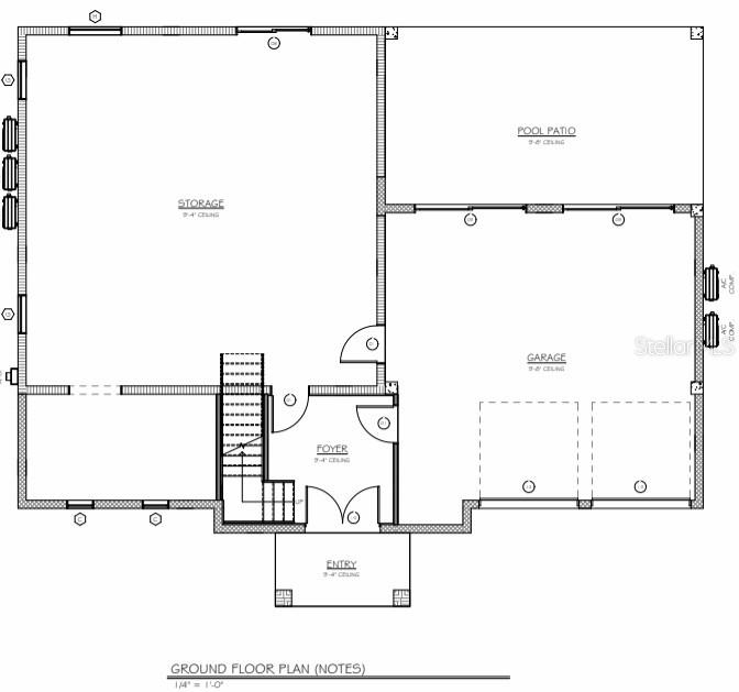
Remodel permit approved, all fees PAID. All a new owner needs to complete is an owner/builder affidavit with the building department or have your contractor provide their contractor information to the County. Pool permit in hand with Design Concepts! Took over a year to get the remodel permit. House is ready for complete transformation. Existing home requires remodel per building plan. The planned addition is to be built ON TOP of the existing concrete block walls. No expensive lifting of the house required. House is totally gutted and concrete cut and hammered out for new thickened footings. All that is left to do is remove the trusses and roof. Two existing boat lifts, one is 10,000 lb the other is 20,000 lb. Beautiful open floor plan with all vaulted ceilings. Modern design with old Florida appeal. 2,075 sq ft of finished space, two car garage and roughly 1,215 sq ft of flex space on lower level. Seller got tired of waiting for the permit and bought another one in the neighborhood. Pool design does not encroach under the house as shown in the renderings. A short 10 minute boat ride to open water via Philips canal. Situated in the heart of a golf cart-friendly community, this home offers easy access to nearby amenities, including a general store, local fish market, Galt Preserve, and St. Jude Nature Trail—all within golf cart distance in St. James City. The island is also home to several preserves, including the Calusa Heritage Trail and the Pine Island Sound Aquatic Preserve, perfect for nature enthusiasts. St. James City is alive with community spirit, featuring the Civic Association Park, which hosts a variety of events, including free afternoon concerts. There is no shortage of things to keep you occupied, with 18 miles of biking/walking paths, tennis and pickleball courts, heated community pool, and playground. Plus, you’ll find weekly live entertainment at several spots across the island, and fun tiki restaurants, creating an inviting and vibrant atmosphere. Short boating adventures out to Sanibel, Captiva, or Fort Myers Beach. Come experience the laid back island lifestyle you’ve been looking for!
Property Details
Property Features Property Features
MLS ID: MFRC7508625 Year Built:
Country: US County Or Parish: Lee
Current Use: Residential Direction Faces: West
Listing Agreement: Exclusive Right To Sell Listing Terms: Cash, Conventional
Lot Features: Buildable, In County, Level, Paved, Unincorporated Pets Allowed: Yes
Possession: Close Of Escrow Property Type: Land
Road Responsibility: Public Maintained Road Road Surface Type: Asphalt, Paved
Sewer: Septic Tank Showing Requirements: ShowingTime
Special Listing Conditions: None Standard Status: Active
State Or Province: FL Utilities: BB/HS Internet Available, Cable Available, Electricity Available, Public, Water Connected
View: Pool, Water Water Source: Public
Waterfront Features: Canal - Saltwater
We love to hear from you