
|
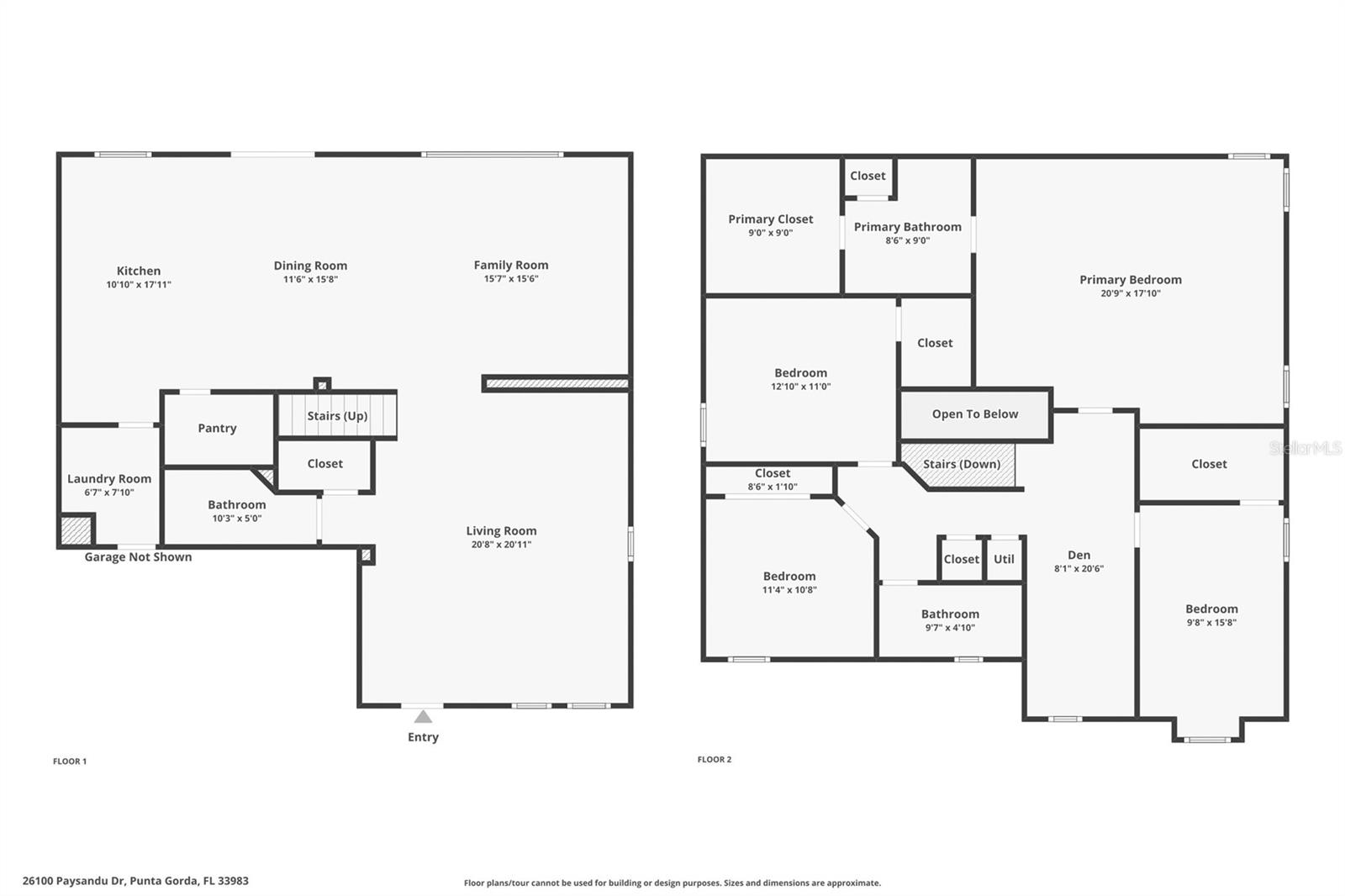
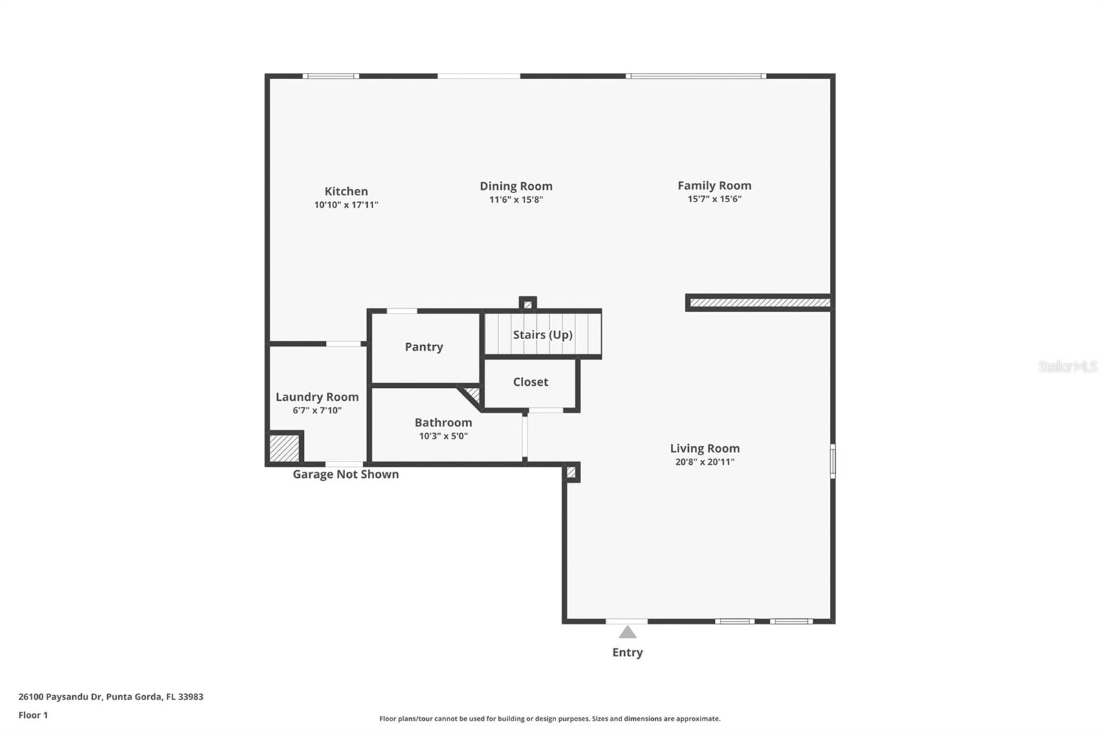
Bedrooms
4
|
Bathrooms
3
|
Living Area
2,767 Sqft
|
Lot Size
9,599 Sqft
|
| Property Features | Property Features | |||
|---|---|---|---|---|
| MLS ID: | MFRC7509156 | Year Built: | 2005 | |
| Appliances: | Convection Oven, Dishwasher, Dryer, Electric Water Heater, Exhaust Fan, Freezer, Range, Refrigerator, Washer | Construction Materials: | Block | |
| Cooling: | Central Air | Country: | US | |
| County Or Parish: | Charlotte | Direction Faces: | South | |
| Exterior Features: | Garden, Private Mailbox | Flooring: | Luxury Vinyl, Tile | |
| Foundation Details: | Slab | Heating: | Central, Electric | |
| Laundry Features: | Electric Dryer Hookup, Laundry Room, Washer Hookup | Levels: | Two | |
| Listing Agreement: | Exclusive Right To Sell | Listing Terms: | Cash, Conventional, FHA, VA Loan | |
| Occupant Type: | Vacant | Pets Allowed: | Yes | |
| Property Sub Type: | Single Family Residence | Property Type: | Residential | |
| Road Surface Type: | Asphalt | Roof: | Shingle | |
| Sewer: | Public Sewer | Showing Requirements: | Supra Lock Box, ShowingTime | |
| Special Listing Conditions: | None | Standard Status: | Active | |
| State Or Province: | FL | Utilities: | Public | |
| Water Source: | Public | |||
| Rooms | Rooms | |||
|---|---|---|---|---|
| Primary Bedroom: | Kitchen: | |||
| Great Room: | ||||