
|
Bedrooms
3
|
Bathrooms
2
|
Living Area
1,451 Sqft
|
Lot Size
2,392 Sqft
|
| Property Features | Property Features | |||
|---|---|---|---|---|
| MLS ID: | MFRC7509554 | Year Built: | 2005 | |
| Appliances: | Dishwasher, Disposal, Electric Water Heater, Exhaust Fan, Microwave, Range, Refrigerator | Association Fee Includes: | Cable TV, Common Area Taxes, Pool, Escrow Reserves Fund, Insurance, Maintenance Structure, Maintenance Grounds, Maintenance, Pest Control, Recreational Facilities, Trash | |
| Community Features: | Buyer Approval Required, Clubhouse, Deed Restrictions, Pool, Sidewalks, Street Lights | Construction Materials: | Stucco | |
| Cooling: | Central Air | Country: | US | |
| County Or Parish: | Charlotte | Direction Faces: | Southwest | |
| Exterior Features: | Hurricane Shutters, Lighting, Rain Gutters, Sidewalk, Sliding Doors | Flooring: | Carpet, Ceramic Tile | |
| Foundation Details: | Slab | Furnished: | Unfurnished | |
| Heating: | Central, Electric | Laundry Features: | Inside, Laundry Room | |
| Levels: | One | Listing Agreement: | Exclusive Right To Sell | |
| Lot Features: | City Limits, Near Golf Course, Near Marina, Sidewalk, Paved, Private | Occupant Type: | Owner | |
| Other Equipment: | Irrigation Equipment | Parking Features: | Driveway | |
| Patio And Porch Features: | Covered, Rear Porch, Screened | Pets Allowed: | Breed Restrictions | |
| Possession: | Close Of Escrow | Property Sub Type: | Townhouse | |
| Property Type: | Residential | Road Responsibility: | Public Maintained Road | |
| Road Surface Type: | Asphalt | Roof: | Tile | |
| Sewer: | Public Sewer | Showing Requirements: | 24 Hour Notice, Appointment Only, ShowingTime | |
| Special Listing Conditions: | None | Standard Status: | Active | |
| State Or Province: | FL | Utilities: | Cable Connected, Electricity Connected, Public, Sewer Connected, Water Connected | |
| Water Source: | Public | |||
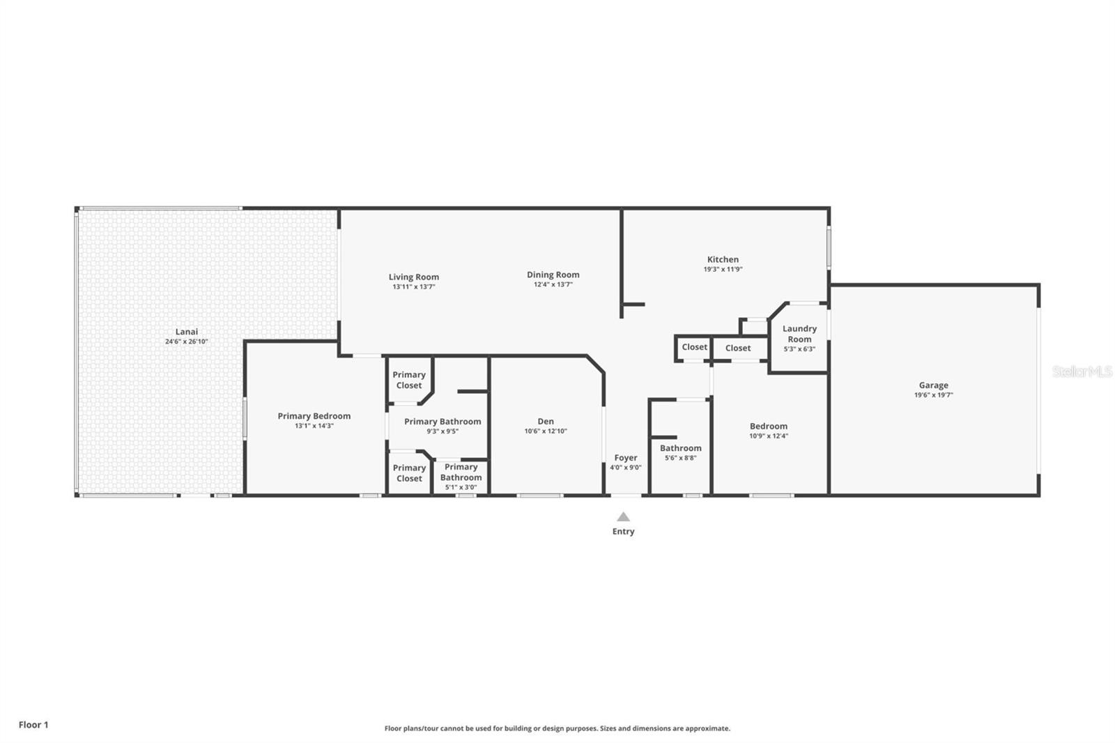
| Rooms | Rooms | |||
|---|---|---|---|---|
| Living Room: | 13x14 ft | Dining Room: | 12x14 ft | |
| Kitchen: | 19x12 ft | Laundry: | 5x6 ft | |
| Bathroom 1: | 6x9 ft | Primary Bedroom: | 13x14 ft | |
| Bedroom 2: | 11x12 ft | Additional Bedroom: | 11x13 ft | |
| Primary Bathroom: | 14x10 ft | Balcony/Porch/Lanai: | 25x27 ft | |