
|
Bedrooms
3
|
Bathrooms
3
|
Living Area
2,193 Sqft
|
Lot Size
50,000 Sqft
|
| Property Features | Property Features | |||
|---|---|---|---|---|
| MLS ID: | MFRC7514343 | Year Built: | 2013 | |
| Appliances: | Dishwasher, Electric Water Heater, Microwave, Range, Refrigerator | Construction Materials: | Block, Stucco | |
| Cooling: | Central Air | Country: | US | |
| County Or Parish: | Charlotte | Direction Faces: | Southwest | |
| Exterior Features: | Lighting | Fencing: | Chain Link, Fenced, Other | |
| Flooring: | Tile, Wood | Foundation Details: | Slab | |
| Heating: | Central | Laundry Features: | Laundry Room | |
| Levels: | One | Listing Agreement: | Exclusive Right To Sell | |
| Listing Terms: | Cash, Conventional, FHA | Lot Features: | Cleared, Oversized Lot | |
| Occupant Type: | Vacant | Parking Features: | Boat, Driveway, Garage Door Opener, Garage Faces Side, RV Access/Parking | |
| Patio And Porch Features: | Covered, Enclosed, Patio, Porch, Rear Porch, Screened | Possession: | Close Of Escrow | |
| Property Condition: | Completed | Property Sub Type: | Single Family Residence | |
| Property Type: | Residential | Road Responsibility: | Public Maintained Road | |
| Road Surface Type: | Asphalt, Paved | Roof: | Shingle | |
| Sewer: | Septic Tank | Showing Requirements: | Go Direct, ShowingTime | |
| Special Listing Conditions: | None | Standard Status: | Active | |
| State Or Province: | FL | Utilities: | BB/HS Internet Available, Cable Available, Electricity Connected, Phone Available, Propane, Underground Utilities, Water Connected | |
| Vegetation: | Trees/Landscaped | View: | Trees/Woods | |
| Water Source: | Public | |||
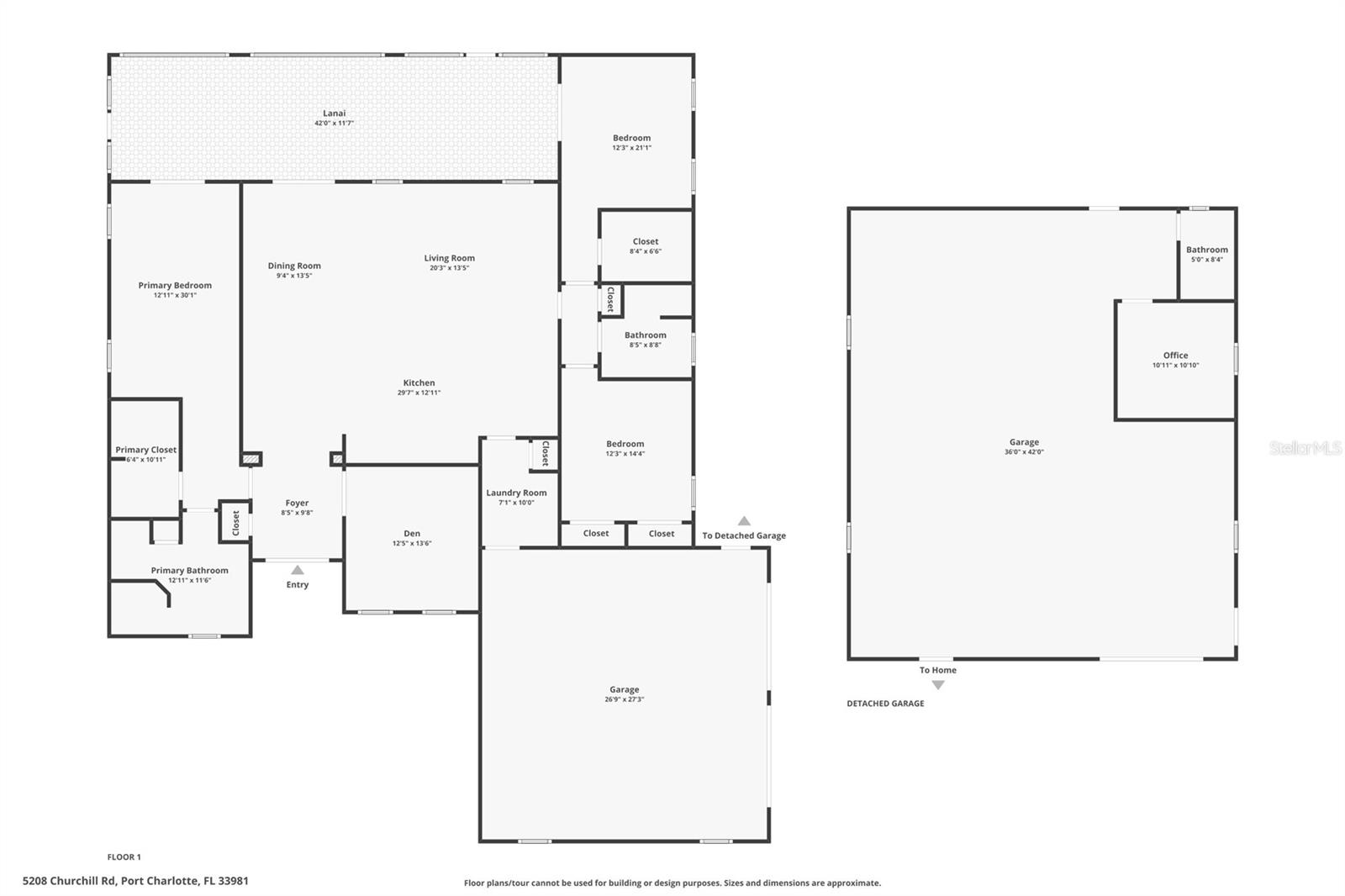
| Rooms | Rooms | |||
|---|---|---|---|---|
| Primary Bedroom: | Primary Bathroom: | |||
| Living Room: | Kitchen: | |||