
|
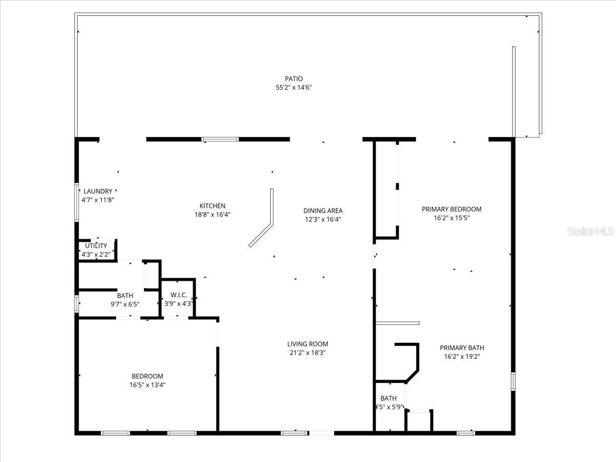
Bedrooms
2
|
Bathrooms
3
|
Living Area
1,855 Sqft
|
Lot Size
15,400 Sqft
|
| Property Features | Property Features | |||
|---|---|---|---|---|
| MLS ID: | MFRC7521086 | Year Built: | 2002 | |
| Appliances: | Dishwasher, Dryer, Electric Water Heater, Microwave, Range, Refrigerator, Washer | Architectural Style: | Key West | |
| Construction Materials: | Stucco, Frame | Cooling: | Central Air | |
| Country: | US | County Or Parish: | Charlotte | |
| Direction Faces: | West | Exterior Features: | Balcony, Lighting, Rain Gutters, Sliding Doors, Storage | |
| Flooring: | Ceramic Tile | Foundation Details: | Slab, Stilt/On Piling | |
| Furnished: | Unfurnished | Heating: | Central, Electric | |
| Laundry Features: | In Kitchen, Inside | Levels: | One | |
| Listing Agreement: | Exclusive Right To Sell | Listing Terms: | Cash, Conventional | |
| Lot Features: | Cleared, In County, Landscaped, Oversized Lot, Street Dead-End, Paved | Occupant Type: | Owner | |
| Other Structures: | Shed(s) | Parking Features: | Boat, Covered, Driveway, Ground Level, Guest, Off Street, Oversized | |
| Patio And Porch Features: | Deck, Patio, Porch | Pets Allowed: | Yes | |
| Property Sub Type: | Single Family Residence | Property Type: | Residential | |
| Road Responsibility: | Public Maintained Road | Road Surface Type: | Paved | |
| Roof: | Metal | Sewer: | Septic Tank | |
| Showing Requirements: | Combination Lock Box, See Remarks, ShowingTime | Special Listing Conditions: | None | |
| Standard Status: | Active | State Or Province: | FL | |
| Utilities: | Cable Available, Cable Connected, Electricity Available, Electricity Connected, Water Connected | View: | Water | |
| Water Source: | Public | Waterfront Features: | Canal Front | |
| Window Features: | Blinds | |||
| Rooms | Rooms | |||
|---|---|---|---|---|
| Balcony/Porch/Lanai: | 55x16 ft | Bedroom 2: | 16x13 ft | |
| Primary Bedroom: | 16x16 ft | Kitchen: | 19x16 ft | |
| Dining Room: | 16x12 ft | Living Room: | 21x18 ft | |