
|
Bedrooms
3
|
Bathrooms
2
|
Living Area
1,855 Sqft
|
Lot Size
15,300 Sqft
|
| Property Features | Property Features | |||
|---|---|---|---|---|
| MLS ID: | MFRC7521098 | Year Built: | 1959 | |
| Appliances: | Built-In Oven, Convection Oven, Cooktop, Dishwasher, Disposal, Electric Water Heater, Microwave, Refrigerator | Architectural Style: | Contemporary | |
| Construction Materials: | Block | Cooling: | Central Air | |
| Country: | US | County Or Parish: | Charlotte | |
| Direction Faces: | West | Exterior Features: | Hurricane Shutters, Lighting, Outdoor Grill, Sliding Doors, Storage | |
| Fencing: | Fenced | Fireplace Features: | Living Room | |
| Flooring: | Ceramic Tile, Luxury Vinyl | Foundation Details: | Slab | |
| Furnished: | Unfurnished | Heating: | Central | |
| Laundry Features: | Inside | Levels: | One | |
| Listing Agreement: | Exclusive Right To Sell | Listing Terms: | Cash, Conventional | |
| Occupant Type: | Owner | Other Equipment: | Irrigation Equipment | |
| Other Structures: | Shed(s) | Parking Features: | Driveway, Off Street | |
| Patio And Porch Features: | Rear Porch, Side Porch | Pool Features: | Gunite | |
| Possession: | Close Of Escrow | Property Sub Type: | Single Family Residence | |
| Property Type: | Residential | Road Surface Type: | Paved | |
| Roof: | Membrane | Sewer: | Public Sewer | |
| Showing Requirements: | Appointment Only | Spa Features: | In Ground | |
| Special Listing Conditions: | None | Standard Status: | Active | |
| State Or Province: | FL | Utilities: | Cable Available, Electricity Connected, Sewer Connected, Water Connected | |
| Vegetation: | Trees/Landscaped | Water Source: | Public | |
| Window Features: | Shades | |||
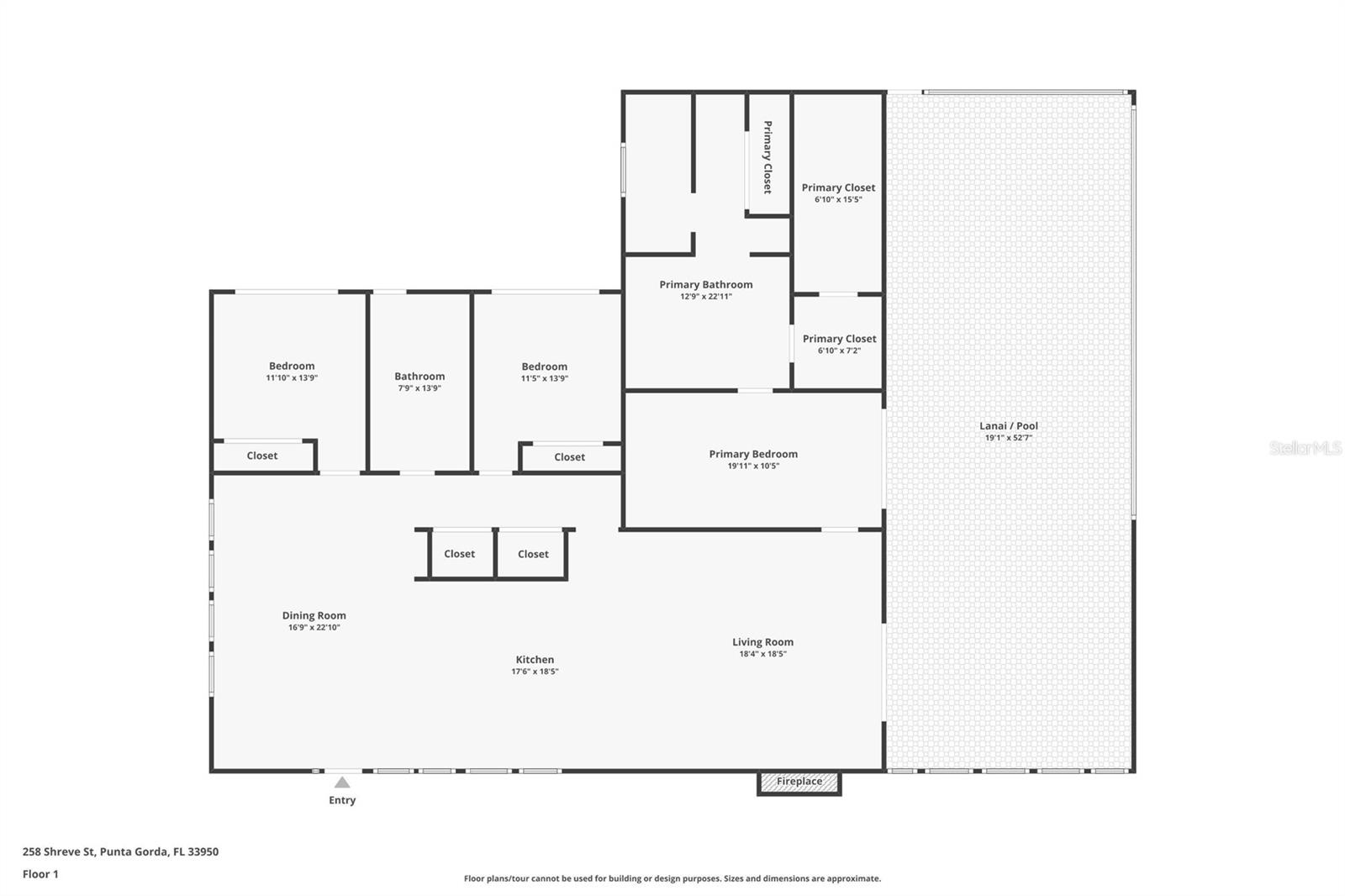
| Rooms | Rooms | |||
|---|---|---|---|---|
| Living Room: | 17x23 ft | Kitchen: | 12x13 ft | |
| Dining Room: | 10x21 ft | Bedroom 1: | 11x11 ft | |
| Bedroom 2: | 11x13 ft | Primary Bathroom: | 7x12 ft | |
| Primary Bedroom: | 10x19 ft | Bathroom 2: | 7x13 ft | |
| Balcony/Porch/Lanai: | 14x17 ft | |||