
|
Bedrooms
3
|
Bathrooms
2
|
Living Area
1,641 Sqft
|
Lot Size
12,404 Sqft
|
| Property Features | Property Features | |||
|---|---|---|---|---|
| MLS ID: | MFRC7521255 | Year Built: | 1965 | |
| Appliances: | Cooktop, Refrigerator | Construction Materials: | Block, Stucco | |
| Cooling: | Central Air | Country: | US | |
| County Or Parish: | Charlotte | Direction Faces: | Southwest | |
| Exterior Features: | Private Mailbox, Rain Gutters, Sliding Doors | Flooring: | Tile | |
| Foundation Details: | Slab | Furnished: | Unfurnished | |
| Heating: | Central, Electric | Laundry Features: | In Garage | |
| Levels: | One | Listing Agreement: | Exclusive Right To Sell | |
| Listing Terms: | Cash, Conventional, FHA, VA Loan | Lot Features: | Corner Lot | |
| Occupant Type: | Vacant | Pets Allowed: | Yes | |
| Pool Features: | Gunite, Heated, In Ground | Possession: | Close Of Escrow | |
| Property Sub Type: | Single Family Residence | Property Type: | Residential | |
| Road Surface Type: | Asphalt, Paved | Roof: | Metal | |
| Sewer: | Public Sewer | Showing Requirements: | Supra Lock Box, ShowingTime | |
| Special Listing Conditions: | None | Standard Status: | Active | |
| State Or Province: | FL | Utilities: | Electricity Connected, Sewer Connected, Water Connected | |
| View: | Water | Water Source: | Public | |
| Waterfront Features: | Canal - Saltwater | |||
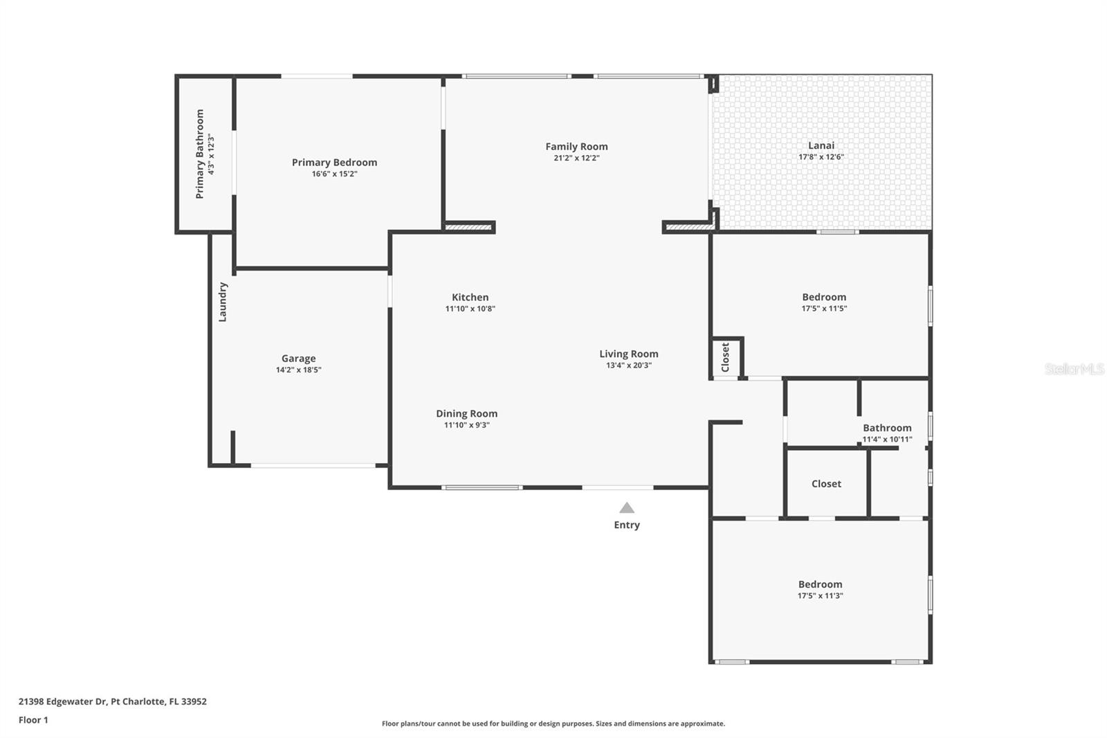
| Rooms | Rooms | |||
|---|---|---|---|---|
| Living Room: | 13.25x20.25 ft | Dining Room: | 11.75x9.25 ft | |
| Kitchen: | 11.75x10.75 ft | Family Room: | 21.25x12.25 ft | |
| Balcony/Porch/Lanai: | 17.75x12.5 ft | Primary Bedroom: | 16.5x15.25 ft | |
| Primary Bathroom: | 4.25x12.25 ft | Bedroom 1: | 17.5x11.25 ft | |
| Bedroom 2: | 17.5x11.25 ft | Bathroom 1: | 11.25x11 ft | |