
|
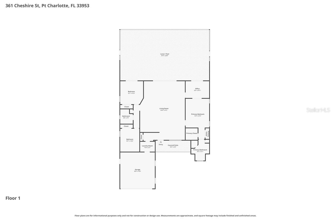
Bedrooms
3
|
Bathrooms
2
|
Living Area
1,778 Sqft
|
Lot Size
20,000 Sqft
|
| Property Features | Property Features | |||
|---|---|---|---|---|
| MLS ID: | MFRC7523197 | Year Built: | 2005 | |
| Appliances: | Dishwasher, Dryer, Gas Water Heater, Microwave, Range, Refrigerator, Washer | Construction Materials: | Brick, Stucco | |
| Cooling: | Central Air | Country: | US | |
| County Or Parish: | Charlotte | Direction Faces: | East | |
| Exterior Features: | Rain Gutters | Flooring: | Hardwood | |
| Foundation Details: | Slab | Furnished: | Negotiable | |
| Heating: | Central | Laundry Features: | Laundry Room | |
| Levels: | One | Listing Agreement: | Exclusive Right To Sell | |
| Listing Terms: | Cash, Conventional, FHA, VA Loan | Lot Features: | In County, Oversized Lot | |
| Occupant Type: | Owner | Other Structures: | Shed(s) | |
| Patio And Porch Features: | Covered, Front Porch | Pool Features: | Gunite, Heated, In Ground | |
| Possession: | Close Of Escrow | Property Sub Type: | Single Family Residence | |
| Property Type: | Residential | Road Surface Type: | Asphalt | |
| Roof: | Shingle | Sewer: | Septic Tank | |
| Showing Requirements: | ShowingTime | Special Listing Conditions: | None | |
| Standard Status: | Active | State Or Province: | FL | |
| Utilities: | Cable Connected, Electricity Connected, Sprinkler Meter, Water Connected | View: | Water | |
| Water Source: | Public | Waterfront Features: | Canal - Brackish | |
| Rooms | Rooms | |||
|---|---|---|---|---|
| Balcony/Porch/Lanai: | Bedroom 1: | 12x12 ft | ||
| Bedroom 2: | 10x12 ft | Kitchen: | ||
| Great Room: | 24x31 ft | Den: | 13x9 ft | |
| Primary Bedroom: | 13x21 ft | |||