
|
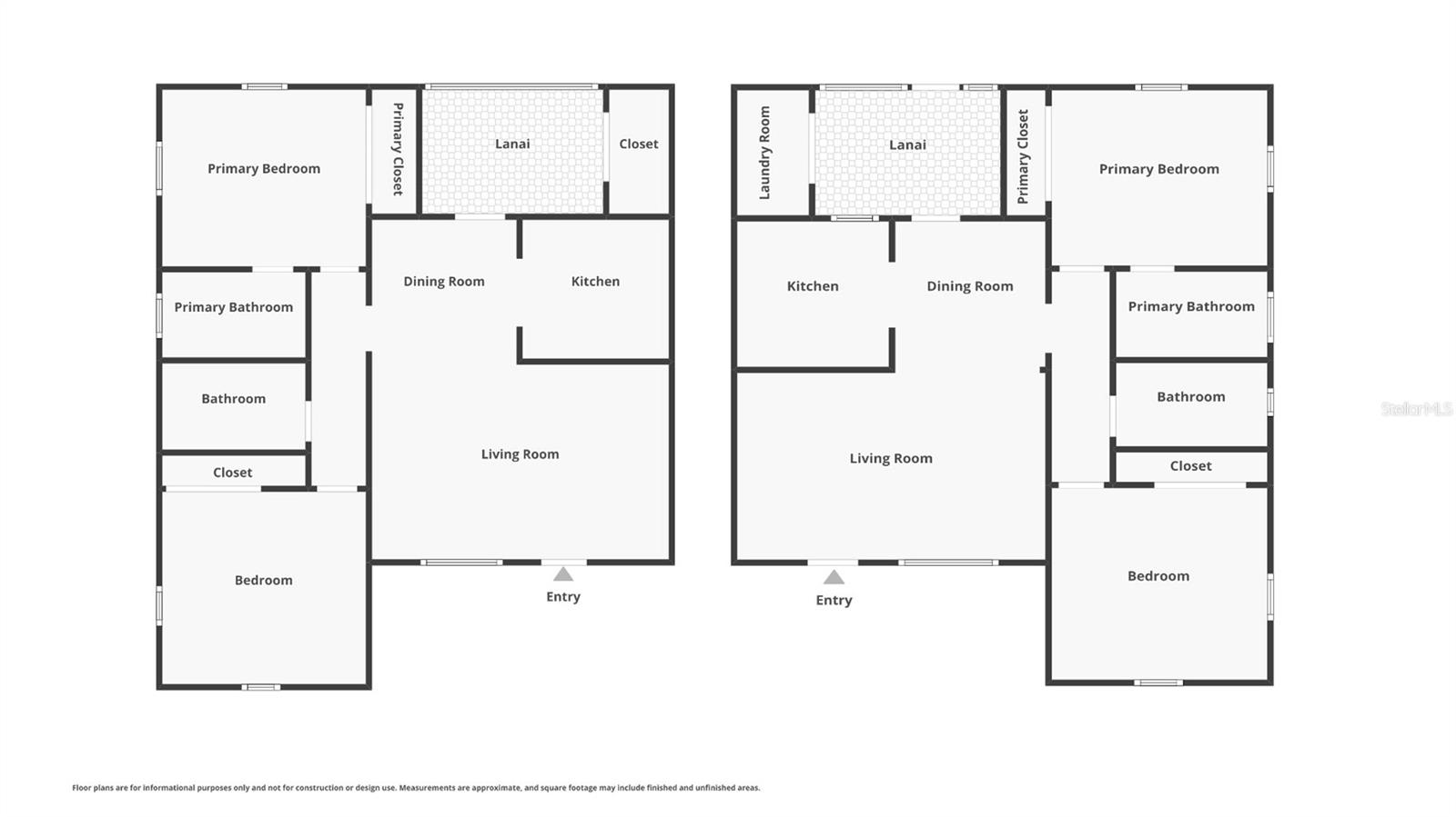
Bedrooms
4
|
Bathrooms
4
|
Living Area
1,901 Sqft
|
Lot Size
9,864 Sqft
|
| Property Features | Property Features | |||
|---|---|---|---|---|
| MLS ID: | MFRC7523209 | Year Built: | 2006 | |
| Appliances: | Dishwasher, Microwave, Range, Refrigerator | Construction Materials: | Block, Stucco | |
| Cooling: | Central Air | Country: | US | |
| County Or Parish: | Charlotte | Exterior Features: | Fence, Private Yard, Rain Gutters, Storage | |
| Flooring: | Laminate, Tile | Foundation Details: | Slab | |
| Heating: | Central | Laundry Features: | Outside, Washer Hookup | |
| Levels: | One | Listing Agreement: | Exclusive Right To Sell | |
| Listing Terms: | Cash, Conventional, FHA, VA Loan | Occupant Type: | Tenant | |
| Other Equipment: | Private Yard | Parking Features: | Driveway, Off Street | |
| Patio And Porch Features: | Front Porch, Rear Porch, Screened | Property Condition: | Completed | |
| Property Sub Type: | Duplex | Property Type: | Residential Income | |
| Road Responsibility: | Public Maintained Road | Road Surface Type: | Asphalt | |
| Roof: | Shingle | Sewer: | Septic Tank, Other | |
| Showing Requirements: | 24 Hour Notice, Appointment Only, Call Before Showing | Special Listing Conditions: | None | |
| Standard Status: | Active | State Or Province: | FL | |
| Tenant Pays: | Electricity, Sewer, Water | Utilities: | BB/HS Internet Available, Cable Available, Electricity Connected, Sewer Available, Water Connected | |
| Water Source: | Public | |||