
|
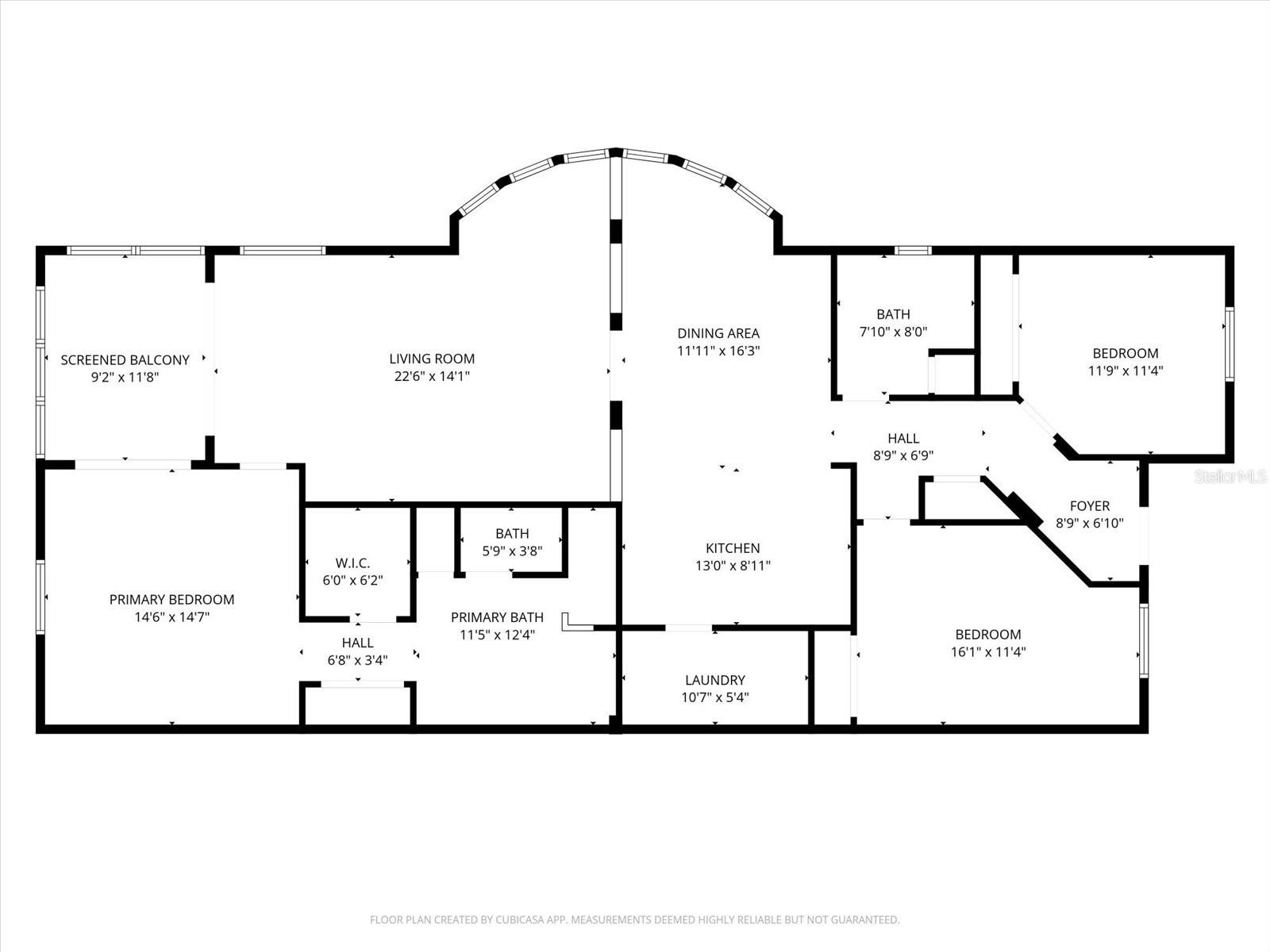
Bedrooms
3
|
Bathrooms
2
|
Living Area
1,838 Sqft
|
Lot Size
51,983 Sqft
|
| Property Features | Property Features | |||
|---|---|---|---|---|
| MLS ID: | MFRC7524756 | Year Built: | 2007 | |
| Appliances: | Dishwasher, Disposal, Dryer, Electric Water Heater, Microwave, Washer | Association Fee Includes: | Pool, Electricity, Escrow Reserves Fund, Insurance, Maintenance Structure, Maintenance, Management, Pest Control, Sewer, Trash, Water | |
| Community Features: | Golf Carts OK, Pool, Sidewalks, Street Lights | Construction Materials: | Block, Concrete, Stucco | |
| Cooling: | Central Air | Country: | US | |
| County Or Parish: | Charlotte | Direction Faces: | East | |
| Exterior Features: | Lighting, Outdoor Grill, Outdoor Kitchen, Sliding Doors | Fencing: | Fenced | |
| Flooring: | Ceramic Tile, Luxury Vinyl | Foundation Details: | Block, Concrete Perimeter, Pillar/Post/Pier, Slab | |
| Furnished: | Negotiable | Green Energy Efficient: | Appliances, Construction, Doors, Exposure/Shade, HVAC, Insulation, Lighting, Thermostat, Water Heater, Windows | |
| Green Indoor Air Quality: | Air Filters MERV 10+, HVAC Filter MERV 8+, No Smoking-Interior Buildg | Heating: | Central, Electric | |
| Laundry Features: | Electric Dryer Hookup, Inside, Laundry Closet, Laundry Room, Same Floor As Condo Unit, Washer Hookup | Levels: | One | |
| Listing Agreement: | Exclusive Right To Sell | Listing Terms: | Cash, Conventional, FHA, VA Loan | |
| Occupant Type: | Vacant | Other Equipment: | Irrigation Equipment | |
| Parking Features: | Assigned, Covered, Deeded, Garage Door Opener, Ground Level, Guest, Reserved, Basement | Patio And Porch Features: | Covered, Enclosed, Screened | |
| Pets Allowed: | Number Limit, Size Limit, Yes | Pool Features: | Gunite, Heated, In Ground, Lighting, Outside Bath Access | |
| Possession: | Close Of Escrow | Property Sub Type: | Condominium | |
| Property Type: | Residential | Road Responsibility: | Public Maintained Road | |
| Road Surface Type: | Asphalt | Roof: | Tile | |
| Security Features: | Fire Alarm, Fire Sprinkler System, Secured Garage/Parking, Security Lights, Smoke Detector(s) | Sewer: | Public Sewer | |
| Showing Requirements: | Supra Lock Box, Appointment Only, ShowingTime | Spa Features: | Heated, In Ground | |
| Special Listing Conditions: | None | Standard Status: | Active | |
| State Or Province: | FL | Utilities: | BB/HS Internet Available, Cable Connected, Electricity Connected, Fire Hydrant, Phone Available, Public, Sewer Connected, Water Connected | |
| View: | Park/Greenbelt, Water | Water Source: | Public | |
| Window Features: | Blinds, Insulated Windows | |||
| Rooms | Rooms | |||
|---|---|---|---|---|
| Living Room: | Kitchen: | |||
| Primary Bedroom: | ||||