
|
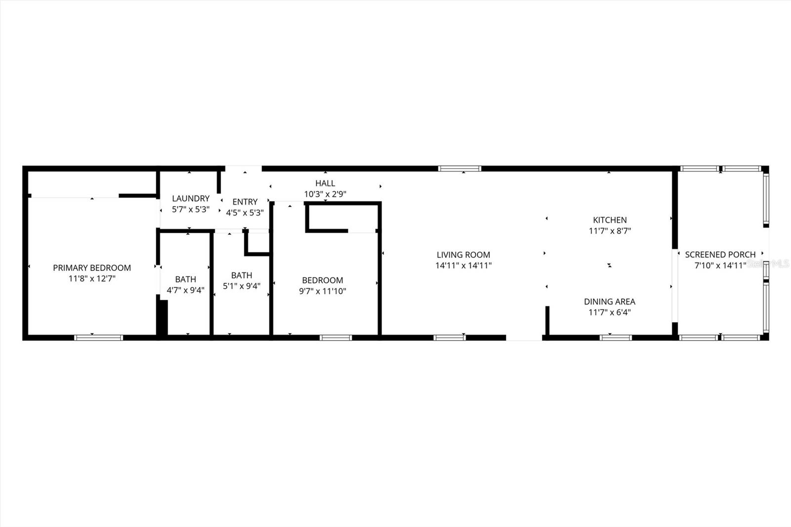
Bedrooms
2
|
Bathrooms
2
|
Living Area
960 Sqft
|
Lot Size
6,130 Sqft
|
| Property Features | Property Features | |||
|---|---|---|---|---|
| MLS ID: | MFRC7525238 | Year Built: | 2005 | |
| Appliances: | Dishwasher, Disposal, Dryer, Electric Water Heater, Ice Maker, Microwave, Range, Refrigerator, Washer | Association Amenities: | Clubhouse, Laundry, Pool, Recreation Facilities, Shuffleboard Court, Storage | |
| Body Type: | Single Wide | Community Features: | Association Recreation - Owned, Clubhouse, Golf Carts OK, Pool, Street Lights | |
| Cooling: | Central Air | Country: | US | |
| County Or Parish: | Charlotte | Exterior Features: | Hurricane Shutters | |
| Flooring: | Luxury Vinyl | Furnished: | Furnished | |
| Heating: | Central, Electric | Laundry Features: | Inside | |
| Lease Term: | Month To Month | Levels: | One | |
| Listing Agreement: | Exclusive Right To Lease | Lot Features: | Corner Lot, Cul-De-Sac, Oversized Lot | |
| Occupant Type: | Vacant | Other Structures: | Shed(s), Storage | |
| Owner Pays: | Common Area Maintenance, Electricity, Grounds Care, Internet, Management, Property Insurance, Recreational, Sewer, Taxes, Trash Collection, Water | Parking Features: | Covered | |
| Patio And Porch Features: | Front Porch, Screened | Pets Allowed: | Breed Restrictions, Cats OK, Dogs OK, Number Limit, Pet Deposit | |
| Possession: | Rental Agreement | Property Sub Type: | Manufactured Home | |
| Property Type: | Residential Lease | Road Responsibility: | Private Maintained Road | |
| Road Surface Type: | Asphalt | Sewer: | Private Sewer | |
| Showing Requirements: | Supra Lock Box | Standard Status: | Active | |
| State Or Province: | FL | Tenant Pays: | Cleaning Fee | |
| Utilities: | BB/HS Internet Available, Cable Available, Electricity Connected, Sewer Connected, Water Connected | Water Source: | Public | |
| Window Features: | Blinds, Double Pane Windows | |||
| Rooms | Rooms | |||
|---|---|---|---|---|
| Kitchen: | 11.7x8.7 ft | Living Room: | 14.11x14.11 ft | |
| Balcony/Porch/Lanai: | 7.1x14.11 ft | Primary Bedroom: | 11.8x12.7 ft | |
| Primary Bathroom: | 4.7x9.4 ft | Laundry: | 5.7x5.3 ft | |