
|
Bedrooms
3
|
Bathrooms
3
|
Living Area
2,044 Sqft
|
Lot Size
1,251 Sqft
|
| Property Features | Property Features | |||
|---|---|---|---|---|
| MLS ID: | MFRD6138685 | Year Built: | 2006 | |
| Appliances: | Dishwasher, Microwave, Range, Refrigerator | Association Fee Includes: | Common Area Taxes, Pool, Escrow Reserves Fund, Insurance, Maintenance Grounds | |
| Community Features: | Pool | Construction Materials: | Block, Stucco | |
| Cooling: | Central Air | Country: | US | |
| County Or Parish: | Charlotte | Direction Faces: | West | |
| Exterior Features: | Sliding Doors | Flooring: | Carpet | |
| Foundation Details: | Slab | Furnished: | Unfurnished | |
| Heating: | Heat Pump | Laundry Features: | Laundry Room | |
| Levels: | Three Or More | Listing Agreement: | Exclusive Agency | |
| Listing Terms: | Cash, Conventional, FHA, VA Loan | Lot Features: | Paved | |
| Occupant Type: | Vacant | Parking Features: | Garage Door Opener | |
| Patio And Porch Features: | Rear Porch, Screened | Pets Allowed: | Yes | |
| Property Condition: | Completed | Property Sub Type: | Townhouse | |
| Property Type: | Residential | Road Responsibility: | Public Maintained Road | |
| Road Surface Type: | Asphalt | Roof: | Shingle | |
| Sewer: | Public Sewer | Showing Requirements: | ShowingTime | |
| Special Listing Conditions: | None | Standard Status: | Active | |
| State Or Province: | FL | Utilities: | BB/HS Internet Available, Electricity Connected, Phone Available | |
| View: | Park/Greenbelt | Water Source: | Public | |
| Rooms | Rooms | |||
|---|---|---|---|---|
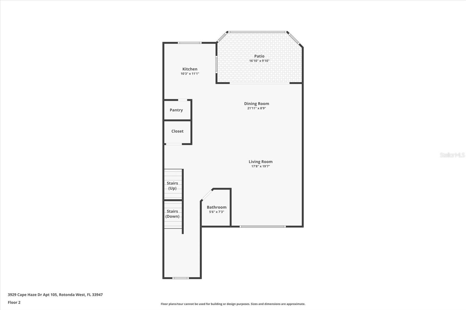
| Kitchen: | 10x10 ft | Living Room: | 17x15 ft | |
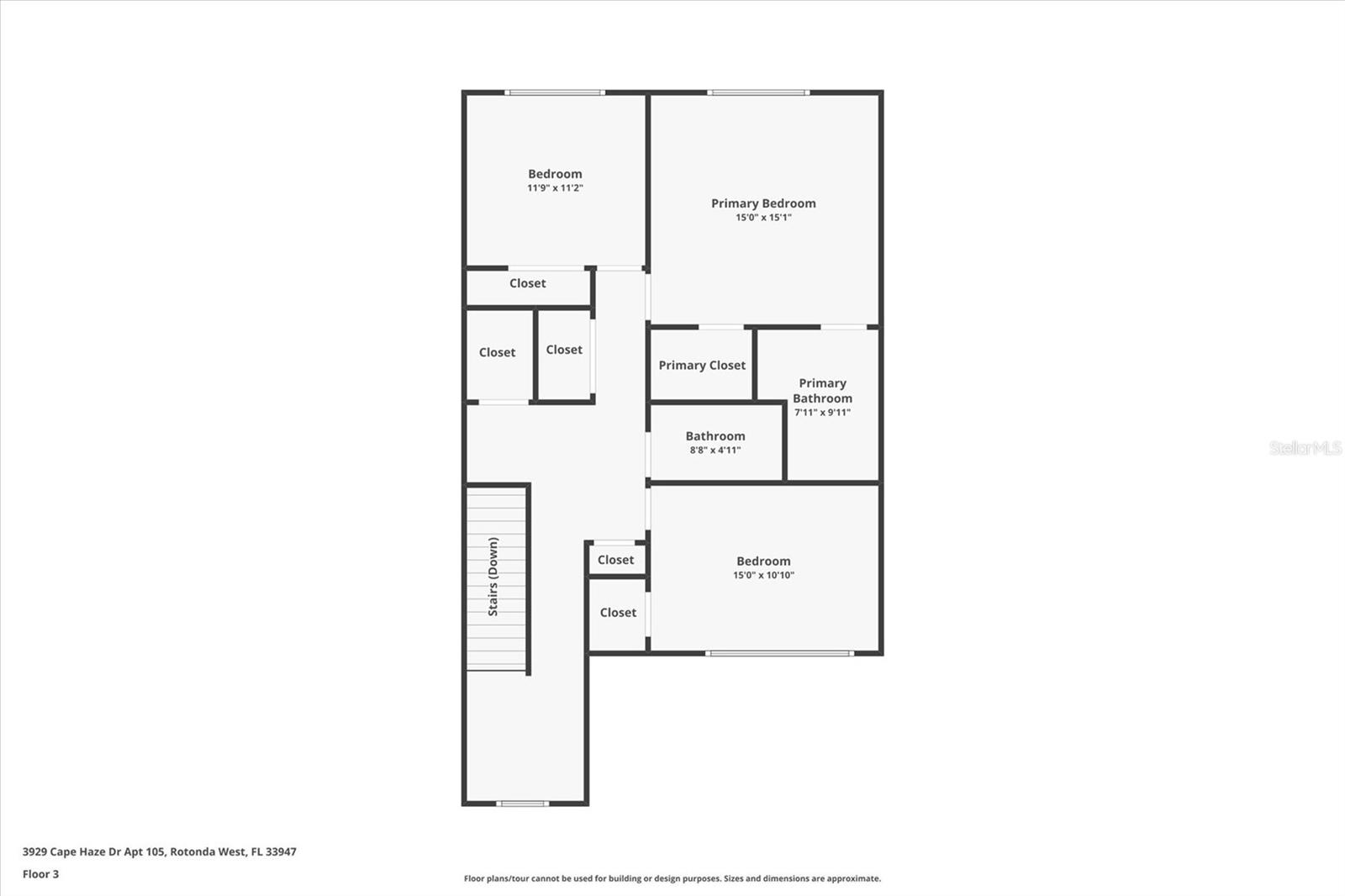
| Primary Bedroom: | 15x16 ft | Bedroom 2: | 12x12 ft | |
| Bedroom 3: | 10x11 ft | |||