
|
Bedrooms
3
|
Bathrooms
3
|
Living Area
2,066 Sqft
|
Lot Size
8,554 Sqft
|
| Property Features | Property Features | |||
|---|---|---|---|---|
| MLS ID: | MFRD6139272 | Year Built: | 2020 | |
| Appliances: | Dishwasher, Disposal, Dryer, Exhaust Fan, Gas Water Heater, Kitchen Reverse Osmosis System, Microwave, Range, Refrigerator, Washer, Water Softener | Association Amenities: | Clubhouse, Fence Restrictions, Fitness Center, Gated, Golf Course, Maintenance, Optional Additional Fees, Pickleball Court(s), Pool, Spa/Hot Tub, Tennis Court(s) | |
| Association Fee Includes: | Maintenance Grounds, Management, Private Road | Community Features: | Clubhouse, Deed Restrictions, Dog Park, Fitness Center, Gated Community - Guard, Golf Carts OK, Golf, Irrigation-Reclaimed Water, Pool, Restaurant, Sidewalks, Tennis Court(s) | |
| Construction Materials: | Block, Stucco | Cooling: | Central Air | |
| Country: | US | County Or Parish: | Sarasota | |
| Direction Faces: | North | Exterior Features: | Sidewalk, Sliding Doors | |
| Flooring: | Ceramic Tile | Foundation Details: | Slab | |
| Heating: | Central | Laundry Features: | Gas Dryer Hookup, Inside, Laundry Room, Washer Hookup | |
| Levels: | One | Listing Agreement: | Exclusive Right To Sell | |
| Listing Terms: | Cash, Conventional, FHA, VA Loan | Occupant Type: | Owner | |
| Other Equipment: | Irrigation Equipment | Pets Allowed: | Yes | |
| Pool Features: | Gunite, Heated, In Ground, Salt Water, Screen Enclosure | Possession: | Close Of Escrow | |
| Property Sub Type: | Single Family Residence | Property Type: | Residential | |
| Road Surface Type: | Paved | Roof: | Tile | |
| Sewer: | Public Sewer | Showing Requirements: | Appointment Only, Gate Code Required, Lock Box Electronic, ShowingTime | |
| Special Listing Conditions: | None | Standard Status: | Active | |
| State Or Province: | FL | Utilities: | BB/HS Internet Available, Electricity Connected, Natural Gas Connected, Phone Available, Public, Sewer Connected, Sprinkler Recycled, Underground Utilities, Water Connected | |
| Water Source: | Public | |||
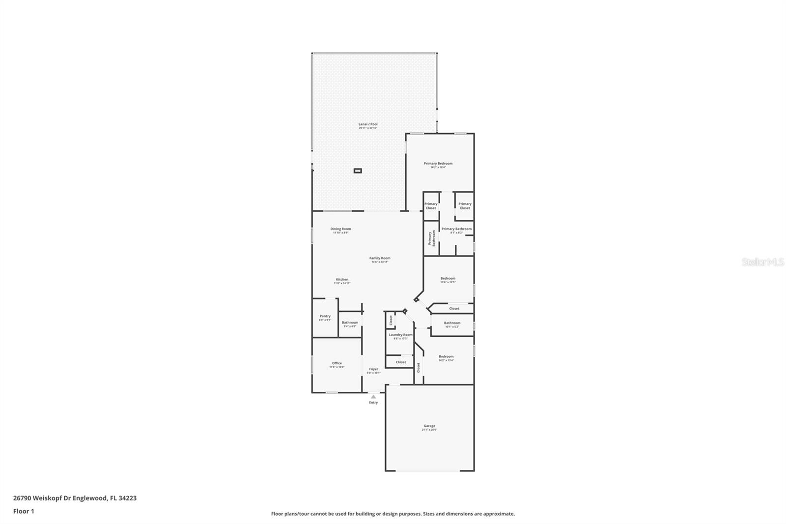
| Rooms | Rooms | |||
|---|---|---|---|---|
| Den: | 11x12 ft | Primary Bedroom: | 13x16 ft | |
| Primary Bathroom: | 10x12 ft | Bedroom 2: | 10x12 ft | |
| Bathroom 2: | 7x9 ft | Bedroom 3: | 11x11 ft | |
| Bathroom 3: | 6x6 ft | Great Room: | 14x23 ft | |
| Dining Room: | 10x11 ft | Laundry: | 7x10 ft | |
| Kitchen: | 11x14 ft | |||