
|
Bedrooms
2
|
Bathrooms
2
|
Living Area
1,369 Sqft
|
Lot Size
10,000 Sqft
|
| Property Features | Property Features | |||
|---|---|---|---|---|
| MLS ID: | MFRD6140252 | Year Built: | 1989 | |
| Appliances: | Dishwasher, Electric Water Heater, Kitchen Reverse Osmosis System, Microwave, Range, Refrigerator | Construction Materials: | Block, Stucco | |
| Cooling: | Central Air | Country: | US | |
| Direction Faces: | Northwest | Exterior Features: | Sliding Doors | |
| Fencing: | Vinyl | Flooring: | Ceramic Tile | |
| Foundation Details: | Slab | Heating: | Central, Electric | |
| Laundry Features: | Electric Dryer Hookup, Inside, Laundry Room, Washer Hookup | Levels: | One | |
| Listing Agreement: | Exclusive Right To Sell | Listing Terms: | Cash, Conventional, FHA, VA Loan | |
| Occupant Type: | Owner | Parking Features: | Driveway | |
| Patio And Porch Features: | Covered, Rear Porch, Screened | Pool Features: | Gunite, Vinyl | |
| Property Sub Type: | Single Family Residence | Property Type: | Residential | |
| Road Surface Type: | Asphalt, Paved | Roof: | Shingle | |
| Sewer: | Septic Tank | Showing Requirements: | Supra Lock Box, ShowingTime | |
| Special Listing Conditions: | None | Standard Status: | Active | |
| State Or Province: | FL | Utilities: | BB/HS Internet Available, Cable Available, Electricity Connected, Phone Available, Water Connected | |
| Water Source: | Public | |||
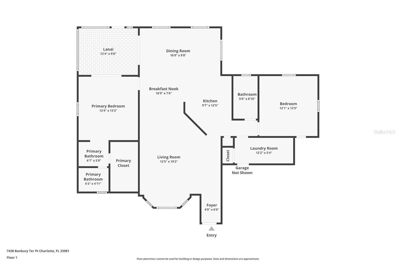
| Rooms | Rooms | |||
|---|---|---|---|---|
| Living Room: | 16x16 ft | Kitchen: | 13x10 ft | |
| Primary Bedroom: | 13x12 ft | Primary Bathroom: | ||
| Bedroom 2: | 12x12 ft | Bathroom 2: | ||
| Laundry: | 12x5 ft | |||