255 ROTONDA BLVD W #A and B, ROTONDA WEST, FL, 33947
$610,000
Residential Income
Bedrooms
4
Bathrooms
4
Living Area
2,318 Sqft
Lot Size
31,999 Sqft
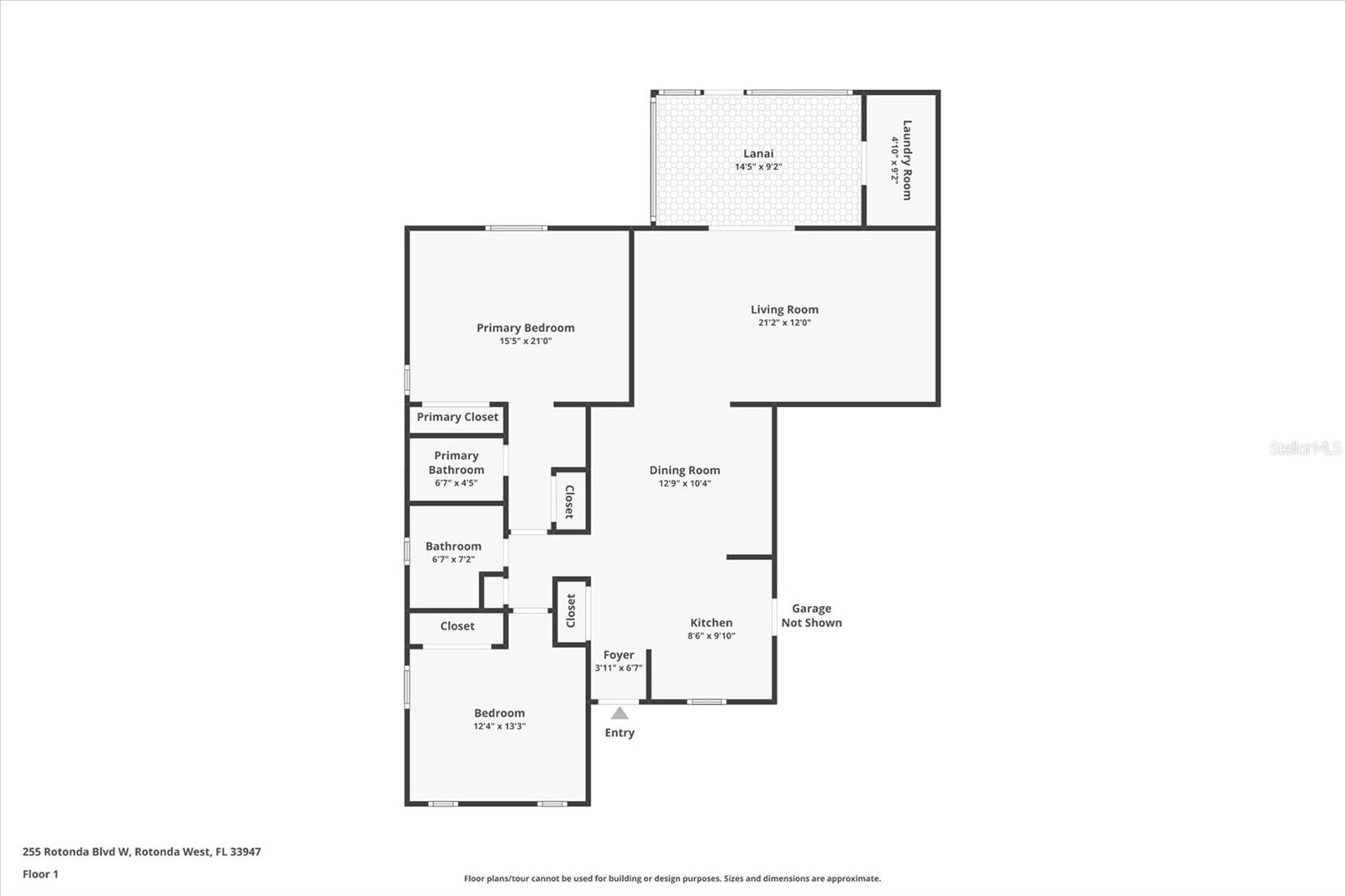
Completely modernized Income Producing Duplex (Units A & B )on ¾ acre property! Zoned to add Two MORE DUPLEXES! Survey available... Design and build a mini-complex in a highly sought area on Rotonda BLVD WEST. Convenient location and easy exit out to Placida Rd on the West side of Englewood. Short drive to Boca Grande or Manasota Key / Englewood Beach, fishing, dining, tiki-bars, live entertainment, public boat ramps, the Freedom Boat Club, a variety of golf courses, the Cape Haze Bike Trail and more. Straight from their driveway, tenants can ride their bicycles or walk the trail. City water & sewer! Low annual HOA fees! 2022 Roof with a complimentary 2022 Wind Mitigation Report. Both units have been completely updated with new kitchens and bathrooms / granite counter tops, new appliances, tile floors and freshly painted. Each unit has an open floorplan and backyard 14 x 6 screened lanai facing the greenbelt with a 6 x 6 outdoor laundry space including the hot water heater dividing each porch. The one car garages are built between the units providing a quiet buffer between the living spaces. Vacation rentals are popular in the Rotonda community. Get creative and design a seasonal getaway destination in Paradise. This property presents an enticing income investment in a prime location. Call for a private showing and don’t miss a chance to capitalize on a unique opportunity!
Property Details
Property Features Property Features
MLS ID: MFRD6142059 Year Built: 1987
Appliances: Dishwasher, Dryer, Range, Refrigerator, Washer Construction Materials: Block, Stucco
Cooling: Central Air Country: US
County Or Parish: Charlotte Exterior Features: Lighting, Sliding Doors
Flooring: Ceramic Tile Foundation Details: Slab
Furnished: Unfurnished Heating: Central
Laundry Features: Outside Listing Agreement: Exclusive Right To Sell
Listing Terms: Cash, Conventional Lot Features: Flood Insurance Required, In County, Paved
Pets Allowed: Cats OK, Dogs OK Property Sub Type: Duplex
Property Type: Residential Income Road Surface Type: Paved
Roof: Shingle Sewer: Public Sewer
Showing Requirements: 24 Hour Notice, Appointment Only, Call Before Showing, Listing Agent Must Accompany, Lock Box Electronic, See Remarks, ShowingTime Special Listing Conditions: None
Standard Status: Active State Or Province: FL
Utilities: Cable Available, Electricity Connected, Public, Sewer Connected, Water Connected Water Source: Public
We love to hear from you