
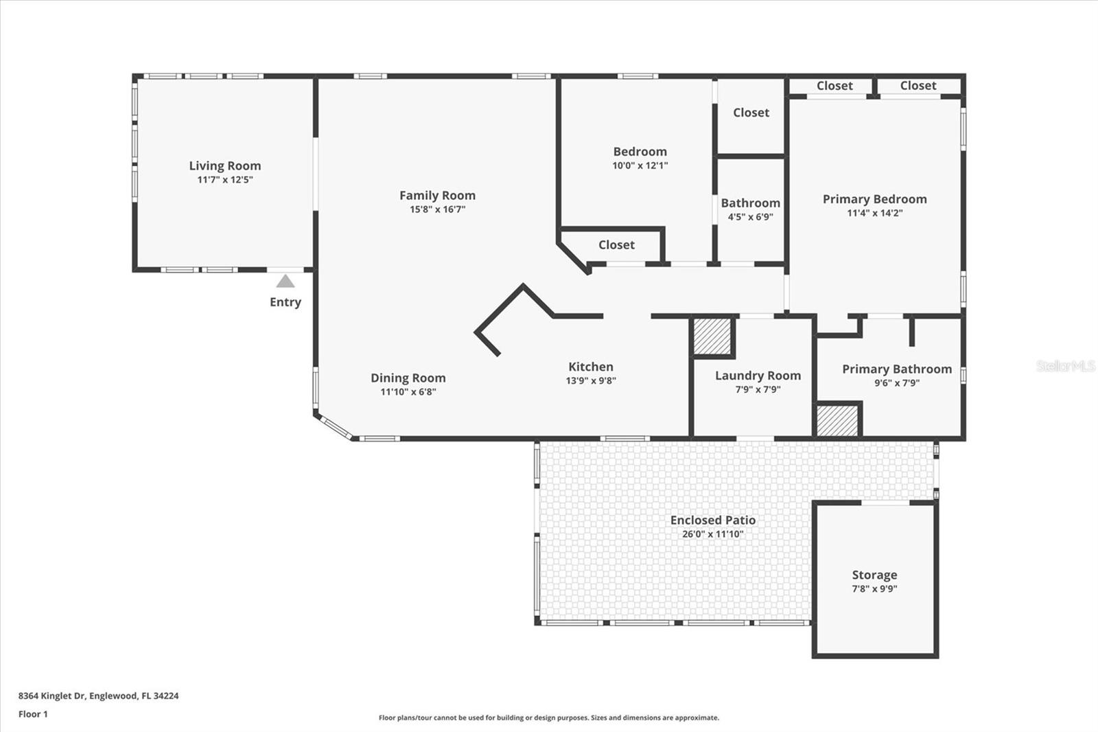
| Bedrooms 2 | Bathrooms 2 | Living Area 1,312 Sqft | Lot Size 8,190 Sqft | 
| Property Features | Property Features | |||
|---|---|---|---|---|
| MLS ID: | MFRD6144488 | Year Built: | 1996 | |
| Appliances: | Dishwasher, Dryer, Microwave, Range, Refrigerator, Washer | Association Amenities: | Clubhouse, Pickleball Court(s), Pool, Spa/Hot Tub, Tennis Court(s) | |
| Body Type: | Double Wide | Community Features: | Clubhouse, Deed Restrictions, Golf Carts OK, Pool, Tennis Court(s) | |
| Construction Materials: | Vinyl Siding, Frame | Cooling: | Central Air | |
| Country: | US | County Or Parish: | Charlotte | |
| Direction Faces: | South | Exterior Features: | Awning(s), French Doors, Other | |
| Flooring: | Laminate, Tile | Foundation Details: | Crawlspace | |
| Heating: | Electric | Laundry Features: | Inside, Laundry Room | |
| Levels: | One | Listing Agreement: | Exclusive Right To Sell | |
| Listing Terms: | Cash, Conventional, VA Loan | Lot Features: | Landscaped | |
| Occupant Type: | Owner | Other Equipment: | Irrigation Equipment | |
| Patio And Porch Features: | Enclosed | Pets Allowed: | Breed Restrictions | |
| Property Condition: | Completed | Property Sub Type: | Manufactured Home | |
| Property Type: | Residential | Road Surface Type: | Paved | |
| Roof: | Metal | Sewer: | Public Sewer | |
| Showing Requirements: | Supra Lock Box, Appointment Only, Lock Box Electronic, ShowingTime | Special Listing Conditions: | None | |
| Standard Status: | Active | State Or Province: | FL | |
| Utilities: | Electricity Connected, Water Connected | Vegetation: | Mature Landscaping | |
| View: | Trees/Woods | Water Source: | Public | |
| Rooms | Rooms | |||
|---|---|---|---|---|
| Living Room: | 16x13 ft | Dining Room: | 9x13 ft | |
| Primary Bedroom: | 11.5x14 ft | Bedroom 2: | 10x11 ft | |
| Kitchen: | 15x7 ft | Florida Room: | 16x13 ft | |
| Balcony/Porch/Lanai: | ||||