
|
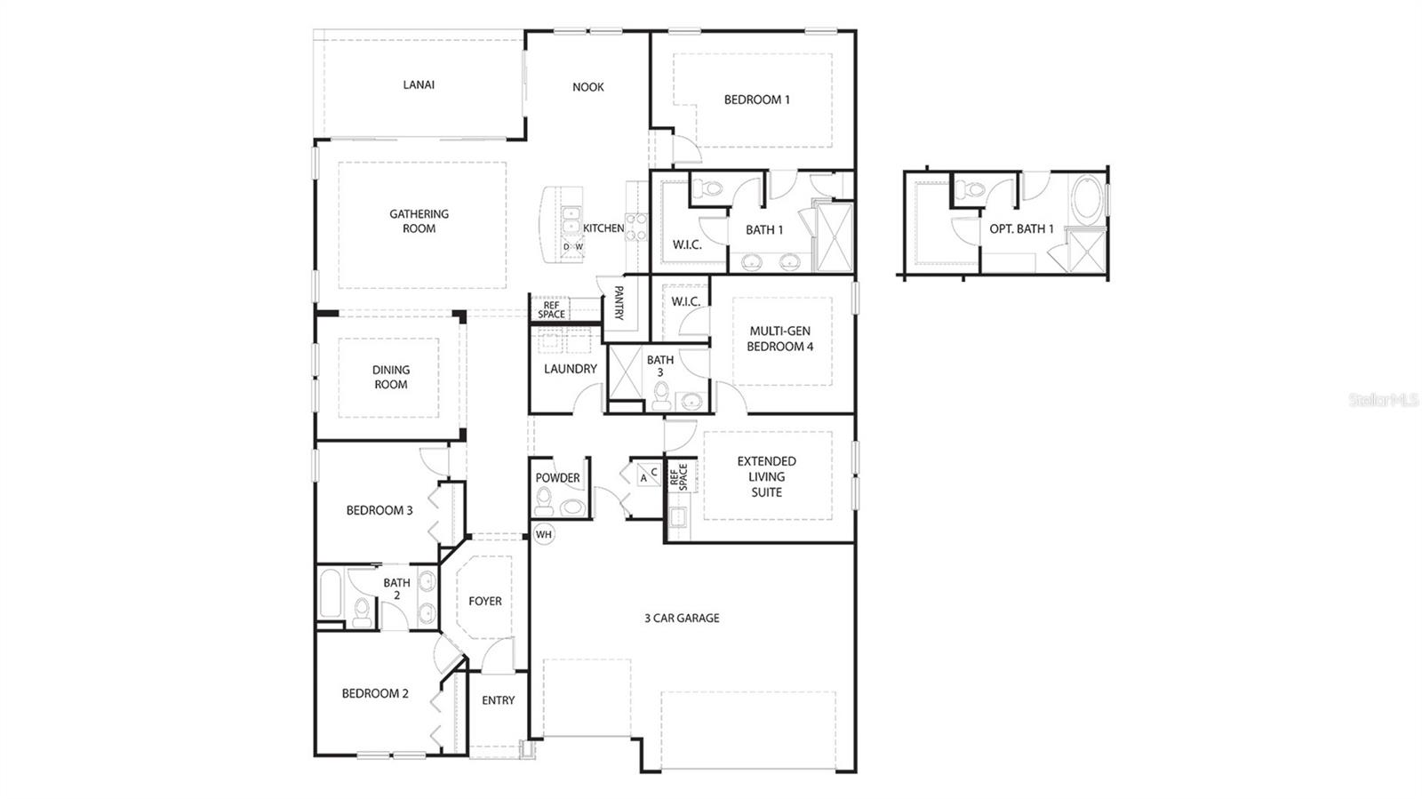
Bedrooms
4
|
Bathrooms
4
|
Living Area
2,498 Sqft
|
Lot Size
6,000 Sqft
|
| Property Features | Property Features | |||
|---|---|---|---|---|
| MLS ID: | MFRFC304257 | Year Built: | 2023 | |
| Appliances: | Dishwasher, Disposal, Electric Water Heater, Microwave, Range | Association Amenities: | Clubhouse, Fitness Center, Playground, Pool | |
| Construction Materials: | Frame | Cooling: | Central Air | |
| Country: | US | County Or Parish: | Flagler | |
| Direction Faces: | East | Flooring: | Carpet, Tile, Wood | |
| Foundation Details: | Slab | Heating: | Electric | |
| Laundry Features: | Inside, Laundry Room | Levels: | One | |
| Listing Agreement: | Exclusive Right To Sell | Listing Terms: | Cash, Conventional, FHA, VA Loan | |
| Occupant Type: | Vacant | Other Equipment: | Irrigation Equipment | |
| Pets Allowed: | Yes | Possession: | Close Of Escrow | |
| Property Condition: | Under Construction | Property Sub Type: | Single Family Residence | |
| Property Type: | Residential | Road Surface Type: | Asphalt | |
| Roof: | Shingle | Sewer: | Public Sewer | |
| Showing Requirements: | See Remarks | Special Listing Conditions: | None | |
| Standard Status: | Active | State Or Province: | FL | |
| Utilities: | Public | Water Source: | None | |
| Rooms | Rooms | |||
|---|---|---|---|---|
| Great Room: | 17x30 ft | Kitchen: | 15x13 ft | |
| Primary Bedroom: | 16x14 ft | |||