
|
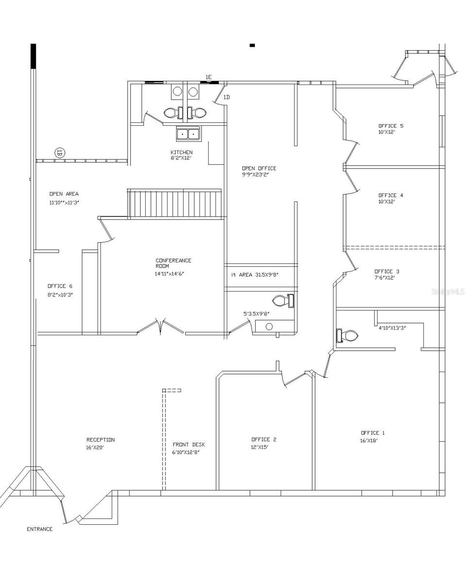
Living Area
2,662 Sqft
|
Lot Size
33,106 Sqft
|
| Property Features | Property Features | |||
|---|---|---|---|---|
| MLS ID: | MFRFC307392 | Year Built: | 1988 | |
| Accessibility Features: | Accessible Entrance, Accessible Kitchen | Appliances: | Refrigerator | |
| Building Features: | Bathrooms, Extra Storage | Construction Materials: | Brick | |
| Cooling: | Central Air, Zoned | Country: | US | |
| County Or Parish: | Flagler | Direction Faces: | Northwest | |
| Electric: | 200+ Amp Service, Three Phase | Flooring: | Carpet, Vinyl | |
| Foundation Details: | Slab | Lease Term: | Three to Five Years | |
| Levels: | One | Listing Agreement: | Exclusive Right To Lease | |
| Lot Features: | Corner Lot, Landscaped, Shopping Center | Occupant Type: | Vacant | |
| Owner Pays: | Grounds Care, Taxes, Trash Collection | Parking Features: | Parking Spaces - 6 to 12 | |
| Property Condition: | Completed | Property Sub Type: | Office | |
| Property Type: | Commercial Lease | Road Frontage Type: | Business District, City Street, Main Throrughfare, Turn Lanes | |
| Road Responsibility: | Public Maintained Road | Road Surface Type: | Asphalt, Paved | |
| Roof: | Shingle | Sewer: | Public Sewer | |
| Showing Requirements: | Sentri Lock Box, Call Before Showing, Call Listing Agent, Combination Lock Box, Listing Agent Must Accompany | Standard Status: | Active | |
| State Or Province: | FL | Tenant Pays: | Electricity, Insurance, Water | |
| Vegetation: | Mature Landscaping | Water Source: | Public | |