
|
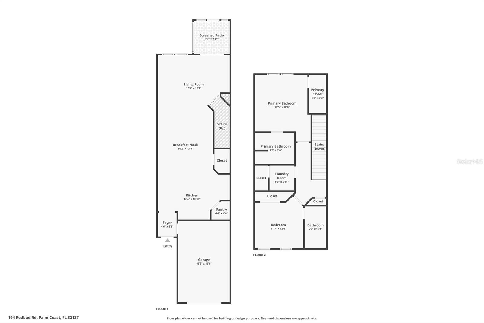
Bedrooms
2
|
Bathrooms
3
|
Living Area
1,443 Sqft
|
Lot Size
2,662 Sqft
|
| Property Features | Property Features | |||
|---|---|---|---|---|
| MLS ID: | MFRFC308614 | Year Built: | 2023 | |
| Appliances: | Dishwasher, Disposal, Dryer, Microwave, Range, Refrigerator, Washer, Water Softener | Architectural Style: | Traditional | |
| Association Amenities: | Gated | Association Fee Includes: | Maintenance Grounds | |
| Community Features: | Playground | Construction Materials: | HardiPlank Type, Frame | |
| Cooling: | Central Air | Country: | US | |
| County Or Parish: | Flagler | Direction Faces: | Southeast | |
| Exterior Features: | Rain Gutters | Flooring: | Carpet, Tile | |
| Foundation Details: | Slab | Heating: | Central, Electric | |
| Laundry Features: | Inside | Levels: | Two | |
| Listing Agreement: | Exclusive Right To Sell | Listing Terms: | Cash, Conventional, FHA, VA Loan | |
| Lot Features: | Irregular Lot | Occupant Type: | Owner | |
| Patio And Porch Features: | Covered, Patio, Screened | Pets Allowed: | Yes | |
| Possession: | Close Of Escrow | Property Sub Type: | Townhouse | |
| Property Type: | Residential | Road Surface Type: | Asphalt | |
| Roof: | Shingle | Security Features: | Gated Community | |
| Sewer: | Public Sewer | Showing Requirements: | Appointment Only, ShowingTime | |
| Special Listing Conditions: | None | Standard Status: | Active | |
| State Or Province: | FL | Utilities: | Cable Available, Electricity Connected, Sewer Connected, Water Connected | |
| View: | Water | Water Source: | Public | |
| Waterfront Features: | Pond | |||
| Rooms | Rooms | |||
|---|---|---|---|---|
| Primary Bedroom: | Kitchen: | |||
| Living Room: | ||||