
|
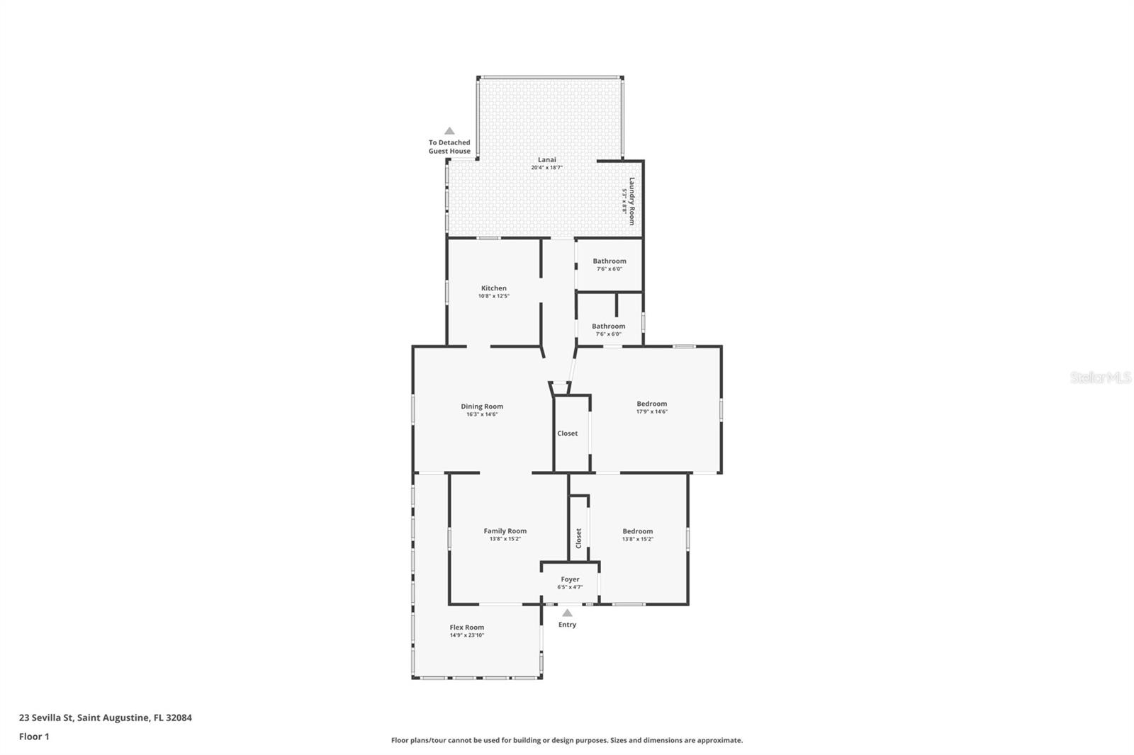
Bedrooms
2
|
Bathrooms
2
|
Living Area
1,541 Sqft
|
Lot Size
9,148 Sqft
|
| Property Features | Property Features | |||
|---|---|---|---|---|
| MLS ID: | MFRFC308619 | Year Built: | 1918 | |
| Appliances: | Dishwasher, Dryer, Electric Water Heater, Microwave, Refrigerator, Washer | Architectural Style: | Historic | |
| Construction Materials: | Frame | Cooling: | Central Air | |
| Country: | US | County Or Parish: | St Johns | |
| Direction Faces: | West | Exterior Features: | Other | |
| Fireplace Features: | Gas | Flooring: | Wood | |
| Foundation Details: | Crawlspace | Heating: | Central, Electric | |
| Laundry Features: | Washer Hookup | Levels: | One | |
| Listing Agreement: | Exclusive Right To Sell | Listing Terms: | Cash, Conventional | |
| Lot Features: | Historic District | Occupant Type: | Owner | |
| Other Structures: | Guest House | Patio And Porch Features: | Front Porch, Patio, Screened | |
| Possession: | Close Of Escrow | Property Sub Type: | Single Family Residence | |
| Property Type: | Residential | Road Surface Type: | Asphalt | |
| Roof: | Shingle | Sewer: | Public Sewer | |
| Showing Requirements: | Appointment Only, Listing Agent Must Accompany, ShowingTime | Spa Features: | Above Ground, Heated | |
| Special Listing Conditions: | None | Standard Status: | Active | |
| State Or Province: | FL | Utilities: | Cable Available, Electricity Connected, Sewer Connected, Water Connected | |
| View: | City | Water Source: | Public | |
| Rooms | Rooms | |||
|---|---|---|---|---|
| Kitchen: | Primary Bedroom: | |||
| Living Room: | ||||