
|
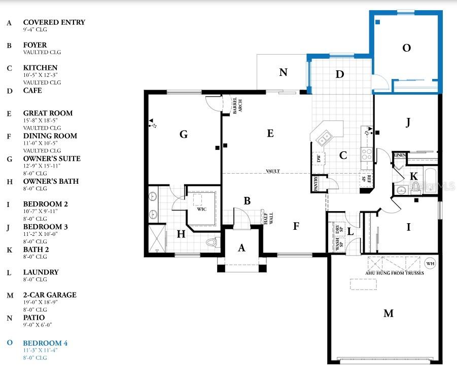
Bedrooms
4
|
Bathrooms
2
|
Living Area
1,781 Sqft
|
Lot Size
11,000 Sqft
|
| Property Features | Property Features | |||
|---|---|---|---|---|
| MLS ID: | MFRFC308630 | Year Built: | 2023 | |
| Appliances: | Dishwasher, Disposal, Electric Water Heater, Microwave, Range, Refrigerator | Architectural Style: | Florida, Traditional | |
| Construction Materials: | Block, Stucco | Cooling: | Central Air | |
| Country: | US | County Or Parish: | Flagler | |
| Direction Faces: | West | Exterior Features: | Sliding Doors | |
| Fencing: | Wood | Flooring: | Carpet, Laminate, Tile | |
| Foundation Details: | Slab | Furnished: | Unfurnished | |
| Heating: | Electric, Heat Pump | Laundry Features: | Inside, Laundry Room | |
| Levels: | One | Listing Agreement: | Exclusive Right To Sell | |
| Listing Terms: | Cash, Conventional, FHA, VA Loan | Lot Features: | Street Dead-End, Paved | |
| Occupant Type: | Owner | Other Equipment: | Irrigation Equipment | |
| Parking Features: | Garage Door Opener | Patio And Porch Features: | Covered, Patio, Screened | |
| Pool Features: | Deck, Gunite, In Ground, Lighting, Screen Enclosure | Possession: | Close Of Escrow | |
| Property Sub Type: | Single Family Residence | Property Type: | Residential | |
| Road Surface Type: | Asphalt | Roof: | Shingle | |
| Sewer: | Holding Tank | Showing Requirements: | Sentri Lock Box, Appointment Only | |
| Special Listing Conditions: | None | Standard Status: | Active | |
| State Or Province: | FL | Utilities: | BB/HS Internet Available, Cable Available, Electricity Connected, Phone Available, Sewer Connected, Water Connected | |
| View: | Garden | Water Source: | None | |
| Window Features: | Blinds | |||
| Rooms | Rooms | |||
|---|---|---|---|---|
| Bedroom 4: | Bathroom 2: | |||
| Bedroom 3: | Bedroom 2: | |||
| Dinette: | Laundry: | |||
| Dining Room: | Living Room: | |||
| Primary Bathroom: | Primary Bedroom: | |||
| Kitchen: | ||||