
|
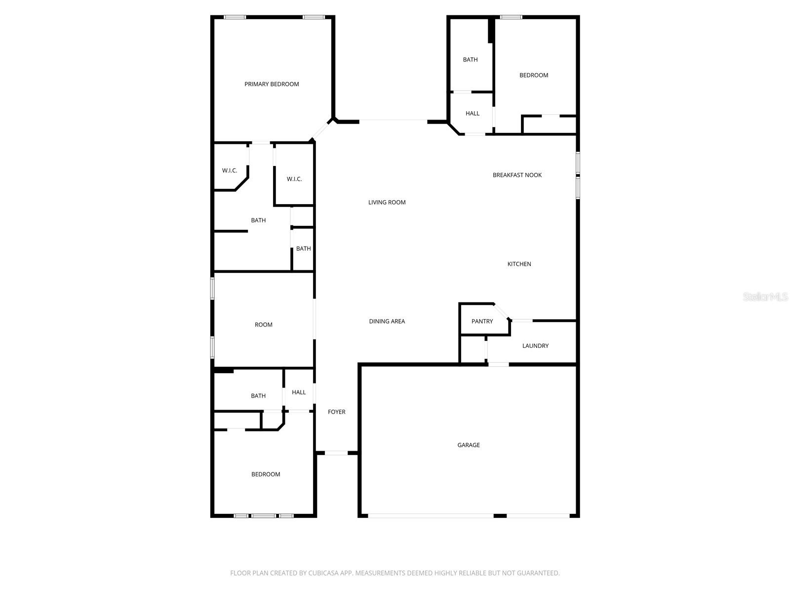
Bedrooms
3
|
Bathrooms
3
|
Living Area
2,362 Sqft
|
Lot Size
10,019 Sqft
|
| Property Features | Property Features | |||
|---|---|---|---|---|
| MLS ID: | MFRFC315637 | Year Built: | 2022 | |
| Appliances: | Dishwasher, Disposal, Microwave, Range | Construction Materials: | HardiPlank Type | |
| Cooling: | Central Air | Country: | US | |
| County Or Parish: | Flagler | Direction Faces: | North | |
| Exterior Features: | Sliding Doors | Fencing: | Vinyl, Wood | |
| Flooring: | Carpet, Ceramic Tile | Foundation Details: | Slab | |
| Furnished: | Unfurnished | Heating: | Central, Electric, Heat Pump | |
| Laundry Features: | Electric Dryer Hookup, Inside, Laundry Room, Washer Hookup | Levels: | One | |
| Listing Agreement: | Exclusive Right To Sell | Listing Terms: | Cash, Conventional, FHA, VA Loan | |
| Occupant Type: | Vacant | Patio And Porch Features: | Covered, Patio | |
| Possession: | Close Of Escrow | Property Sub Type: | Single Family Residence | |
| Property Type: | Residential | Road Responsibility: | Public Maintained Road | |
| Road Surface Type: | Asphalt | Roof: | Shingle | |
| Sewer: | Public Sewer | Showing Requirements: | ShowingTime | |
| Special Listing Conditions: | None | Standard Status: | Active | |
| State Or Province: | FL | Utilities: | Cable Available, Electricity Connected, Fiber Optics, Public, Sewer Connected, Sprinkler Meter, Underground Utilities, Water Connected | |
| Water Source: | Public | Window Features: | Double Pane Windows, Insulated Windows, Thermal Windows, Window Treatments | |
| Rooms | Rooms | |||
|---|---|---|---|---|
| Great Room: | 30x22 ft | Dining Room: | 19x12 ft | |
| Kitchen: | 24x11 ft | Primary Bedroom: | 15x14 ft | |
| Bedroom 2: | 13x12 ft | Bedroom 3: | 14x10 ft | |
| Office: | 12x12 ft | |||