
|
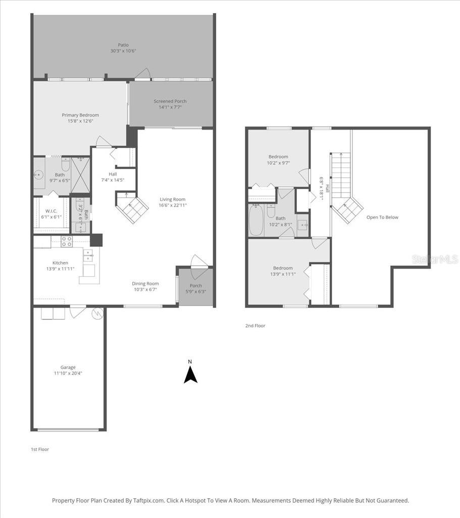
Bedrooms
3
|
Bathrooms
3
|
Living Area
1,381 Sqft
|
Lot Size
3,703 Sqft
|
| Property Features | Property Features | |||
|---|---|---|---|---|
| MLS ID: | MFRFC315819 | Year Built: | 1990 | |
| Appliances: | Dishwasher, Dryer, Electric Water Heater, Microwave, Range, Refrigerator, Washer | Association Fee Includes: | Cable TV, Internet, Maintenance Structure, Maintenance Grounds, Pest Control, Sewer, Trash | |
| Community Features: | Buyer Approval Required, Community Mailbox | Construction Materials: | Concrete, Stucco | |
| Cooling: | Central Air | Country: | US | |
| County Or Parish: | Flagler | Direction Faces: | West | |
| Exterior Features: | French Doors, Sliding Doors | Flooring: | Carpet, Luxury Vinyl | |
| Foundation Details: | Slab | Furnished: | Unfurnished | |
| Heating: | Electric | Laundry Features: | In Garage | |
| Levels: | Two | Listing Agreement: | Exclusive Right To Sell | |
| Listing Terms: | Cash, Conventional, FHA, VA Loan | Lot Features: | Cul-De-Sac, Landscaped, Near Golf Course | |
| Occupant Type: | Owner | Patio And Porch Features: | Front Porch | |
| Pets Allowed: | Size Limit | Possession: | Close Of Escrow | |
| Property Sub Type: | Townhouse | Property Type: | Residential | |
| Road Surface Type: | Paved | Roof: | Shingle | |
| Sewer: | Public Sewer | Showing Requirements: | 24 Hour Notice, Appointment Only, Combination Lock Box, ShowingTime | |
| Special Listing Conditions: | None | Standard Status: | Active | |
| State Or Province: | FL | Utilities: | Cable Available, Electricity Connected, Sewer Connected | |
| View: | Golf Course, Water | Water Source: | Public | |
| Rooms | Rooms | |||
|---|---|---|---|---|
| Kitchen: | Primary Bedroom: | |||
| Living Room: | ||||