
|
Bedrooms
3
|
Bathrooms
4
|
Living Area
3,134 Sqft
|
Lot Size
4,800 Sqft
|
| Property Features | Property Features | |||
|---|---|---|---|---|
| MLS ID: | MFRFC316782 | Year Built: | 2005 | |
| Appliances: | Bar Fridge, Dishwasher, Disposal, Electric Water Heater, Exhaust Fan, Ice Maker, Microwave, Range Hood, Refrigerator | Cooling: | Central Air | |
| Country: | US | County Or Parish: | Flagler | |
| Exterior Features: | Private Entrance, Private Mailbox | Flooring: | Carpet, Travertine | |
| Furnished: | Unfurnished | Heating: | Central, Electric, Heat Pump | |
| Laundry Features: | Laundry Room | Lease Term: | 6-12 Month | |
| Levels: | Two | Listing Agreement: | Exclusive Right To Lease | |
| Lot Features: | Near Marina, Paved | Occupant Type: | Vacant | |
| Other Equipment: | Irrigation Equipment, Private Entrance | Owner Pays: | Grounds Care | |
| Parking Features: | Garage Door Opener | Patio And Porch Features: | Rear Porch, Screened | |
| Pets Allowed: | No | Possession: | Rental Agreement | |
| Property Condition: | Completed | Property Sub Type: | Single Family Residence | |
| Property Type: | Residential Lease | Road Surface Type: | Asphalt | |
| Security Features: | Gated Community | Showing Requirements: | Appointment Only, Combination Lock Box, ShowingTime | |
| Standard Status: | Active | State Or Province: | FL | |
| Tenant Pays: | Carpet Cleaning Fee, Cleaning Fee, Re-Key Fee | View: | Water | |
| Waterfront Features: | Intracoastal Waterway | |||
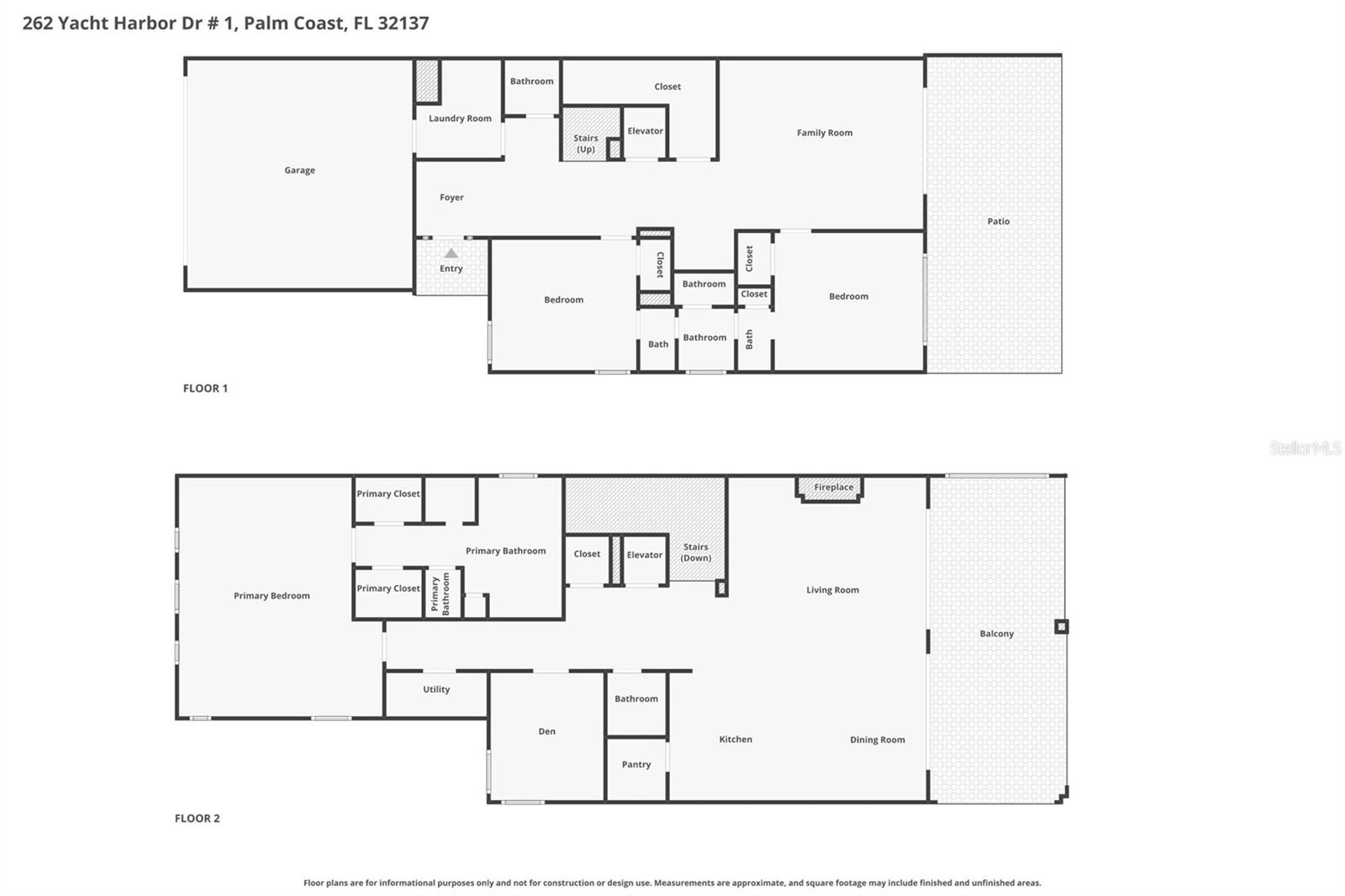
| Rooms | Rooms | |||
|---|---|---|---|---|
| Living Room: | 17x15 ft | Kitchen: | 10x12 ft | |
| Dining Room: | 12x12 ft | Primary Bedroom: | 15x21 ft | |
| Primary Bathroom: | Family Room: | 17x13 ft | ||
| Bedroom 2: | 11x13 ft | Bedroom 3: | 12x13 ft | |
| Balcony/Porch/Lanai: | 12x30 ft | |||