
|
Bedrooms
4
|
Bathrooms
3
|
Living Area
2,000 Sqft
|
Lot Size
14,941 Sqft
|
| Property Features | Property Features | |||
|---|---|---|---|---|
| MLS ID: | MFRFC317585 | Year Built: | 2025 | |
| Appliances: | Dishwasher, Disposal, Electric Water Heater, Microwave, Range, Refrigerator | Construction Materials: | Cement Siding, HardiPlank Type, SIP (Structurally Insulated Panel), Frame | |
| Cooling: | Central Air, Zoned | Country: | US | |
| County Or Parish: | Flagler | Direction Faces: | Southwest | |
| Exterior Features: | Private Mailbox | Fencing: | Vinyl | |
| Flooring: | Carpet, Laminate | Foundation Details: | Slab | |
| Furnished: | Unfurnished | Green Energy Efficient: | Appliances, Construction, HVAC, Insulation, Lighting, Roof, Thermostat, Windows | |
| Green Indoor Air Quality: | No/Low VOC Cabinets/Counters, No/Low VOC Flooring, No/Low VOC Paint/Finish | Green Sustainability: | Conserving Methods | |
| Green Water Conservation: | Low-Flow Fixtures | Heating: | Central, Electric, Heat Pump, Zoned | |
| Laundry Features: | Inside, Laundry Room | Levels: | Two | |
| Listing Agreement: | Exclusive Right To Sell | Listing Terms: | Cash, Conventional, FHA, VA Loan | |
| Occupant Type: | Vacant | Parking Features: | Driveway, Garage Door Opener, Garage Faces Side | |
| Possession: | Close Of Escrow | Property Condition: | Completed | |
| Property Sub Type: | Single Family Residence | Property Type: | Residential | |
| Road Responsibility: | Public Maintained Road | Road Surface Type: | Asphalt | |
| Roof: | Shingle | Sewer: | Public Sewer | |
| Showing Requirements: | Combination Lock Box | Special Listing Conditions: | None | |
| Standard Status: | Active | State Or Province: | FL | |
| Utilities: | Cable Available, Electricity Connected, Phone Available, Sewer Connected, Water Connected | Water Source: | Public | |
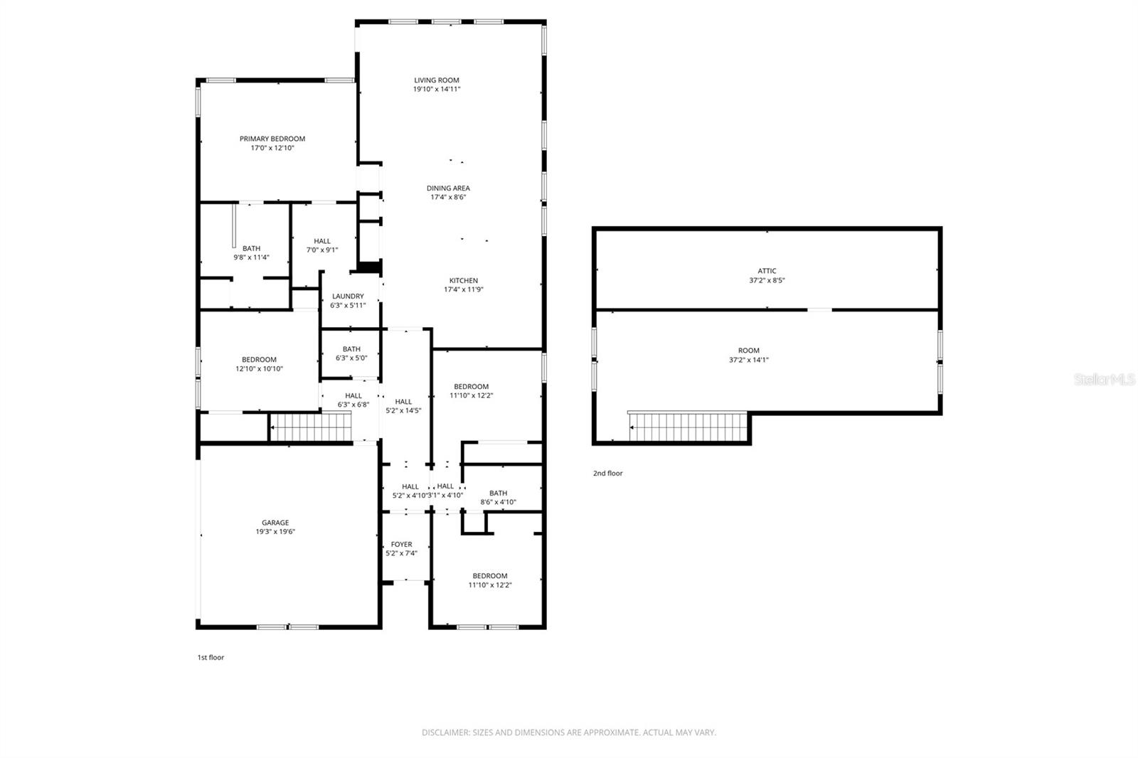
| Rooms | Rooms | |||
|---|---|---|---|---|
| Foyer: | 5.2x7.6 ft | Kitchen: | 17.6x11.9 ft | |
| Dining Room: | 17.4x8.6 ft | Living Room: | 19.1x14.11 ft | |
| Laundry: | 6.3x5.11 ft | Primary Bedroom: | 17x12.1 ft | |
| Primary Bathroom: | 9.8x11.6 ft | Bedroom 2: | 11.1x12.2 ft | |
| Bathroom 3: | 11.1x12.2 ft | Bedroom 4: | 12.1x10.1 ft | |
| Bathroom 2: | 8.6x4.1 ft | Bathroom 3: | 6.3x5 ft | |
| Bonus Room: | 37.2x14.1 ft | |||