
|
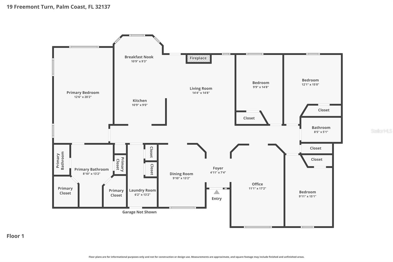
Bedrooms
4
|
Bathrooms
2
|
Living Area
2,197 Sqft
|
Lot Size
10,001 Sqft
|
| Property Features | Property Features | |||
|---|---|---|---|---|
| MLS ID: | MFRFC317763 | Year Built: | 2013 | |
| Appliances: | Dishwasher, Microwave, Range, Refrigerator | Construction Materials: | Brick | |
| Cooling: | Central Air | Country: | US | |
| County Or Parish: | Flagler | Direction Faces: | Northwest | |
| Exterior Features: | Private Yard | Fireplace Features: | Wood Burning | |
| Flooring: | Carpet, Other | Foundation Details: | Slab | |
| Furnished: | Negotiable | Heating: | Central, Electric | |
| Laundry Features: | Inside, Laundry Room | Levels: | One | |
| Listing Agreement: | Exclusive Right To Sell | Occupant Type: | Owner | |
| Other Equipment: | Irrigation Equipment, Private Yard | Property Sub Type: | Single Family Residence | |
| Property Type: | Residential | Road Surface Type: | Paved | |
| Roof: | Shingle | Sewer: | Public Sewer | |
| Showing Requirements: | Appointment Only | Special Listing Conditions: | None | |
| Standard Status: | Active | State Or Province: | FL | |
| Utilities: | Cable Connected, Sewer Connected, Water Connected | Water Source: | Public | |
| Rooms | Rooms | |||
|---|---|---|---|---|
| Primary Bedroom: | 20x13 ft | Kitchen: | 11x9 ft | |
| Living Room: | 15x14 ft | |||