
|
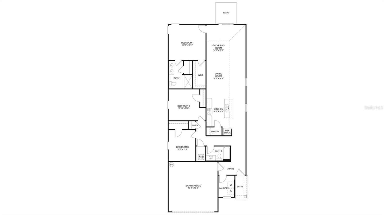
Bedrooms
3
|
Bathrooms
2
|
Living Area
1,646 Sqft
|
Lot Size
9,389 Sqft
|
| Property Features | Property Features | |||
|---|---|---|---|---|
| MLS ID: | MFRFC318155 | Year Built: | 2026 | |
| Appliances: | Dishwasher, Disposal, Microwave, Range | Architectural Style: | Traditional | |
| Association Amenities: | Golf Course, Other, Pool | Construction Materials: | Frame | |
| Cooling: | Central Air | Country: | US | |
| County Or Parish: | Flagler | Direction Faces: | Southeast | |
| Exterior Features: | Other | Flooring: | Carpet, Other, Vinyl | |
| Foundation Details: | Slab | Furnished: | Unfurnished | |
| Green Energy Efficient: | Appliances, Construction | Green Indoor Air Quality: | Ventilation | |
| Heating: | Central, Natural Gas | Laundry Features: | Inside, Laundry Room | |
| Levels: | One | Listing Agreement: | Exclusive Right To Sell | |
| Listing Terms: | Cash, Conventional, FHA, VA Loan | Occupant Type: | Vacant | |
| Patio And Porch Features: | Rear Porch | Pets Allowed: | Yes | |
| Pool Features: | Other | Possession: | Close Of Escrow | |
| Property Condition: | Under Construction | Property Sub Type: | Single Family Residence | |
| Property Type: | Residential | Road Surface Type: | Paved | |
| Roof: | Shingle | Sewer: | Public Sewer | |
| Showing Requirements: | See Remarks | Special Listing Conditions: | None | |
| Standard Status: | Active | State Or Province: | FL | |
| Utilities: | Natural Gas Connected, Sewer Connected, Underground Utilities, Water Connected | View: | Golf Course | |
| Water Source: | Public | Window Features: | Double Pane Windows | |
| Rooms | Rooms | |||
|---|---|---|---|---|
| Kitchen: | Great Room: | |||
| Primary Bedroom: | ||||