
|
Bedrooms
4
|
Bathrooms
3
|
Living Area
3,224 Sqft
|
Lot Size
10,085 Sqft
|
| Property Features | Property Features | |||
|---|---|---|---|---|
| MLS ID: | MFRG5089951 | Year Built: | 2002 | |
| Appliances: | Dishwasher, Microwave, Range, Refrigerator | Association Amenities: | Basketball Court, Gated | |
| Community Features: | Clubhouse, Deed Restrictions, Fitness Center, Gated Community - Guard, Golf Carts OK, Golf, Playground, Pool, Sidewalks, Tennis Court(s), Street Lights | Construction Materials: | Stucco | |
| Cooling: | Central Air | Country: | US | |
| County Or Parish: | Lake | Direction Faces: | Northwest | |
| Exterior Features: | Sidewalk, Sliding Doors | Flooring: | Hardwood, Tile | |
| Foundation Details: | Slab | Heating: | Central | |
| Laundry Features: | Electric Dryer Hookup, Inside, Laundry Room, Washer Hookup | Levels: | Two | |
| Listing Agreement: | Exclusive Right To Sell | Listing Terms: | Cash, Conventional, Owner Financing | |
| Occupant Type: | Vacant | Other Equipment: | Irrigation Equipment | |
| Pets Allowed: | Yes | Pool Features: | Gunite, Heated, In Ground, Solar Heat | |
| Property Sub Type: | Single Family Residence | Property Type: | Residential | |
| Road Surface Type: | Asphalt | Roof: | Shingle | |
| Sewer: | Public Sewer | Showing Requirements: | Supra Lock Box, ShowingTime | |
| Spa Features: | Heated, In Ground | Special Listing Conditions: | None | |
| Standard Status: | Active | State Or Province: | FL | |
| Utilities: | BB/HS Internet Available, Cable Connected, Electricity Connected, Sewer Connected, Underground Utilities, Water Connected | Water Source: | Public | |
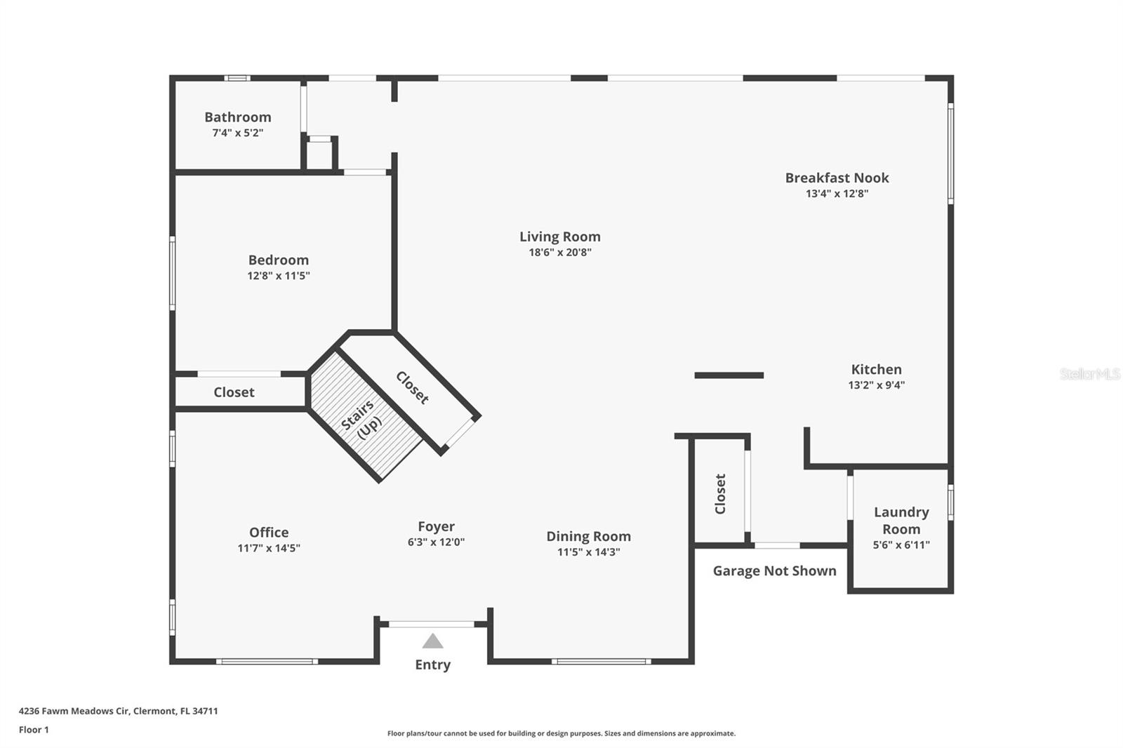
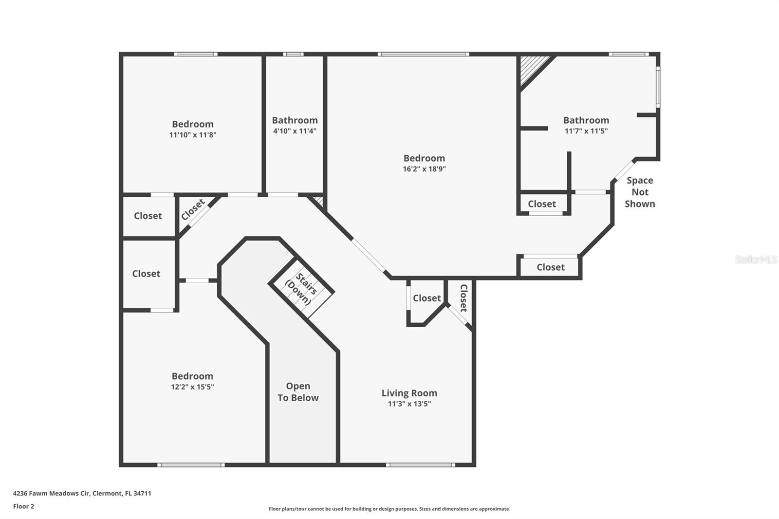
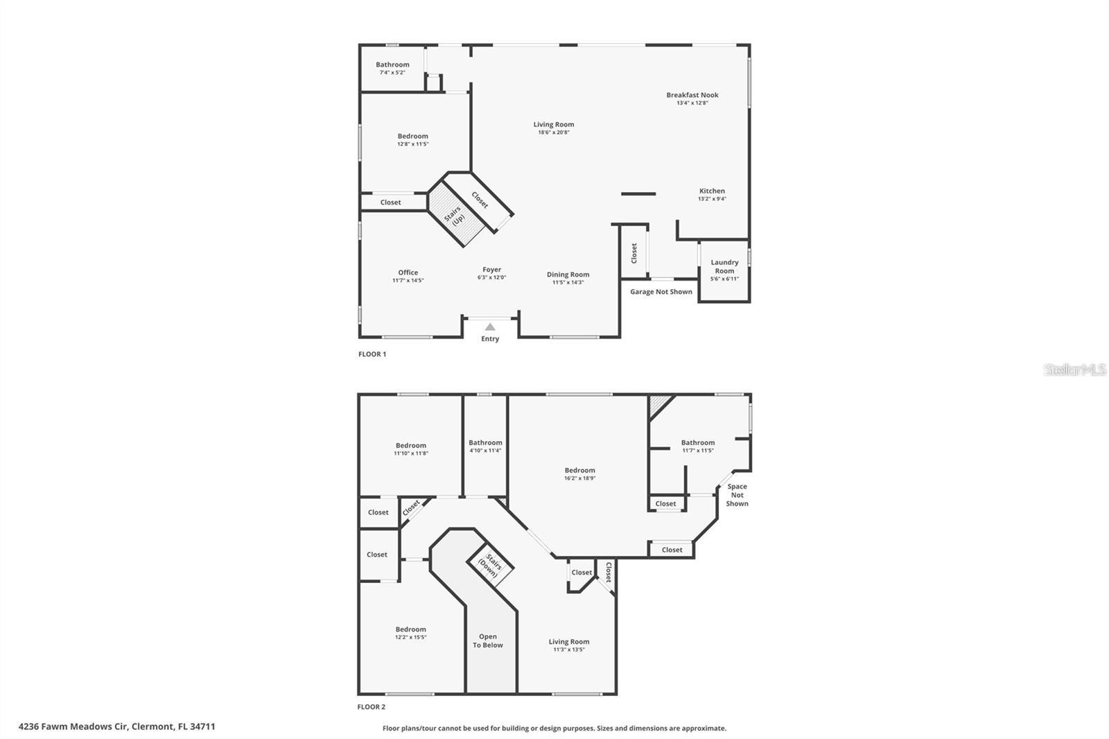
| Rooms | Rooms | |||
|---|---|---|---|---|
| Dining Room: | 11x14 ft | Office: | 11x14 ft | |
| Living Room: | 18x20 ft | Bedroom 1: | 12x11 ft | |
| Bathroom 1: | 5x7 ft | Dinette: | 13x12 ft | |
| Loft: | 11x13 ft | Bedroom 2: | 12x15 ft | |
| Bedroom 3: | 11x11 ft | Bathroom 2: | 4x11 ft | |
| Primary Bedroom: | 16x18 ft | Primary Bathroom: | 12x12 ft | |
| Kitchen: | 13x9 ft | |||