
| Bedrooms 2 | Bathrooms 2 | Living Area 1,056 Sqft | Lot Size 5,280 Sqft | 
| Property Features | Property Features | |||
|---|---|---|---|---|
| MLS ID: | MFRG5090482 | Year Built: | 1977 | |
| Appliances: | Convection Oven, Dryer, Microwave, Other, Refrigerator, Washer | Association Amenities: | Laundry, Maintenance, Pool | |
| Association Fee Includes: | Cable TV, Common Area Taxes, Pool, Escrow Reserves Fund, Internet, Maintenance Grounds, Management, Sewer, Trash, Water | Body Type: | Double Wide | |
| Community Features: | Buyer Approval Required, Deed Restrictions, Pool | Construction Materials: | Metal Frame, Frame | |
| Cooling: | Central Air | Country: | US | |
| Direction Faces: | North | Exterior Features: | Irrigation System, Rain Gutters, Sliding Doors | |
| Flooring: | Carpet, Laminate | Foundation Details: | Crawlspace | |
| Furnished: | Unfurnished | Heating: | Electric | |
| Laundry Features: | In Kitchen, Inside, Laundry Closet | Levels: | One | |
| Listing Agreement: | Exclusive Right To Sell | Listing Terms: | Cash, Conventional | |
| Lot Features: | In County, Level, Paved | Occupant Type: | Owner | |
| Other Structures: | Storage | Parking Features: | Driveway, Ground Level, Off Street | |
| Patio And Porch Features: | Screened, Side Porch | Pets Allowed: | No | |
| Possession: | Close Of Escrow | Property Sub Type: | Manufactured Home - Post 1977 | |
| Property Type: | Residential | Road Responsibility: | Public Maintained Road | |
| Road Surface Type: | Paved | Roof: | Metal | |
| Security Features: | Smoke Detector(s) | Sewer: | Private Sewer | |
| Showing Requirements: | Supra Lock Box, Appointment Only, ShowingTime | Special Listing Conditions: | None | |
| Standard Status: | Active | State Or Province: | FL | |
| Utilities: | BB/HS Internet Available, Cable Available, Cable Connected, Electricity Available, Electricity Connected, Public, Sewer Available, Sewer Connected, Underground Utilities, Water Available, Water Connected | Water Source: | Private | |
| Window Features: | Blinds, Drapes, Rods | |||
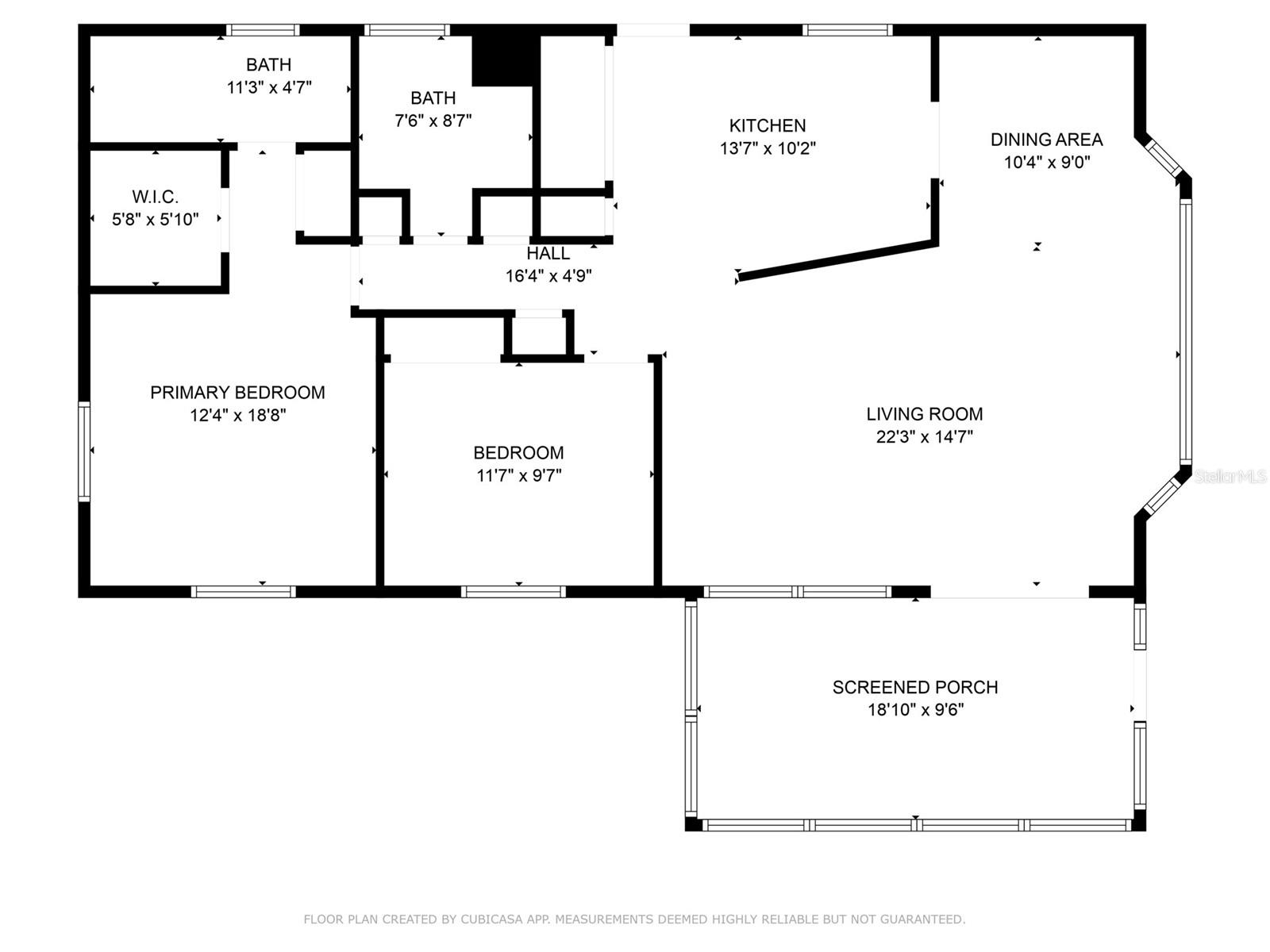
| Rooms | Rooms | |||
|---|---|---|---|---|
| Living Room: | 22x14 ft | Dining Room: | 10x9 ft | |
| Kitchen: | 13x10 ft | Primary Bedroom: | 12x18 ft | |
| Primary Bathroom: | 11x4 ft | Bedroom 2: | 11x9 ft | |
| Bathroom 2: | 7x8 ft | Balcony/Porch/Lanai: | 18x9 ft | |