
|
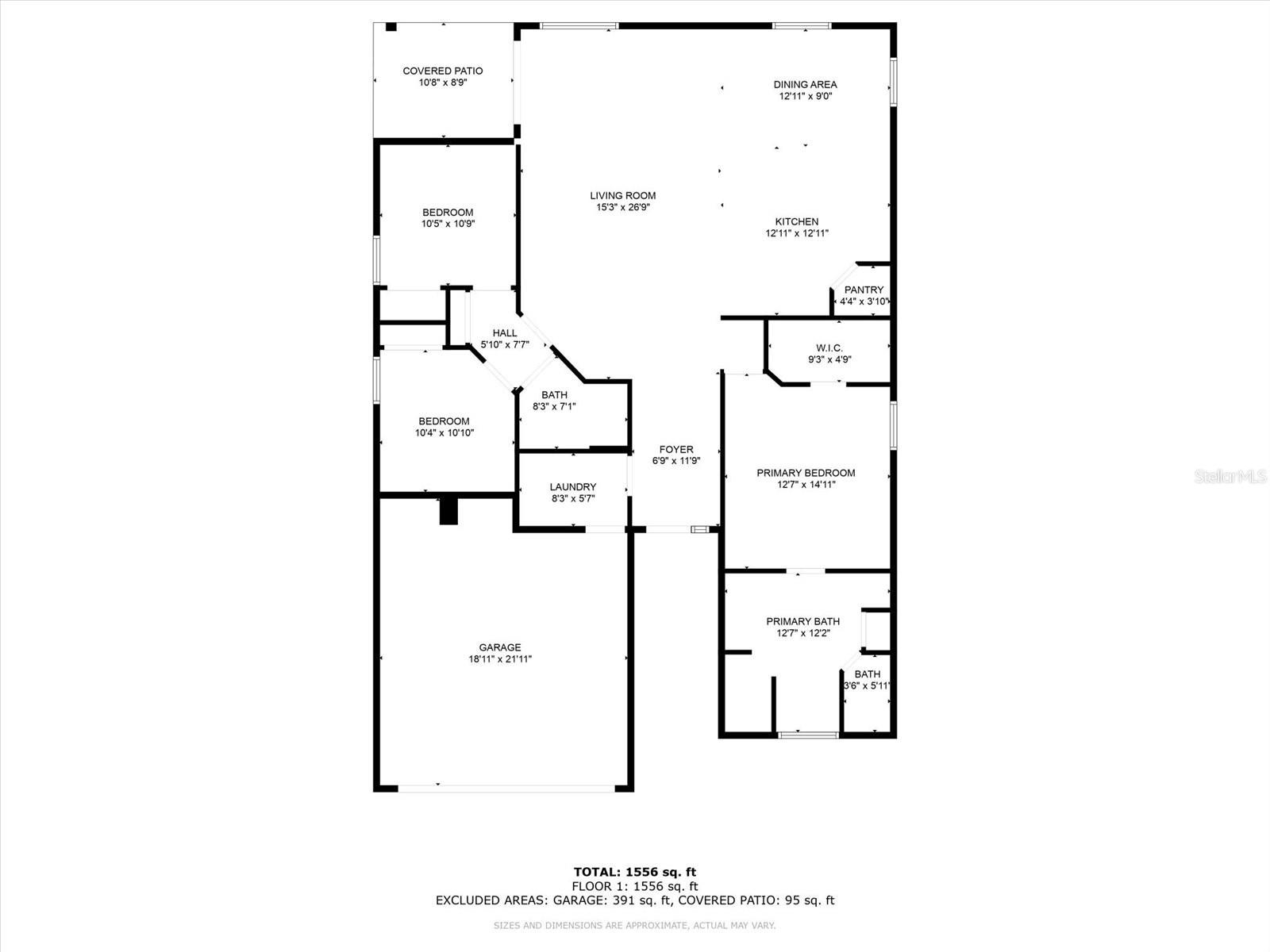
Bedrooms
3
|
Bathrooms
2
|
Living Area
1,734 Sqft
|
Lot Size
6,250 Sqft
|
| Property Features | Property Features | |||
|---|---|---|---|---|
| MLS ID: | MFRG5092086 | Year Built: | 2006 | |
| Appliances: | Dishwasher, Disposal, Microwave, Range, Washer | Cooling: | Central Air | |
| Country: | US | Direction Faces: | East | |
| Disclosures: | None | Exterior Features: | Sliding Doors | |
| Fencing: | Partial | Flooring: | Ceramic Tile | |
| Furnished: | Unfurnished | Heating: | Central | |
| Laundry Features: | Electric Dryer Hookup, Inside, Washer Hookup | Lease Term: | Twelve Months | |
| Levels: | One | Listing Agreement: | Exclusive Right To Lease | |
| Lot Features: | City Limits, In County, Paved | Occupant Type: | Vacant | |
| Owner Pays: | Pest Control | Parking Features: | Garage Door Opener | |
| Patio And Porch Features: | Covered, Rear Porch, Screened | Pets Allowed: | No | |
| Possession: | Rental Agreement | Property Condition: | Completed | |
| Property Sub Type: | Single Family Residence | Property Type: | Residential Lease | |
| Road Responsibility: | Public Maintained Road | Road Surface Type: | Asphalt | |
| Sewer: | Public Sewer | Showing Requirements: | Combination Lock Box, ShowingTime | |
| Standard Status: | Active | State Or Province: | FL | |
| Water Source: | Public | Window Features: | Blinds | |
| Rooms | Rooms | |||
|---|---|---|---|---|
| Primary Bedroom: | 14x13 ft | Bedroom 2: | 10x11 ft | |
| Bedroom 3: | 10x11 ft | Dining Room: | 15x12 ft | |
| Kitchen: | 12x13 ft | Living Room: | 15x15 ft | |