
|
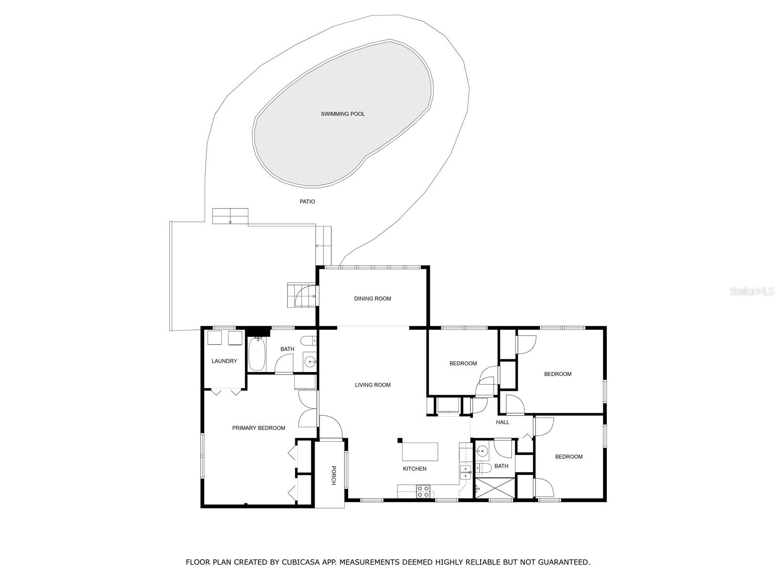
Bedrooms
4
|
Bathrooms
2
|
Living Area
1,609 Sqft
|
Lot Size
13,479 Sqft
|
| Property Features | Property Features | |||
|---|---|---|---|---|
| MLS ID: | MFRG5095124 | Year Built: | 1953 | |
| Accessibility Features: | Visitor Bathroom | Appliances: | Dishwasher, Dryer, Range, Refrigerator, Washer, Water Softener | |
| Architectural Style: | Ranch | Construction Materials: | Block, Vinyl Siding, Frame | |
| Cooling: | Central Air | Country: | US | |
| County Or Parish: | Orange | Direction Faces: | Northwest | |
| Fencing: | Board, Chain Link | Flooring: | Laminate, Tile | |
| Foundation Details: | Crawlspace, Slab | Furnished: | Unfurnished | |
| Heating: | Central, Electric | Laundry Features: | Inside, Laundry Room | |
| Levels: | One | Listing Agreement: | Exclusive Right To Sell | |
| Listing Terms: | Cash, Conventional, FHA, VA Loan | Lot Features: | In County | |
| Occupant Type: | Owner | Other Equipment: | Irrigation Equipment | |
| Parking Features: | Driveway | Patio And Porch Features: | Deck | |
| Pool Features: | In Ground | Property Condition: | Fixer | |
| Property Sub Type: | Single Family Residence | Property Type: | Residential | |
| Road Responsibility: | Public Maintained Road | Road Surface Type: | Asphalt | |
| Roof: | Shingle | Sewer: | Septic Tank | |
| Showing Requirements: | 24 Hour Notice, Appointment Only | Special Listing Conditions: | None | |
| Standard Status: | Active | State Or Province: | FL | |
| Utilities: | Cable Connected, Electricity Connected, Water Connected | View: | Water | |
| Water Source: | Public | Waterfront Features: | Lake Front | |
| Rooms | Rooms | |||
|---|---|---|---|---|
| Living Room: | 16x16 ft | Dining Room: | 15x8 ft | |
| Kitchen: | 17x12 ft | Primary Bedroom: | 19x16 ft | |
| Bedroom 2: | 15x12 ft | Bedroom 3: | 12x10 ft | |
| Bedroom 4: | 10x9 ft | Laundry: | 9x6 ft | |