
|
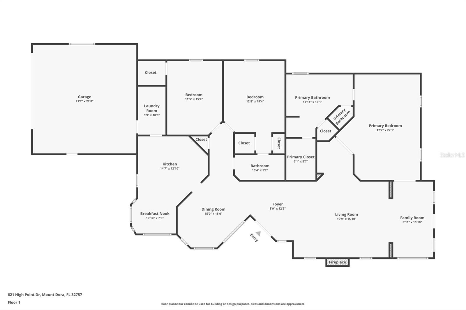
Bedrooms
3
|
Bathrooms
2
|
Living Area
2,295 Sqft
|
Lot Size
13,561 Sqft
|
| Property Features | Property Features | |||
|---|---|---|---|---|
| MLS ID: | MFRG5097109 | Year Built: | 1990 | |
| Appliances: | Dishwasher, Disposal, Dryer, Microwave, Range, Refrigerator, Washer | Architectural Style: | Other | |
| Construction Materials: | Block, Stucco | Cooling: | Central Air | |
| Country: | US | County Or Parish: | Lake | |
| Direction Faces: | North | Fireplace Features: | Gas, Living Room | |
| Flooring: | Carpet, Wood | Foundation Details: | Slab | |
| Heating: | Central | Laundry Features: | Inside, Laundry Room | |
| Levels: | One | Listing Agreement: | Exclusive Right To Sell | |
| Listing Terms: | Cash, Conventional, FHA, VA Loan | Occupant Type: | Owner | |
| Other Equipment: | Irrigation Equipment | Patio And Porch Features: | Patio | |
| Pets Allowed: | Yes | Possession: | Close Of Escrow | |
| Property Sub Type: | Single Family Residence | Property Type: | Residential | |
| Road Surface Type: | Paved | Roof: | Shingle | |
| Security Features: | Security System | Sewer: | Public Sewer | |
| Showing Requirements: | 24 Hour Notice, Appointment Only, Call Listing Agent, Listing Agent Must Accompany, No Lockbox, See Remarks | Special Listing Conditions: | None | |
| Standard Status: | Active | State Or Province: | FL | |
| Utilities: | Cable Connected, Natural Gas Connected | Vegetation: | Mature Landscaping | |
| Water Source: | Public | Window Features: | Blinds | |
| Rooms | Rooms | |||
|---|---|---|---|---|
| Primary Bedroom: | 13x22 ft | Primary Bathroom: | 13x14 ft | |
| Florida Room: | 9x13 ft | Living Room: | 20x16 ft | |
| Foyer: | 10x9 ft | Dining Room: | 11x15 ft | |
| Kitchen: | 12x14 ft | Dinette: | 9x8 ft | |
| Laundry: | 5x10 ft | Bedroom 3: | 13x12 ft | |
| Bedroom 2: | 15x12 ft | Bathroom 2: | 5x10 ft | |